フロア詳細情報

大久保ビルディング(東京都中央区八重洲1丁目6番17号)のフロア情報

空室状況はお電話一本でスムーズにご案内!まずはお気軽に0120-939-204へどうぞ。
でお問い合わせ(無料メール 簡単1
※上記の写真は人物等が映っている場合、修正・加工が施されています。
物件情報更新日: 2025/12/12

大久保ビルディングの物件概要

ビル名
大久保ビルディング
物件番号/物件ID 2100
住所 東京都中央区八重洲1丁目6番17号 面積(平米) 58.11㎡
最寄り駅
【最寄り駅1】

JR山手線 東京駅  徒歩5分

【最寄り駅2】

東京メトロ銀座線 日本橋駅  徒歩4分

【最寄り駅3】

東京メトロ東西線 日本橋駅  徒歩4分

【最寄り駅4】

JR東海道本線 東京駅  徒歩5分

坪数 17.58坪
実行面積
空調 個別
竣工 1967年12月01日
構造 SRC地上10階建地下2階
エレベーター基数 1 荷物用エレベーター基数
階数 地下 1階 退去日 退去日の詳細につきましては、お問い合わせください。
備考
ビル名
大久保ビルディング
住所 2100
最寄り駅
【最寄り駅1】

JR山手線 東京駅  徒歩5分

【最寄り駅2】

東京メトロ銀座線 日本橋駅  徒歩4分

【最寄り駅3】

東京メトロ東西線 日本橋駅  徒歩4分

【最寄り駅4】

JR東海道本線 東京駅  徒歩5分

エレベーター基数 1
階数 1階
物件番号/物件ID 2100
面積(平米) 58.11㎡
坪数 17.58坪
実行面積
空調 個別
竣工 1967年12月01日
構造 SRC地上10階建地下2階
荷物用エレベーター基数
退去日 退去日の詳細につきましては、お問い合わせください。
備考

大久保ビルディングの募集価格

総額 坪単価
賃料 703,181円 賃料 39,999円
共益費 70,320円 共益費 4,001円
月額合計 773,501円 月額合計 44,000円
保証金/敷金 8,438,172円 保証金/敷金 479,988円
礼金 0円 礼金 0円
賃料条件補足事項 定借期間相談、更新料1ヶ月・償却1ヶ月、保証会社要加入
総額
賃料 703,181円
共益費 70,320円
月額合計 773,501円
保証金/敷金 8,438,172円
礼金 0円
坪単価
賃料 39,999円
共益費 4,001円
月額合計 44,000円
保証金/敷金 479,988円
礼金 0円
賃料条件補足事項 定借期間相談、更新料1ヶ月・償却1ヶ月、保証会社要加入

大久保ビルディングのその他空室情報

階数 広さ 賃料合計(税別) 坪単価 保証金・敷金 礼金
7F 18.02坪 720,807円 40,001円 7,784,724円 0円
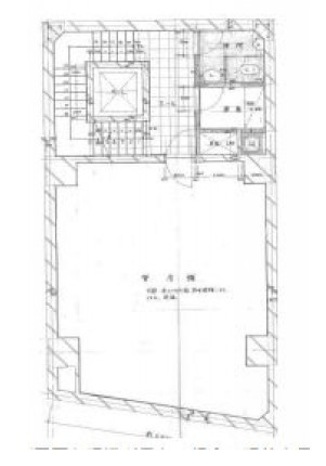
フロア詳細
フロア詳細
空室情報や物件見学などお気軽にお問い合わせください。
ESTATE AGENCY
株式会社エステートエージェンシー
定休日:日曜日・祝日 営業時間:09:00~19:00
でお問い合わせ(無料メール 簡単1 電話でお問い合わせ(無料)
※貸主様からのご要望の為、条件を未公開としている場合がございます。詳しくお聞きになりたい場合は、弊社までご連絡ください。
※賃料、共益費、礼金、その他費用には別途消費税が掛かります。
※上記金額は募集条件です。条件交渉などについてはお気軽にお問い合わせください。

大久保ビルディングの施設情報カテゴリ

1棟貸可能
駅直結
大型EV
大型駐車場
大通り沿い
傘いらず
貸会議室
空中店舗相談
ヴィンテージ・レトロ
シャワートイレ
セキュリティ
SOHO(住居兼事務所)
デザイナーズ・個性派
トイレ男女別
荷物EVあり
ハイグレードオフィス
ネット回線引込可
ビル内貸倉庫
免振・制振構造
有人警備
ランドマーク
リニューアル
フリースペース
レンタルオフィス
新耐震
駅近(出口
築浅
川沿い、公園沿い
自転車置場

自転車置場料金: ー 円

大久保ビルディングのアクセスマップ

空室情報や物件見学などお気軽にお問い合わせください。
ESTATE AGENCY
株式会社エステートエージェンシー
定休日:日曜日・祝日 営業時間:09:00~19:00
でお問い合わせ(無料メール 簡単1 電話でお問い合わせ(無料)