フロア詳細情報

京町堀スクエア(大阪府大阪市西区京町堀1丁目8番33号)のフロア情報

京町堀スクエアのビル詳細を見る
空室状況はお電話一本でスムーズにご案内!まずはお気軽に0120-939-204へどうぞ。
でお問い合わせ(無料メール 簡単1
※上記の写真は人物等が映っている場合、修正・加工が施されています。
物件情報更新日: 2025/09/11

京町堀スクエアの物件概要

ビル名
京町堀スクエア
物件番号/物件ID 12308
住所 大阪府大阪市西区京町堀1丁目8番33号 面積(平米) 146.67㎡
最寄り駅
【最寄り駅1】

大阪メトロ四つ橋線 肥後橋駅  徒歩3分

【最寄り駅2】

大阪メトロ四つ橋線 本町駅  徒歩6分

【最寄り駅3】

大阪メトロ中央線 本町駅  徒歩8分

【最寄り駅4】

大阪メトロ御堂筋線 本町駅  徒歩9分

坪数 44.37坪
実行面積 100.00%
空調 個別
竣工 1988年03月01日
構造 SRC地上10階建地下1階
エレベーター基数 2 荷物用エレベーター基数
階数 地上 8階 退去日 退去日の詳細につきましては、お問い合わせください。
備考
ビル名
京町堀スクエア
住所 12308
最寄り駅
【最寄り駅1】

大阪メトロ四つ橋線 肥後橋駅  徒歩3分

【最寄り駅2】

大阪メトロ四つ橋線 本町駅  徒歩6分

【最寄り駅3】

大阪メトロ中央線 本町駅  徒歩8分

【最寄り駅4】

大阪メトロ御堂筋線 本町駅  徒歩9分

エレベーター基数 2
階数 8階
物件番号/物件ID 12308
面積(平米) 146.67㎡
坪数 44.37坪
実行面積 100.00%
空調 個別
竣工 1988年03月01日
構造 SRC地上10階建地下1階
荷物用エレベーター基数
退去日 退去日の詳細につきましては、お問い合わせください。
備考

京町堀スクエアの募集価格

総額 坪単価
賃料 非公開 賃料 非公開
共益費 非公開 共益費 非公開
月額合計 非公開 月額合計 非公開
保証金/敷金 非公開 保証金/敷金 非公開
礼金 非公開 礼金 非公開
賃料条件補足事項
総額
賃料 非公開
共益費 非公開
月額合計 非公開
保証金/敷金 非公開
礼金 非公開
坪単価
賃料 非公開
共益費 非公開
月額合計 非公開
保証金/敷金 非公開
礼金 非公開
賃料条件補足事項

京町堀スクエアのその他空室情報

階数 広さ 賃料合計(税別) 坪単価 保証金・敷金 礼金
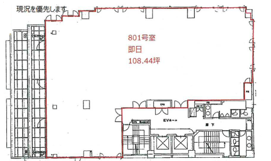
8F 108.01坪 非公開 非公開 非公開 非公開
フロア詳細
フロア詳細
8F 64.07坪 非公開 非公開 非公開 非公開
フロア詳細
フロア詳細
空室情報や物件見学などお気軽にお問い合わせください。
ESTATE AGENCY
株式会社エステートエージェンシー
定休日:日曜日・祝日 営業時間:09:00~19:00
でお問い合わせ(無料メール 簡単1 電話でお問い合わせ(無料)

京町堀スクエアの基本情報

インフォメーション
この京町堀スクエアビルは住所大阪府大阪市西区京町堀1丁目8番33号の1988年竣工、地上10階建の賃貸オフィスビルです。最寄駅は、大阪メトロ四つ橋線肥後橋駅徒歩6分のアクセス。設備情報はアスベスト対策済、表玄関OPEN(土曜日)、シャワートイレ、セキュリティ、デザイナーズ、トイレ男女別、24時間利用可能、光回線、リノベーション済み、部屋セキュリティ。是非一度ご内覧下さいませ! その他、事務所、オフィス移転、不動産の事なら何でもお気軽にご相談下さい。
※貸主様からのご要望の為、条件を未公開としている場合がございます。詳しくお聞きになりたい場合は、弊社までご連絡ください。
※賃料、共益費、礼金、その他費用には別途消費税が掛かります。
※上記金額は募集条件です。条件交渉などについてはお気軽にお問い合わせください。

京町堀スクエアの施設情報カテゴリ

1棟貸可能
駅直結
大型EV
大型駐車場
大通り沿い
傘いらず
貸会議室
空中店舗相談
ヴィンテージ・レトロ
シャワートイレ
セキュリティ
SOHO(住居兼事務所)
デザイナーズ・個性派
トイレ男女別
荷物EVあり
ハイグレードオフィス
ネット回線引込可
ビル内貸倉庫
免振・制振構造
有人警備
ランドマーク
リニューアル
フリースペース
レンタルオフィス
新耐震
駅近(出口
築浅
川沿い、公園沿い
自転車置場

自転車置場料金: ー 円

京町堀スクエアのアクセスマップ

空室情報や物件見学などお気軽にお問い合わせください。
ESTATE AGENCY
株式会社エステートエージェンシー
定休日:日曜日・祝日 営業時間:09:00~19:00
でお問い合わせ(無料メール 簡単1 電話でお問い合わせ(無料)

よく似た物件

最近チェックした物件