フロア詳細情報

シイナHD谷町(大阪府大阪市中央区和泉町1丁目1番14号)のフロア情報

シイナHD谷町のビル詳細を見る
空室状況はお電話一本でスムーズにご案内!まずはお気軽に0120-939-204へどうぞ。
でお問い合わせ(無料メール 簡単1
※上記の写真は人物等が映っている場合、修正・加工が施されています。
物件情報更新日: 2025/11/18

シイナHD谷町の物件概要

ビル名
シイナHD谷町
物件番号/物件ID 11531
住所 大阪府大阪市中央区和泉町1丁目1番14号 面積(平米) 74.28㎡
最寄り駅
【最寄り駅1】

大阪メトロ谷町線 谷町四丁目駅  徒歩3分

【最寄り駅2】

大阪メトロ谷町線 谷町六丁目駅  徒歩7分

【最寄り駅3】

大阪メトロ堺筋線 堺筋本町駅  徒歩10分

【最寄り駅4】

大阪メトロ中央線 谷町四丁目駅  徒歩3分

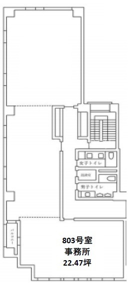
坪数 22.47坪
実行面積 100.00%
空調 個別
竣工 1991年07月01日
構造 SRC地上11階建地下0階
エレベーター基数 2 荷物用エレベーター基数
階数 地上 3階 退去日 退去日の詳細につきましては、お問い合わせください。
備考
ビル名
シイナHD谷町
住所 11531
最寄り駅
【最寄り駅1】

大阪メトロ谷町線 谷町四丁目駅  徒歩3分

【最寄り駅2】

大阪メトロ谷町線 谷町六丁目駅  徒歩7分

【最寄り駅3】

大阪メトロ堺筋線 堺筋本町駅  徒歩10分

【最寄り駅4】

大阪メトロ中央線 谷町四丁目駅  徒歩3分

エレベーター基数 2
階数 3階
物件番号/物件ID 11531
面積(平米) 74.28㎡
坪数 22.47坪
実行面積 100.00%
空調 個別
竣工 1991年07月01日
構造 SRC地上11階建地下0階
荷物用エレベーター基数
退去日 退去日の詳細につきましては、お問い合わせください。
備考

シイナHD谷町の募集価格

総額 坪単価
賃料 159,480円 賃料 7,098円
共益費 20,000円 共益費 891円
月額合計 179,480円 月額合計 7,989円
保証金/敷金 0円 保証金/敷金 0円
礼金 478,440円 礼金 21,294円
賃料条件補足事項 駐車場現在1台空き有。お部屋借りるなら敷金なしで賃料25,000円+税(2025.7.15戸田) 5号室タイプはSOHO仕様(事務所契約にならない、内装要相談、水道代検針)
総額
賃料 159,480円
共益費 20,000円
月額合計 179,480円
保証金/敷金 0円
礼金 478,440円
坪単価
賃料 7,098円
共益費 891円
月額合計 7,989円
保証金/敷金 0円
礼金 21,294円
賃料条件補足事項 駐車場現在1台空き有。お部屋借りるなら敷金なしで賃料25,000円+税(2025.7.15戸田) 5号室タイプはSOHO仕様(事務所契約にならない、内装要相談、水道代検針)

シイナHD谷町のその他空室情報

階数 広さ 賃料合計(税別) 坪単価 保証金・敷金 礼金
3F 17.85坪 180,000円 10,085円 0円 480,000円
フロア詳細
フロア詳細
7F 21.38坪 179,480円 8,396円 0円 478,440円
フロア詳細
フロア詳細
7F 17.72坪 177,271円 10,005円 0円 477,270円
フロア詳細
フロア詳細
空室情報や物件見学などお気軽にお問い合わせください。
ESTATE AGENCY
株式会社エステートエージェンシー
定休日:日曜日・祝日 営業時間:09:00~19:00
でお問い合わせ(無料メール 簡単1 電話でお問い合わせ(無料)

シイナHD谷町の基本情報

インフォメーション
シイナHDビル谷町(旧:ワイエムピー谷町ビル)は、中央区エリア(大阪市中央区和泉町1丁目)にある、1993年竣工、地上11階建の賃貸オフィスビルです。最寄駅は、大阪メトロ谷町線 谷町四丁目駅 徒歩3分のアクセス。是非一度ご内覧下さいませ!その他、事務所、オフィス移転の事なら何でもご相談下さい。
※貸主様からのご要望の為、条件を未公開としている場合がございます。詳しくお聞きになりたい場合は、弊社までご連絡ください。
※賃料、共益費、礼金、その他費用には別途消費税が掛かります。
※上記金額は募集条件です。条件交渉などについてはお気軽にお問い合わせください。

シイナHD谷町の施設情報カテゴリ

1棟貸可能
駅直結
大型EV
大型駐車場
大通り沿い
傘いらず
貸会議室
空中店舗相談
ヴィンテージ・レトロ
シャワートイレ
セキュリティ
SOHO(住居兼事務所)
デザイナーズ・個性派
トイレ男女別
荷物EVあり
ハイグレードオフィス
ネット回線引込可
ビル内貸倉庫
免振・制振構造
有人警備
ランドマーク
リニューアル
フリースペース
レンタルオフィス
新耐震
駅近(出口
築浅
川沿い、公園沿い
自転車置場

自転車置場料金: ー 円

シイナHD谷町のアクセスマップ

空室情報や物件見学などお気軽にお問い合わせください。
ESTATE AGENCY
株式会社エステートエージェンシー
定休日:日曜日・祝日 営業時間:09:00~19:00
でお問い合わせ(無料メール 簡単1 電話でお問い合わせ(無料)

よく似た物件

最近チェックした物件