フロア詳細情報

阿波座パーク(大阪府大阪市西区阿波座1丁目9番9号)のフロア情報

阿波座パークのビル詳細を見る
空室状況はお電話一本でスムーズにご案内!まずはお気軽に0120-939-204へどうぞ。
でお問い合わせ(無料メール 簡単1
※上記の写真は人物等が映っている場合、修正・加工が施されています。
物件情報更新日: 2025/10/20

阿波座パークの物件概要

ビル名
阿波座パーク
物件番号/物件ID 12646
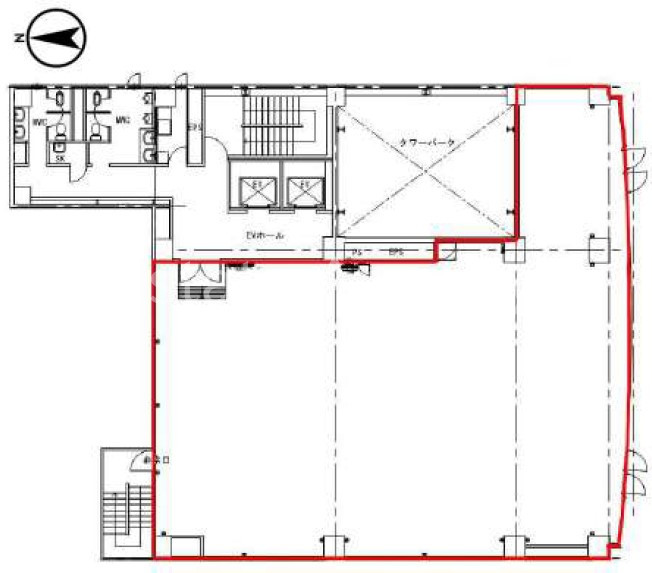
住所 大阪府大阪市西区阿波座1丁目9番9号 面積(平米) 281.75㎡
最寄り駅
【最寄り駅1】

大阪メトロ四つ橋線 本町駅  徒歩3分

【最寄り駅2】

大阪メトロ四つ橋線 四ツ橋駅  徒歩8分

【最寄り駅3】

大阪メトロ中央線 阿波座駅  徒歩10分

【最寄り駅4】

大阪メトロ御堂筋線 本町駅  徒歩5分

坪数 85.23坪
実行面積 100.00%
空調 個別
竣工 1991年03月01日
構造 SRC地上9階建地下1階
エレベーター基数 2 荷物用エレベーター基数
階数 地上 7階 退去日 退去日の詳細につきましては、お問い合わせください。
備考
ビル名
阿波座パーク
住所 12646
最寄り駅
【最寄り駅1】

大阪メトロ四つ橋線 本町駅  徒歩3分

【最寄り駅2】

大阪メトロ四つ橋線 四ツ橋駅  徒歩8分

【最寄り駅3】

大阪メトロ中央線 阿波座駅  徒歩10分

【最寄り駅4】

大阪メトロ御堂筋線 本町駅  徒歩5分

エレベーター基数 2
階数 7階
物件番号/物件ID 12646
面積(平米) 281.75㎡
坪数 85.23坪
実行面積 100.00%
空調 個別
竣工 1991年03月01日
構造 SRC地上9階建地下1階
荷物用エレベーター基数
退去日 退去日の詳細につきましては、お問い合わせください。
備考

阿波座パークの募集価格

総額 坪単価
賃料 非公開 賃料 非公開
共益費 非公開 共益費 非公開
月額合計 非公開 月額合計 非公開
保証金/敷金 非公開 保証金/敷金 非公開
礼金 非公開 礼金 非公開
賃料条件補足事項
総額
賃料 非公開
共益費 非公開
月額合計 非公開
保証金/敷金 非公開
礼金 非公開
坪単価
賃料 非公開
共益費 非公開
月額合計 非公開
保証金/敷金 非公開
礼金 非公開
賃料条件補足事項
空室情報や物件見学などお気軽にお問い合わせください。
ESTATE AGENCY
株式会社エステートエージェンシー
定休日:日曜日・祝日 営業時間:09:00~19:00
でお問い合わせ(無料メール 簡単1 電話でお問い合わせ(無料)

阿波座パークの基本情報

インフォメーション
阿波座パークビルは、西区エリア(大阪市西区阿波座1丁目)にある、1991年竣工、地上9階地下1階建の賃貸オフィスビルです。最寄駅は、大阪メトロ四つ橋線 本町駅 徒歩2分のアクセス。是非一度ご内覧下さいませ!その他、事務所、オフィス移転の事なら何でもご相談下さい。
※貸主様からのご要望の為、条件を未公開としている場合がございます。詳しくお聞きになりたい場合は、弊社までご連絡ください。
※賃料、共益費、礼金、その他費用には別途消費税が掛かります。
※上記金額は募集条件です。条件交渉などについてはお気軽にお問い合わせください。

阿波座パークの施設情報カテゴリ

1棟貸可能
駅直結
大型EV
大型駐車場
大通り沿い
傘いらず
貸会議室
空中店舗相談
ヴィンテージ・レトロ
シャワートイレ
セキュリティ
SOHO(住居兼事務所)
デザイナーズ・個性派
トイレ男女別
荷物EVあり
ハイグレードオフィス
ネット回線引込可
ビル内貸倉庫
免振・制振構造
有人警備
ランドマーク
リニューアル
フリースペース
レンタルオフィス
新耐震
駅近(出口
築浅
川沿い、公園沿い
自転車置場

自転車置場料金: ー 円

阿波座パークのアクセスマップ

空室情報や物件見学などお気軽にお問い合わせください。
ESTATE AGENCY
株式会社エステートエージェンシー
定休日:日曜日・祝日 営業時間:09:00~19:00
でお問い合わせ(無料メール 簡単1 電話でお問い合わせ(無料)

よく似た物件

最近チェックした物件