フロア詳細情報

現代心斎橋(大阪府大阪市中央区南船場4丁目12番24号)のフロア情報

現代心斎橋のビル詳細を見る
空室状況はお電話一本でスムーズにご案内!まずはお気軽に0120-939-204へどうぞ。
でお問い合わせ(無料メール 簡単1
※上記の写真は人物等が映っている場合、修正・加工が施されています。
物件情報更新日: 2026/01/16

現代心斎橋の物件概要

ビル名
現代心斎橋
物件番号/物件ID 10947
住所 大阪府大阪市中央区南船場4丁目12番24号 面積(平米) 139.73㎡
最寄り駅
【最寄り駅1】

大阪メトロ御堂筋線 心斎橋駅  徒歩2分

【最寄り駅2】

大阪メトロ四つ橋線 四ツ橋駅  徒歩3分

【最寄り駅3】

大阪メトロ御堂筋線 本町駅  徒歩9分

【最寄り駅4】

大阪メトロ四つ橋線 本町駅  徒歩9分

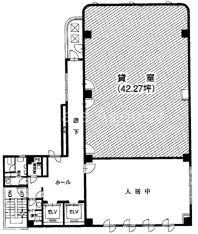
坪数 42.27坪
実行面積 100.00%
空調 個別
竣工 1990年04月23日
構造 鉄骨地上11階建地下1階
エレベーター基数 2 荷物用エレベーター基数
階数 地上 7階 退去日 退去日の詳細につきましては、お問い合わせください。
備考
ビル名
現代心斎橋
住所 10947
最寄り駅
【最寄り駅1】

大阪メトロ御堂筋線 心斎橋駅  徒歩2分

【最寄り駅2】

大阪メトロ四つ橋線 四ツ橋駅  徒歩3分

【最寄り駅3】

大阪メトロ御堂筋線 本町駅  徒歩9分

【最寄り駅4】

大阪メトロ四つ橋線 本町駅  徒歩9分

エレベーター基数 2
階数 7階
物件番号/物件ID 10947
面積(平米) 139.73㎡
坪数 42.27坪
実行面積 100.00%
空調 個別
竣工 1990年04月23日
構造 鉄骨地上11階建地下1階
荷物用エレベーター基数
退去日 退去日の詳細につきましては、お問い合わせください。
備考

現代心斎橋の募集価格

総額 坪単価
賃料 486,106円 賃料 11,500円
共益費 0円 共益費 0円
月額合計 486,106円 月額合計 11,500円
保証金/敷金 2,028,960円 保証金/敷金 48,000円
礼金 0円 礼金 0円
賃料条件補足事項 解約引き20%
総額
賃料 486,106円
共益費 0円
月額合計 486,106円
保証金/敷金 2,028,960円
礼金 0円
坪単価
賃料 11,500円
共益費 0円
月額合計 11,500円
保証金/敷金 48,000円
礼金 0円
賃料条件補足事項 解約引き20%

現代心斎橋のその他空室情報

階数 広さ 賃料合計(税別) 坪単価 保証金・敷金 礼金
9F 31.97坪 367,655円 11,500円 1,534,560円 0円
フロア詳細
フロア詳細
空室情報や物件見学などお気軽にお問い合わせください。
ESTATE AGENCY
株式会社エステートエージェンシー
定休日:日曜日・祝日 営業時間:09:00~19:00
でお問い合わせ(無料メール 簡単1 電話でお問い合わせ(無料)

現代心斎橋の基本情報

インフォメーション
この現代心斎橋ビルは、大阪府大阪市中央区南船場2丁目12-24に位置する、1990年竣工・地上11階建の賃貸オフィスビルです。 最寄りの大阪メトロ御堂筋線「心斎橋駅」から徒歩2分という好立地で、ビジネス拠点として高い利便性を誇ります。 設備は個別空調・OAフロア・エレベーター・セキュリティ完備など、快適で安心できるオフィス環境を実現。 ガラス張りの洗練された外観が印象的で、来客対応を重視する企業やデザイン・IT関連のオフィスにも最適です。 心斎橋・南船場エリアで、企業イメージを高める駅近オフィスをお探しの方におすすめ。 是非一度ご内覧下さいませ! その他、事務所・オフィス移転・不動産に関するご相談もお気軽にどうぞ。
※貸主様からのご要望の為、条件を未公開としている場合がございます。詳しくお聞きになりたい場合は、弊社までご連絡ください。
※賃料、共益費、礼金、その他費用には別途消費税が掛かります。
※上記金額は募集条件です。条件交渉などについてはお気軽にお問い合わせください。

現代心斎橋の施設情報カテゴリ

1棟貸可能
駅直結
大型EV
大型駐車場
大通り沿い
傘いらず
貸会議室
空中店舗相談
ヴィンテージ・レトロ
シャワートイレ
セキュリティ
SOHO(住居兼事務所)
デザイナーズ・個性派
トイレ男女別
荷物EVあり
ハイグレードオフィス
ネット回線引込可
ビル内貸倉庫
免振・制振構造
有人警備
ランドマーク
リニューアル
フリースペース
レンタルオフィス
新耐震
駅近(出口
築浅
川沿い、公園沿い
自転車置場

自転車置場料金: ー 円

現代心斎橋のアクセスマップ

空室情報や物件見学などお気軽にお問い合わせください。
ESTATE AGENCY
株式会社エステートエージェンシー
定休日:日曜日・祝日 営業時間:09:00~19:00
でお問い合わせ(無料メール 簡単1 電話でお問い合わせ(無料)

よく似た物件

最近チェックした物件