フロア詳細情報

JMFビル梅田01(アーバンテラス茶屋町)(大阪府大阪市北区茶屋町丁目なし15番22号)のフロア情報

空室状況はお電話一本でスムーズにご案内!まずはお気軽に0120-939-204へどうぞ。
でお問い合わせ(無料メール 簡単1
※上記の写真は人物等が映っている場合、修正・加工が施されています。
物件情報更新日: 2025/10/27

JMFビル梅田01(アーバンテラス茶屋町)の物件概要

ビル名
JMFビル梅田01(アーバンテラス茶屋町)
物件番号/物件ID 21106
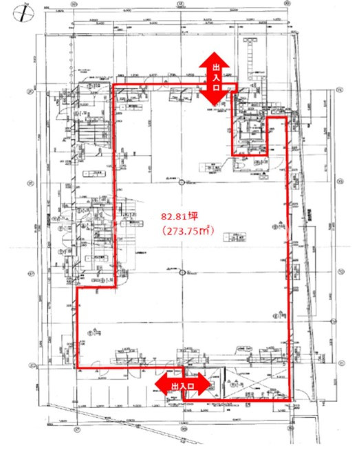
住所 大阪府大阪市北区茶屋町丁目なし15番22号 面積(平米) 254.08㎡
最寄り駅
【最寄り駅1】

阪急神戸本線 大阪梅田駅  徒歩3分

【最寄り駅2】

阪急宝塚本線 大阪梅田駅  徒歩3分

【最寄り駅3】

阪急京都本線 大阪梅田駅  徒歩3分

【最寄り駅4】

大阪メトロ御堂筋線 中津駅  徒歩5分

坪数 76.86坪
実行面積 100.00%
空調
竣工 2006年03月28日
構造 RC地上4階建地下0階
エレベーター基数 1 荷物用エレベーター基数
階数 地上 3階 退去日 退去日の詳細につきましては、お問い合わせください。
備考
ビル名
JMFビル梅田01(アーバンテラス茶屋町)
住所 21106
最寄り駅
【最寄り駅1】

阪急神戸本線 大阪梅田駅  徒歩3分

【最寄り駅2】

阪急宝塚本線 大阪梅田駅  徒歩3分

【最寄り駅3】

阪急京都本線 大阪梅田駅  徒歩3分

【最寄り駅4】

大阪メトロ御堂筋線 中津駅  徒歩5分

エレベーター基数 1
階数 3階
物件番号/物件ID 21106
面積(平米) 254.08㎡
坪数 76.86坪
実行面積 100.00%
空調
竣工 2006年03月28日
構造 RC地上4階建地下0階
荷物用エレベーター基数
退去日 退去日の詳細につきましては、お問い合わせください。
備考

JMFビル梅田01(アーバンテラス茶屋町)の募集価格

総額 坪単価
賃料 非公開 賃料 非公開
共益費 非公開 共益費 非公開
月額合計 非公開 月額合計 非公開
保証金/敷金 非公開 保証金/敷金 非公開
礼金 非公開 礼金 非公開
賃料条件補足事項
総額
賃料 非公開
共益費 非公開
月額合計 非公開
保証金/敷金 非公開
礼金 非公開
坪単価
賃料 非公開
共益費 非公開
月額合計 非公開
保証金/敷金 非公開
礼金 非公開
賃料条件補足事項
空室情報や物件見学などお気軽にお問い合わせください。
ESTATE AGENCY
株式会社エステートエージェンシー
定休日:日曜日・祝日 営業時間:09:00~19:00
でお問い合わせ(無料メール 簡単1 電話でお問い合わせ(無料)

JMFビル梅田01(アーバンテラス茶屋町)の基本情報

インフォメーション
このJMFビル梅田01(アーバンテラス茶屋町)ビルは住所大阪府大阪市北区茶屋町15番22号の2006年竣工、地上4階建の賃貸オフィスビルです。最寄駅は、阪急神戸本線大阪梅田駅徒歩3分のアクセス。是非一度ご内覧下さいませ! その他、事務所、オフィス移転、不動産の事なら何でもお気軽にご相談下さい。
※貸主様からのご要望の為、条件を未公開としている場合がございます。詳しくお聞きになりたい場合は、弊社までご連絡ください。
※賃料、共益費、礼金、その他費用には別途消費税が掛かります。
※上記金額は募集条件です。条件交渉などについてはお気軽にお問い合わせください。

JMFビル梅田01(アーバンテラス茶屋町)の施設情報カテゴリ

1棟貸可能
駅直結
大型EV
大型駐車場
大通り沿い
傘いらず
貸会議室
空中店舗相談
ヴィンテージ・レトロ
シャワートイレ
セキュリティ
SOHO(住居兼事務所)
デザイナーズ・個性派
トイレ男女別
荷物EVあり
ハイグレードオフィス
ネット回線引込可
ビル内貸倉庫
免振・制振構造
有人警備
ランドマーク
リニューアル
フリースペース
レンタルオフィス
新耐震
駅近(出口
築浅
川沿い、公園沿い
自転車置場

自転車置場料金: ー 円

JMFビル梅田01(アーバンテラス茶屋町)のアクセスマップ

空室情報や物件見学などお気軽にお問い合わせください。
ESTATE AGENCY
株式会社エステートエージェンシー
定休日:日曜日・祝日 営業時間:09:00~19:00
でお問い合わせ(無料メール 簡単1 電話でお問い合わせ(無料)

最近チェックした物件