フロア詳細情報

BAGS CHAYAMACHI(大阪府大阪市北区茶屋町丁目なし4番13号)のフロア情報

空室状況はお電話一本でスムーズにご案内!まずはお気軽に0120-939-204へどうぞ。
でお問い合わせ(無料メール 簡単1
※上記の写真は人物等が映っている場合、修正・加工が施されています。
物件情報更新日: 2025/12/02

BAGS CHAYAMACHIの物件概要

ビル名
BAGS CHAYAMACHI
物件番号/物件ID 16861
住所 大阪府大阪市北区茶屋町丁目なし4番13号 面積(平米) 92.42㎡
最寄り駅
【最寄り駅1】

阪急神戸本線 大阪梅田駅  徒歩2分

【最寄り駅2】

阪急宝塚本線 大阪梅田駅  徒歩2分

【最寄り駅3】

阪急京都本線 大阪梅田駅  徒歩2分

【最寄り駅4】

大阪メトロ御堂筋線 梅田駅  徒歩5分

坪数 27.96坪
実行面積
空調
竣工 2021年01月01日
構造 鉄骨地上5階建地下0階
エレベーター基数 1 荷物用エレベーター基数
階数 地上 3階 退去日 退去日の詳細につきましては、お問い合わせください。
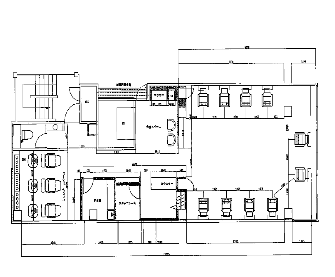
備考 造作譲渡500万円・美容室居抜き
ビル名
BAGS CHAYAMACHI
住所 16861
最寄り駅
【最寄り駅1】

阪急神戸本線 大阪梅田駅  徒歩2分

【最寄り駅2】

阪急宝塚本線 大阪梅田駅  徒歩2分

【最寄り駅3】

阪急京都本線 大阪梅田駅  徒歩2分

【最寄り駅4】

大阪メトロ御堂筋線 梅田駅  徒歩5分

エレベーター基数 1
階数 3階
物件番号/物件ID 16861
面積(平米) 92.42㎡
坪数 27.96坪
実行面積
空調
竣工 2021年01月01日
構造 鉄骨地上5階建地下0階
荷物用エレベーター基数
退去日 退去日の詳細につきましては、お問い合わせください。
備考 造作譲渡500万円・美容室居抜き

BAGS CHAYAMACHIの募集価格

総額 坪単価
賃料 768,900円 賃料 27,500円
共益費 0円 共益費 0円
月額合計 768,900円 月額合計 27,500円
保証金/敷金 9,226,800円 保証金/敷金 330,000円
礼金 0円 礼金 0円
賃料条件補足事項 解約引年数スライド、0~2年未満50% 2~5年未満40% 5~8年未満30% 8~10年20% 契約期間満了時保証金全額返還、
総額
賃料 768,900円
共益費 0円
月額合計 768,900円
保証金/敷金 9,226,800円
礼金 0円
坪単価
賃料 27,500円
共益費 0円
月額合計 27,500円
保証金/敷金 330,000円
礼金 0円
賃料条件補足事項 解約引年数スライド、0~2年未満50% 2~5年未満40% 5~8年未満30% 8~10年20% 契約期間満了時保証金全額返還、
空室情報や物件見学などお気軽にお問い合わせください。
ESTATE AGENCY
株式会社エステートエージェンシー
定休日:日曜日・祝日 営業時間:09:00~19:00
でお問い合わせ(無料メール 簡単1 電話でお問い合わせ(無料)

BAGS CHAYAMACHIの基本情報

インフォメーション
BAGS CHAYAMACHI BLDGは、北区エリア(大阪市北区茶屋町4番)にある、2015年竣工の賃貸オフィスビルです。、最寄駅は、阪急本線梅田駅徒歩1分の高アクセス。、是非一度ご内覧下さいませ!、その他、事務所、オフィス移転、不動産の事なら何でもお気軽にご相談下さい。
※貸主様からのご要望の為、条件を未公開としている場合がございます。詳しくお聞きになりたい場合は、弊社までご連絡ください。
※賃料、共益費、礼金、その他費用には別途消費税が掛かります。
※上記金額は募集条件です。条件交渉などについてはお気軽にお問い合わせください。

BAGS CHAYAMACHIの施設情報カテゴリ

1棟貸可能
駅直結
大型EV
大型駐車場
大通り沿い
傘いらず
貸会議室
空中店舗相談
ヴィンテージ・レトロ
シャワートイレ
セキュリティ
SOHO(住居兼事務所)
デザイナーズ・個性派
トイレ男女別
荷物EVあり
ハイグレードオフィス
ネット回線引込可
ビル内貸倉庫
免振・制振構造
有人警備
ランドマーク
リニューアル
フリースペース
レンタルオフィス
新耐震
駅近(出口
築浅
川沿い、公園沿い
自転車置場

自転車置場料金: ー 円

BAGS CHAYAMACHIのアクセスマップ

空室情報や物件見学などお気軽にお問い合わせください。
ESTATE AGENCY
株式会社エステートエージェンシー
定休日:日曜日・祝日 営業時間:09:00~19:00
でお問い合わせ(無料メール 簡単1 電話でお問い合わせ(無料)

最近チェックした物件