フロア詳細情報

御堂筋グランド(大阪府大阪市中央区難波2丁目2番3号)のフロア情報

御堂筋グランドのビル詳細を見る
空室状況はお電話一本でスムーズにご案内!まずはお気軽に0120-939-204へどうぞ。
でお問い合わせ(無料メール 簡単1
※上記の写真は人物等が映っている場合、修正・加工が施されています。
物件情報更新日: 2026/02/04

御堂筋グランドの物件概要

ビル名
御堂筋グランド
物件番号/物件ID 12075
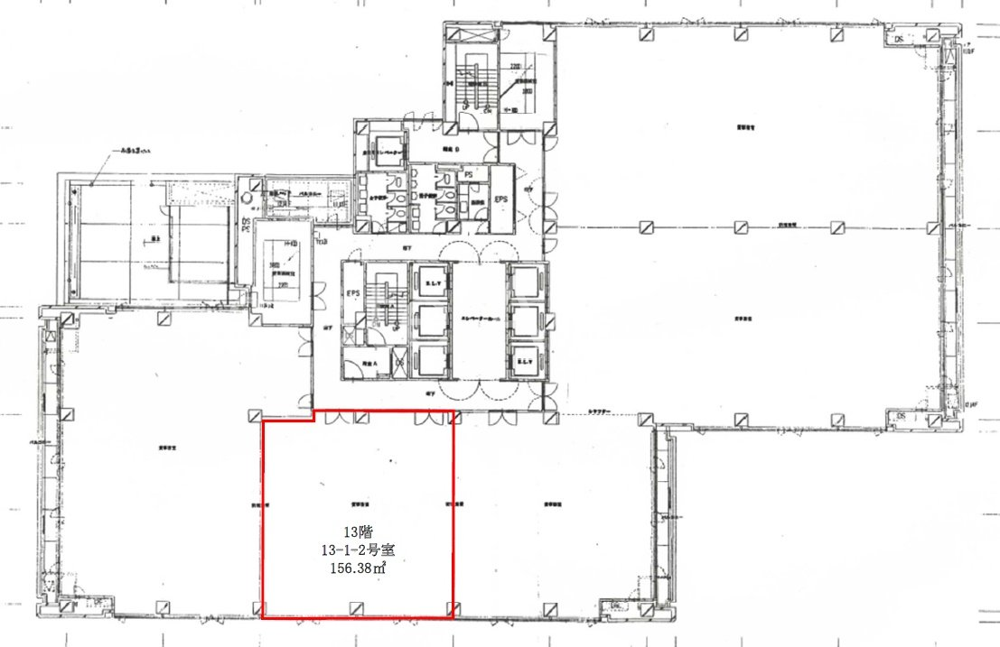
住所 大阪府大阪市中央区難波2丁目2番3号 面積(平米) 156.39㎡
最寄り駅
【最寄り駅1】

大阪メトロ御堂筋線 なんば駅  徒歩2分

【最寄り駅2】

大阪メトロ堺筋線 日本橋駅  徒歩8分

【最寄り駅3】

大阪メトロ四つ橋線 なんば駅  徒歩3分

【最寄り駅4】

大阪メトロ千日前線 なんば駅  徒歩1分

坪数 47.31坪
実行面積 100.00%
空調 個別・集中
竣工 1989年06月01日
構造 SRC地上15階建地下1階
エレベーター基数 7 荷物用エレベーター基数 1
階数 地上 13階 退去日 退去日の詳細につきましては、お問い合わせください。
備考
ビル名
御堂筋グランド
住所 12075
最寄り駅
【最寄り駅1】

大阪メトロ御堂筋線 なんば駅  徒歩2分

【最寄り駅2】

大阪メトロ堺筋線 日本橋駅  徒歩8分

【最寄り駅3】

大阪メトロ四つ橋線 なんば駅  徒歩3分

【最寄り駅4】

大阪メトロ千日前線 なんば駅  徒歩1分

エレベーター基数 7
階数 13階
物件番号/物件ID 12075
面積(平米) 156.39㎡
坪数 47.31坪
実行面積 100.00%
空調 個別・集中
竣工 1989年06月01日
構造 SRC地上15階建地下1階
荷物用エレベーター基数 1
退去日 退去日の詳細につきましては、お問い合わせください。
備考

御堂筋グランドの募集価格

総額 坪単価
賃料 非公開 賃料 非公開
共益費 非公開 共益費 非公開
月額合計 非公開 月額合計 非公開
保証金/敷金 非公開 保証金/敷金 非公開
礼金 非公開 礼金 非公開
賃料条件補足事項
総額
賃料 非公開
共益費 非公開
月額合計 非公開
保証金/敷金 非公開
礼金 非公開
坪単価
賃料 非公開
共益費 非公開
月額合計 非公開
保証金/敷金 非公開
礼金 非公開
賃料条件補足事項

御堂筋グランドのその他空室情報

階数 広さ 賃料合計(税別) 坪単価 保証金・敷金 礼金
14F 75.98坪 非公開 非公開 非公開 非公開
フロア詳細
フロア詳細
空室情報や物件見学などお気軽にお問い合わせください。
ESTATE AGENCY
株式会社エステートエージェンシー
定休日:日曜日・祝日 営業時間:09:00~19:00
でお問い合わせ(無料メール 簡単1 電話でお問い合わせ(無料)

御堂筋グランドの基本情報

インフォメーション
この御堂筋グランドビルは住所大阪府大阪市中央区難波2丁目2番3号の1989年竣工、地上15階建の賃貸オフィスビルです。最寄駅は、大阪メトロ千日前線なんば駅徒歩1分のアクセス。設備情報はアスベスト対策済、大型ビル、大通り沿い、表玄関OPEN(土曜日)、表玄関OPEN(日祝日)、貸会議室、喫煙室、自転車置場、シャワートイレ、セキュリティ、トイレ男女別、24時間利用可能、光回線、ランドマーク。是非一度ご内覧下さいませ! その他、事務所、オフィス移転、不動産の事なら何でもお気軽にご相談下さい。
※貸主様からのご要望の為、条件を未公開としている場合がございます。詳しくお聞きになりたい場合は、弊社までご連絡ください。
※賃料、共益費、礼金、その他費用には別途消費税が掛かります。
※上記金額は募集条件です。条件交渉などについてはお気軽にお問い合わせください。

御堂筋グランドの施設情報カテゴリ

1棟貸可能
駅直結
大型EV
大型駐車場
大通り沿い
傘いらず
貸会議室
空中店舗相談
ヴィンテージ・レトロ
シャワートイレ
セキュリティ
SOHO(住居兼事務所)
デザイナーズ・個性派
トイレ男女別
荷物EVあり
ハイグレードオフィス
ネット回線引込可
ビル内貸倉庫
免振・制振構造
有人警備
ランドマーク
リニューアル
フリースペース
レンタルオフィス
新耐震
駅近(出口
築浅
川沿い、公園沿い
自転車置場

自転車置場料金: ー 円

御堂筋グランドのアクセスマップ

空室情報や物件見学などお気軽にお問い合わせください。
ESTATE AGENCY
株式会社エステートエージェンシー
定休日:日曜日・祝日 営業時間:09:00~19:00
でお問い合わせ(無料メール 簡単1 電話でお問い合わせ(無料)

最近チェックした物件