フロア詳細情報

肥後橋レックス(大阪府大阪市西区江戸堀1丁目3番3号)のフロア情報

肥後橋レックスのビル詳細を見る
空室状況はお電話一本でスムーズにご案内!まずはお気軽に0120-939-204へどうぞ。
でお問い合わせ(無料メール 簡単1
※上記の写真は人物等が映っている場合、修正・加工が施されています。
物件情報更新日: 2025/12/16

肥後橋レックスの物件概要

ビル名
肥後橋レックス
物件番号/物件ID 12149
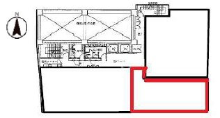
住所 大阪府大阪市西区江戸堀1丁目3番3号 面積(平米) 89.25㎡
最寄り駅
【最寄り駅1】

大阪メトロ四つ橋線 肥後橋駅  徒歩1分

【最寄り駅2】

大阪メトロ御堂筋線 淀屋橋駅  徒歩4分

【最寄り駅3】

京阪中之島線 渡辺橋駅  徒歩4分

【最寄り駅4】

大阪メトロ四つ橋線 西梅田駅  徒歩12分

坪数 27.00坪
実行面積 100.00%
空調 個別
竣工 1991年06月01日
構造 SRC地上8階建地下0階
エレベーター基数 2 荷物用エレベーター基数
階数 地上 2階 退去日 退去日の詳細につきましては、お問い合わせください。
備考 駐車場有(数台OK) 35,000円/台 敷金3ヶ月 、駐車場 空き台数 1台(空予定含む)(2022/1)
ビル名
肥後橋レックス
住所 12149
最寄り駅
【最寄り駅1】

大阪メトロ四つ橋線 肥後橋駅  徒歩1分

【最寄り駅2】

大阪メトロ御堂筋線 淀屋橋駅  徒歩4分

【最寄り駅3】

京阪中之島線 渡辺橋駅  徒歩4分

【最寄り駅4】

大阪メトロ四つ橋線 西梅田駅  徒歩12分

エレベーター基数 2
階数 2階
物件番号/物件ID 12149
面積(平米) 89.25㎡
坪数 27.00坪
実行面積 100.00%
空調 個別
竣工 1991年06月01日
構造 SRC地上8階建地下0階
荷物用エレベーター基数
退去日 退去日の詳細につきましては、お問い合わせください。
備考 駐車場有(数台OK) 35,000円/台 敷金3ヶ月 、駐車場 空き台数 1台(空予定含む)(2022/1)

肥後橋レックスの募集価格

総額 坪単価
賃料 非公開 賃料 非公開
共益費 非公開 共益費 非公開
月額合計 非公開 月額合計 非公開
保証金/敷金 非公開 保証金/敷金 非公開
礼金 非公開 礼金 非公開
賃料条件補足事項
総額
賃料 非公開
共益費 非公開
月額合計 非公開
保証金/敷金 非公開
礼金 非公開
坪単価
賃料 非公開
共益費 非公開
月額合計 非公開
保証金/敷金 非公開
礼金 非公開
賃料条件補足事項
空室情報や物件見学などお気軽にお問い合わせください。
ESTATE AGENCY
株式会社エステートエージェンシー
定休日:日曜日・祝日 営業時間:09:00~19:00
でお問い合わせ(無料メール 簡単1 電話でお問い合わせ(無料)

肥後橋レックスの基本情報

インフォメーション
肥後橋レックスビルは、西区エリア(大阪市西区江戸堀1丁目)にある、1991年竣工、地上8階建の賃貸オフィスビルです。最寄駅は、大阪メトロ四つ橋線 肥後橋駅 徒歩1分のアクセス。四ツ橋線、御堂筋線と好アクセスの立地。落ち着いた感じのエントランスビルスペックも満足の良く快適オフィス。是非一度ご内覧下さいませ!その他、事務所、オフィス移転の事なら何でもご相談下さい。
※貸主様からのご要望の為、条件を未公開としている場合がございます。詳しくお聞きになりたい場合は、弊社までご連絡ください。
※賃料、共益費、礼金、その他費用には別途消費税が掛かります。
※上記金額は募集条件です。条件交渉などについてはお気軽にお問い合わせください。

肥後橋レックスの施設情報カテゴリ

1棟貸可能
駅直結
大型EV
大型駐車場
大通り沿い
傘いらず
貸会議室
空中店舗相談
ヴィンテージ・レトロ
シャワートイレ
セキュリティ
SOHO(住居兼事務所)
デザイナーズ・個性派
トイレ男女別
荷物EVあり
ハイグレードオフィス
ネット回線引込可
ビル内貸倉庫
免振・制振構造
有人警備
ランドマーク
リニューアル
フリースペース
レンタルオフィス
新耐震
駅近(出口
築浅
川沿い、公園沿い
自転車置場

自転車置場料金: ー 円

肥後橋レックスのアクセスマップ

空室情報や物件見学などお気軽にお問い合わせください。
ESTATE AGENCY
株式会社エステートエージェンシー
定休日:日曜日・祝日 営業時間:09:00~19:00
でお問い合わせ(無料メール 簡単1 電話でお問い合わせ(無料)

よく似た物件