フロア詳細情報

天満パーク(大阪府大阪市北区天満4丁目14番19号)のフロア情報

天満パークのビル詳細を見る
空室状況はお電話一本でスムーズにご案内!まずはお気軽に0120-939-204へどうぞ。
でお問い合わせ(無料メール 簡単1
※上記の写真は人物等が映っている場合、修正・加工が施されています。
物件情報更新日: 2025/12/03

天満パークの物件概要

ビル名
天満パーク
物件番号/物件ID 13660
住所 大阪府大阪市北区天満4丁目14番19号 面積(平米) 62.80㎡
最寄り駅
【最寄り駅1】

JR東西線 大阪天満宮駅  徒歩4分

【最寄り駅2】

大阪メトロ堺筋線 南森町駅  徒歩6分

【最寄り駅3】

大阪メトロ谷町線 南森町駅  徒歩6分

【最寄り駅4】

京阪中之島線 天満橋駅  徒歩7分

坪数 19.00坪
実行面積 100.00%
空調 個別
竣工 1969年06月01日
構造 SRC地上8階建地下1階
エレベーター基数 1 荷物用エレベーター基数
階数 地上 4階 退去日 退去日の詳細につきましては、お問い合わせください。
備考
ビル名
天満パーク
住所 13660
最寄り駅
【最寄り駅1】

JR東西線 大阪天満宮駅  徒歩4分

【最寄り駅2】

大阪メトロ堺筋線 南森町駅  徒歩6分

【最寄り駅3】

大阪メトロ谷町線 南森町駅  徒歩6分

【最寄り駅4】

京阪中之島線 天満橋駅  徒歩7分

エレベーター基数 1
階数 4階
物件番号/物件ID 13660
面積(平米) 62.80㎡
坪数 19.00坪
実行面積 100.00%
空調 個別
竣工 1969年06月01日
構造 SRC地上8階建地下1階
荷物用エレベーター基数
退去日 退去日の詳細につきましては、お問い合わせください。
備考

天満パークの募集価格

総額 坪単価
賃料 190,000円 賃料 10,000円
共益費 57,000円 共益費 3,000円
月額合計 247,000円 月額合計 13,000円
保証金/敷金 2,470,000円 保証金/敷金 130,000円
礼金 0円 礼金 0円
賃料条件補足事項 共益費0.3万円、クリエイト5の解約時控除金:5年未満30%引、5年以上0%(原状回復なし)
総額
賃料 190,000円
共益費 57,000円
月額合計 247,000円
保証金/敷金 2,470,000円
礼金 0円
坪単価
賃料 10,000円
共益費 3,000円
月額合計 13,000円
保証金/敷金 130,000円
礼金 0円
賃料条件補足事項 共益費0.3万円、クリエイト5の解約時控除金:5年未満30%引、5年以上0%(原状回復なし)

天満パークのその他空室情報

階数 広さ 賃料合計(税別) 坪単価 保証金・敷金 礼金
3F 8.40坪 67,200円 8,000円 403,200円 0円
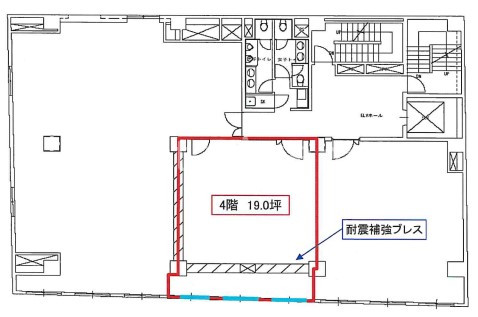
フロア詳細
フロア詳細
空室情報や物件見学などお気軽にお問い合わせください。
ESTATE AGENCY
株式会社エステートエージェンシー
定休日:日曜日・祝日 営業時間:09:00~19:00
でお問い合わせ(無料メール 簡単1 電話でお問い合わせ(無料)

天満パークの基本情報

インフォメーション
天満パークビルは、北区エリア(大阪市北区天満4丁目)にある、1969年竣工、地上8階建の賃貸オフィスビルです。最寄駅は、JR東西線 大阪天満宮駅 徒歩5分のアクセス。是非一度ご内覧下さいませ!その他、事務所、オフィス移転の事なら何でもご相談下さい。
※貸主様からのご要望の為、条件を未公開としている場合がございます。詳しくお聞きになりたい場合は、弊社までご連絡ください。
※賃料、共益費、礼金、その他費用には別途消費税が掛かります。
※上記金額は募集条件です。条件交渉などについてはお気軽にお問い合わせください。

天満パークの施設情報カテゴリ

1棟貸可能
駅直結
大型EV
大型駐車場
大通り沿い
傘いらず
貸会議室
空中店舗相談
ヴィンテージ・レトロ
シャワートイレ
セキュリティ
SOHO(住居兼事務所)
デザイナーズ・個性派
トイレ男女別
荷物EVあり
ハイグレードオフィス
ネット回線引込可
ビル内貸倉庫
免振・制振構造
有人警備
ランドマーク
リニューアル
フリースペース
レンタルオフィス
新耐震
駅近(出口
築浅
川沿い、公園沿い
自転車置場

自転車置場料金: ー 円

天満パークのアクセスマップ

空室情報や物件見学などお気軽にお問い合わせください。
ESTATE AGENCY
株式会社エステートエージェンシー
定休日:日曜日・祝日 営業時間:09:00~19:00
でお問い合わせ(無料メール 簡単1 電話でお問い合わせ(無料)

よく似た物件