フロア詳細情報

サムティフェイム新大阪1号館(大阪府大阪市淀川区西中島6丁目5番3号)のフロア情報

空室状況はお電話一本でスムーズにご案内!まずはお気軽に0120-939-204へどうぞ。
でお問い合わせ(無料メール 簡単1
※上記の写真は人物等が映っている場合、修正・加工が施されています。
物件情報更新日: 2025/11/28

サムティフェイム新大阪1号館の物件概要

ビル名
サムティフェイム新大阪1号館
物件番号/物件ID 14927
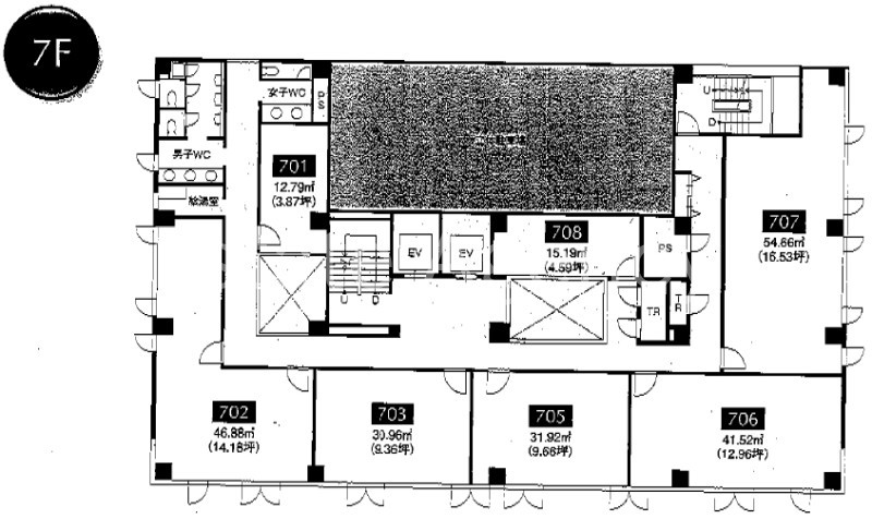
住所 大阪府大阪市淀川区西中島6丁目5番3号 面積(平米) 15.17㎡
最寄り駅
【最寄り駅1】

大阪メトロ御堂筋線 西中島南方駅  徒歩3分

【最寄り駅2】

大阪メトロ御堂筋線 新大阪駅  徒歩5分

【最寄り駅3】

JR東海道本線 新大阪駅  徒歩6分

坪数 4.59坪
実行面積 100.00%
空調 個別・集中
竣工 1991年01月01日
構造 地上9階建地下1階
エレベーター基数 2 荷物用エレベーター基数
階数 地上 7階 退去日 退去日の詳細につきましては、お問い合わせください。
備考
ビル名
サムティフェイム新大阪1号館
住所 14927
最寄り駅
【最寄り駅1】

大阪メトロ御堂筋線 西中島南方駅  徒歩3分

【最寄り駅2】

大阪メトロ御堂筋線 新大阪駅  徒歩5分

【最寄り駅3】

JR東海道本線 新大阪駅  徒歩6分

エレベーター基数 2
階数 7階
物件番号/物件ID 14927
面積(平米) 15.17㎡
坪数 4.59坪
実行面積 100.00%
空調 個別・集中
竣工 1991年01月01日
構造 地上9階建地下1階
荷物用エレベーター基数
退去日 退去日の詳細につきましては、お問い合わせください。
備考

サムティフェイム新大阪1号館の募集価格

総額 坪単価
賃料 52,842円 賃料 11,513円
共益費 0円 共益費 0円
月額合計 52,842円 月額合計 11,513円
保証金/敷金 105,684円 保証金/敷金 23,025円
礼金 0円 礼金 0円
賃料条件補足事項 保証会社加入要
総額
賃料 52,842円
共益費 0円
月額合計 52,842円
保証金/敷金 105,684円
礼金 0円
坪単価
賃料 11,513円
共益費 0円
月額合計 11,513円
保証金/敷金 23,025円
礼金 0円
賃料条件補足事項 保証会社加入要

サムティフェイム新大阪1号館のその他空室情報

階数 広さ 賃料合計(税別) 坪単価 保証金・敷金 礼金
7F 9.66坪 111,042円 11,496円 222,084円 0円
フロア詳細
フロア詳細
9F 20.87坪 240,034円 11,502円 480,068円 0円
フロア詳細
フロア詳細
9F 26.70坪 307,034円 11,500円 614,068円 0円
フロア詳細
フロア詳細
6F 4.59坪 52,842円 11,513円 105,684円 0円
フロア詳細
フロア詳細
4F 4.59坪 52,842円 11,513円 105,684円 0円
フロア詳細
フロア詳細
4F 16.53坪 190,147円 11,504円 380,296円 0円
フロア詳細
フロア詳細
4F 9.37坪 107,702円 11,495円 215,404円 0円
フロア詳細
フロア詳細
4F 9.66坪 111,042円 11,496円 222,084円 0円
フロア詳細
フロア詳細
2F 18.55坪 213,352円 11,502円 426,704円 0円
フロア詳細
フロア詳細
2F 38.84坪 446,741円 11,503円 893,482円 0円
フロア詳細
フロア詳細
空室情報や物件見学などお気軽にお問い合わせください。
ESTATE AGENCY
株式会社エステートエージェンシー
定休日:日曜日・祝日 営業時間:09:00~19:00
でお問い合わせ(無料メール 簡単1 電話でお問い合わせ(無料)

サムティフェイム新大阪1号館の基本情報

インフォメーション
サムティフェイム新大阪1号館ビルは、淀川区エリア(大阪市淀川区西中島6丁目)にある、1991年竣工の賃貸オフィスビルです。最寄駅は、大阪メトロ御堂筋線 西中島南方駅 徒歩3分のアクセス。是非一度ご内覧下さいませ!その他、事務所、オフィス移転の事なら何でもご相談下さい。
※貸主様からのご要望の為、条件を未公開としている場合がございます。詳しくお聞きになりたい場合は、弊社までご連絡ください。
※賃料、共益費、礼金、その他費用には別途消費税が掛かります。
※上記金額は募集条件です。条件交渉などについてはお気軽にお問い合わせください。

サムティフェイム新大阪1号館の施設情報カテゴリ

1棟貸可能
駅直結
大型EV
大型駐車場
大通り沿い
傘いらず
貸会議室
空中店舗相談
ヴィンテージ・レトロ
シャワートイレ
セキュリティ
SOHO(住居兼事務所)
デザイナーズ・個性派
トイレ男女別
荷物EVあり
ハイグレードオフィス
ネット回線引込可
ビル内貸倉庫
免振・制振構造
有人警備
ランドマーク
リニューアル
フリースペース
レンタルオフィス
新耐震
駅近(出口
築浅
川沿い、公園沿い
自転車置場

自転車置場料金: ー 円

サムティフェイム新大阪1号館のアクセスマップ

空室情報や物件見学などお気軽にお問い合わせください。
ESTATE AGENCY
株式会社エステートエージェンシー
定休日:日曜日・祝日 営業時間:09:00~19:00
でお問い合わせ(無料メール 簡単1 電話でお問い合わせ(無料)

よく似た物件