フロア詳細情報

新大阪ビル東館(大阪府大阪市東淀川区東中島1丁目17番18号)のフロア情報

新大阪ビル東館のビル詳細を見る
空室状況はお電話一本でスムーズにご案内!まずはお気軽に0120-939-204へどうぞ。
でお問い合わせ(無料メール 簡単1
※上記の写真は人物等が映っている場合、修正・加工が施されています。
物件情報更新日: 2026/01/13

新大阪ビル東館の物件概要

ビル名
新大阪ビル東館
物件番号/物件ID 15092
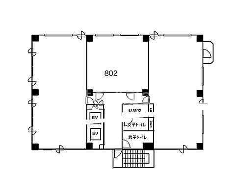
住所 大阪府大阪市東淀川区東中島1丁目17番18号 面積(平米) 73.22㎡
最寄り駅
【最寄り駅1】

JR東海道本線 新大阪駅  徒歩3分

【最寄り駅2】

JRおおさか東線 新大阪駅  徒歩4分

【最寄り駅3】

大阪メトロ御堂筋線 新大阪駅  徒歩5分

【最寄り駅4】

阪急京都本線 崇禅寺駅  徒歩8分

坪数 22.15坪
実行面積 100.00%
空調 個別
竣工 1986年06月01日
構造 鉄骨地上9階建地下0階
エレベーター基数 2 荷物用エレベーター基数
階数 地上 8階 退去日 退去日の詳細につきましては、お問い合わせください。
備考
ビル名
新大阪ビル東館
住所 15092
最寄り駅
【最寄り駅1】

JR東海道本線 新大阪駅  徒歩3分

【最寄り駅2】

JRおおさか東線 新大阪駅  徒歩4分

【最寄り駅3】

大阪メトロ御堂筋線 新大阪駅  徒歩5分

【最寄り駅4】

阪急京都本線 崇禅寺駅  徒歩8分

エレベーター基数 2
階数 8階
物件番号/物件ID 15092
面積(平米) 73.22㎡
坪数 22.15坪
実行面積 100.00%
空調 個別
竣工 1986年06月01日
構造 鉄骨地上9階建地下0階
荷物用エレベーター基数
退去日 退去日の詳細につきましては、お問い合わせください。
備考

新大阪ビル東館の募集価格

総額 坪単価
賃料 158,900円 賃料 7,174円
共益費 60,390円 共益費 2,727円
月額合計 219,290円 月額合計 9,901円
保証金/敷金 1,100,000円 保証金/敷金 49,662円
礼金 0円 礼金 0円
賃料条件補足事項 解約引要
総額
賃料 158,900円
共益費 60,390円
月額合計 219,290円
保証金/敷金 1,100,000円
礼金 0円
坪単価
賃料 7,174円
共益費 2,727円
月額合計 9,901円
保証金/敷金 49,662円
礼金 0円
賃料条件補足事項 解約引要
空室情報や物件見学などお気軽にお問い合わせください。
ESTATE AGENCY
株式会社エステートエージェンシー
定休日:日曜日・祝日 営業時間:09:00~19:00
でお問い合わせ(無料メール 簡単1 電話でお問い合わせ(無料)

新大阪ビル東館の基本情報

インフォメーション
新大阪ビル東館は、東淀川区エリア(大阪市東淀川区東中島1丁目)にある、1986年竣工、地上9階建の賃貸オフィスビルです。最寄駅は、大阪メトロ御堂筋線 西中島南方駅 徒歩4分のアクセス。是非一度ご内覧下さいませ!その他、事務所、オフィス移転の事なら何でもご相談下さい。
※貸主様からのご要望の為、条件を未公開としている場合がございます。詳しくお聞きになりたい場合は、弊社までご連絡ください。
※賃料、共益費、礼金、その他費用には別途消費税が掛かります。
※上記金額は募集条件です。条件交渉などについてはお気軽にお問い合わせください。

新大阪ビル東館の施設情報カテゴリ

1棟貸可能
駅直結
大型EV
大型駐車場
大通り沿い
傘いらず
貸会議室
空中店舗相談
ヴィンテージ・レトロ
シャワートイレ
セキュリティ
SOHO(住居兼事務所)
デザイナーズ・個性派
トイレ男女別
荷物EVあり
ハイグレードオフィス
ネット回線引込可
ビル内貸倉庫
免振・制振構造
有人警備
ランドマーク
リニューアル
フリースペース
レンタルオフィス
新耐震
駅近(出口
築浅
川沿い、公園沿い
自転車置場

自転車置場料金: ー 円

新大阪ビル東館のアクセスマップ

空室情報や物件見学などお気軽にお問い合わせください。
ESTATE AGENCY
株式会社エステートエージェンシー
定休日:日曜日・祝日 営業時間:09:00~19:00
でお問い合わせ(無料メール 簡単1 電話でお問い合わせ(無料)

最近チェックした物件