フロア詳細情報

KE(兵庫県神戸市中央区下山手通2丁目1番1号)のフロア情報

KEのビル詳細を見る
空室状況はお電話一本でスムーズにご案内!まずはお気軽に0120-939-204へどうぞ。
でお問い合わせ(無料メール 簡単1
※上記の写真は人物等が映っている場合、修正・加工が施されています。
物件情報更新日: 2025/10/29

KEの物件概要

ビル名
KE
物件番号/物件ID 18495
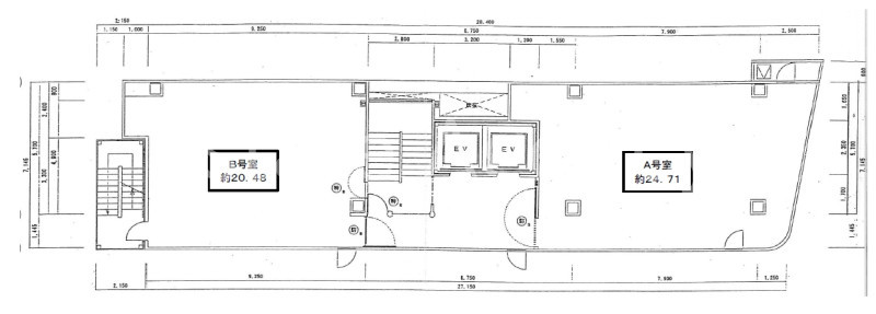
住所 兵庫県神戸市中央区下山手通2丁目1番1号 面積(平米) 165.28㎡
最寄り駅
【最寄り駅1】

阪急神戸本線 神戸三宮駅  徒歩4分

【最寄り駅2】

JR東海道本線 三ノ宮駅  徒歩7分

坪数 50.00坪
実行面積 84.00%
空調
竣工 1996年11月01日
構造 鉄骨地上7階建地下0階
エレベーター基数 2 荷物用エレベーター基数
階数 地上 5階 退去日 退去日の詳細につきましては、お問い合わせください。
備考
ビル名
KE
住所 18495
最寄り駅
【最寄り駅1】

阪急神戸本線 神戸三宮駅  徒歩4分

【最寄り駅2】

JR東海道本線 三ノ宮駅  徒歩7分

エレベーター基数 2
階数 5階
物件番号/物件ID 18495
面積(平米) 165.28㎡
坪数 50.00坪
実行面積 84.00%
空調
竣工 1996年11月01日
構造 鉄骨地上7階建地下0階
荷物用エレベーター基数
退去日 退去日の詳細につきましては、お問い合わせください。
備考

KEの募集価格

総額 坪単価
賃料 非公開 賃料 非公開
共益費 非公開 共益費 非公開
月額合計 非公開 月額合計 非公開
保証金/敷金 非公開 保証金/敷金 非公開
礼金 非公開 礼金 非公開
賃料条件補足事項 グロス面積(約42坪)
総額
賃料 非公開
共益費 非公開
月額合計 非公開
保証金/敷金 非公開
礼金 非公開
坪単価
賃料 非公開
共益費 非公開
月額合計 非公開
保証金/敷金 非公開
礼金 非公開
賃料条件補足事項 グロス面積(約42坪)

KEのその他空室情報

階数 広さ 賃料合計(税別) 坪単価 保証金・敷金 礼金
6F 50.00坪 非公開 非公開 非公開 非公開
フロア詳細
フロア詳細
4F 50.00坪 非公開 非公開 非公開 非公開
フロア詳細
フロア詳細
7F 50.00坪 非公開 非公開 非公開 非公開
フロア詳細
フロア詳細
空室情報や物件見学などお気軽にお問い合わせください。
ESTATE AGENCY
株式会社エステートエージェンシー
定休日:日曜日・祝日 営業時間:09:00~19:00
でお問い合わせ(無料メール 簡単1 電話でお問い合わせ(無料)

KEの基本情報

インフォメーション
KEビルは、三宮エリア(神戸市中央区下山手通2丁目)にある、1996年竣工、地上7階建の賃貸オフィスビルです。最寄駅は、阪急神戸本線神戸三宮駅徒歩4分のアクセス。是非一度ご内覧下さいませ!その他、事務所、オフィス移転、不動産の事なら何でもお気軽にご相談下さい。”
※貸主様からのご要望の為、条件を未公開としている場合がございます。詳しくお聞きになりたい場合は、弊社までご連絡ください。
※賃料、共益費、礼金、その他費用には別途消費税が掛かります。
※上記金額は募集条件です。条件交渉などについてはお気軽にお問い合わせください。

KEの施設情報カテゴリ

1棟貸可能
駅直結
大型EV
大型駐車場
大通り沿い
傘いらず
貸会議室
空中店舗相談
ヴィンテージ・レトロ
シャワートイレ
セキュリティ
SOHO(住居兼事務所)
デザイナーズ・個性派
トイレ男女別
荷物EVあり
ハイグレードオフィス
ネット回線引込可
ビル内貸倉庫
免振・制振構造
有人警備
ランドマーク
リニューアル
フリースペース
レンタルオフィス
新耐震
駅近(出口
築浅
川沿い、公園沿い
自転車置場

自転車置場料金: ー 円

KEのアクセスマップ

空室情報や物件見学などお気軽にお問い合わせください。
ESTATE AGENCY
株式会社エステートエージェンシー
定休日:日曜日・祝日 営業時間:09:00~19:00
でお問い合わせ(無料メール 簡単1 電話でお問い合わせ(無料)

最近チェックした物件