フロア詳細情報

ニュー備後町(大阪府大阪市中央区備後町3丁目3番15号)のフロア情報

ニュー備後町のビル詳細を見る
空室状況はお電話一本でスムーズにご案内!まずはお気軽に0120-939-204へどうぞ。
でお問い合わせ(無料メール 簡単1
※上記の写真は人物等が映っている場合、修正・加工が施されています。
物件情報更新日: 2025/12/01

ニュー備後町の物件概要

ビル名
ニュー備後町
物件番号/物件ID 10126
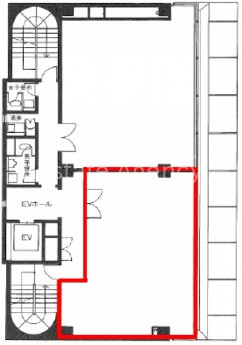
住所 大阪府大阪市中央区備後町3丁目3番15号 面積(平米) 73.78㎡
最寄り駅
【最寄り駅1】

大阪メトロ御堂筋線 本町駅  徒歩3分

【最寄り駅2】

大阪メトロ堺筋線 堺筋本町駅  徒歩6分

【最寄り駅3】

大阪メトロ御堂筋線 淀屋橋駅  徒歩8分

【最寄り駅4】

大阪メトロ堺筋線 北浜駅  徒歩9分

坪数 22.32坪
実行面積 90.00%
空調 個別
竣工 1986年10月01日
構造 RC地上6階建地下1階
エレベーター基数 1 荷物用エレベーター基数
階数 地上 6階 退去日 退去日の詳細につきましては、お問い合わせください。
備考
ビル名
ニュー備後町
住所 10126
最寄り駅
【最寄り駅1】

大阪メトロ御堂筋線 本町駅  徒歩3分

【最寄り駅2】

大阪メトロ堺筋線 堺筋本町駅  徒歩6分

【最寄り駅3】

大阪メトロ御堂筋線 淀屋橋駅  徒歩8分

【最寄り駅4】

大阪メトロ堺筋線 北浜駅  徒歩9分

エレベーター基数 1
階数 6階
物件番号/物件ID 10126
面積(平米) 73.78㎡
坪数 22.32坪
実行面積 90.00%
空調 個別
竣工 1986年10月01日
構造 RC地上6階建地下1階
荷物用エレベーター基数
退去日 退去日の詳細につきましては、お問い合わせください。
備考

ニュー備後町の募集価格

総額 坪単価
賃料 156,240円 賃料 7,000円
共益費 66,960円 共益費 3,000円
月額合計 223,200円 月額合計 10,000円
保証金/敷金 1,874,880円 保証金/敷金 84,000円
礼金 0円 礼金 0円
賃料条件補足事項
総額
賃料 156,240円
共益費 66,960円
月額合計 223,200円
保証金/敷金 1,874,880円
礼金 0円
坪単価
賃料 7,000円
共益費 3,000円
月額合計 10,000円
保証金/敷金 84,000円
礼金 0円
賃料条件補足事項
空室情報や物件見学などお気軽にお問い合わせください。
ESTATE AGENCY
株式会社エステートエージェンシー
定休日:日曜日・祝日 営業時間:09:00~19:00
でお問い合わせ(無料メール 簡単1 電話でお問い合わせ(無料)

ニュー備後町の基本情報

インフォメーション
このニュー備後町ビルは住所大阪府大阪市中央区備後町3番15号の1986年竣工、地上6階建の賃貸オフィスビルです。最寄駅は、大阪メトロ四つ橋線本町駅徒歩6分のアクセス。設備情報は室内インターフォン、シャワートイレ、セキュリティ、トイレ男女別、24時間利用可能、光回線。是非一度ご内覧下さいませ! その他、事務所、オフィス移転、不動産の事なら何でもお気軽にご相談下さい。
※貸主様からのご要望の為、条件を未公開としている場合がございます。詳しくお聞きになりたい場合は、弊社までご連絡ください。
※賃料、共益費、礼金、その他費用には別途消費税が掛かります。
※上記金額は募集条件です。条件交渉などについてはお気軽にお問い合わせください。

ニュー備後町の施設情報カテゴリ

1棟貸可能
駅直結
大型EV
大型駐車場
大通り沿い
傘いらず
貸会議室
空中店舗相談
ヴィンテージ・レトロ
シャワートイレ
セキュリティ
SOHO(住居兼事務所)
デザイナーズ・個性派
トイレ男女別
荷物EVあり
ハイグレードオフィス
ネット回線引込可
ビル内貸倉庫
免振・制振構造
有人警備
ランドマーク
リニューアル
フリースペース
レンタルオフィス
新耐震
駅近(出口
築浅
川沿い、公園沿い
自転車置場

自転車置場料金: ー 円

ニュー備後町のアクセスマップ

空室情報や物件見学などお気軽にお問い合わせください。
ESTATE AGENCY
株式会社エステートエージェンシー
定休日:日曜日・祝日 営業時間:09:00~19:00
でお問い合わせ(無料メール 簡単1 電話でお問い合わせ(無料)

よく似た物件

最近チェックした物件