フロア詳細情報

大阪司法(大阪府大阪市北区西天満3丁目8番13号)のフロア情報

大阪司法のビル詳細を見る
空室状況はお電話一本でスムーズにご案内!まずはお気軽に0120-939-204へどうぞ。
でお問い合わせ(無料メール 簡単1
※上記の写真は人物等が映っている場合、修正・加工が施されています。
物件情報更新日: 2026/02/08

大阪司法の物件概要

ビル名
大阪司法
物件番号/物件ID 13754
住所 大阪府大阪市北区西天満3丁目8番13号 面積(平米) 39.43㎡
最寄り駅
【最寄り駅1】

大阪メトロ谷町線 南森町駅  徒歩5分

【最寄り駅2】

大阪メトロ堺筋線 北浜駅  徒歩5分

【最寄り駅3】

JR東西線 大阪天満宮駅  徒歩7分

【最寄り駅4】

大阪メトロ御堂筋線 淀屋橋駅  徒歩9分

坪数 11.93坪
実行面積 100.00%
空調 個別
竣工 1979年03月01日
構造 RC地上7階建地下0階
エレベーター基数 1 荷物用エレベーター基数
階数 地上 4階 退去日 退去日の詳細につきましては、お問い合わせください。
備考
ビル名
大阪司法
住所 13754
最寄り駅
【最寄り駅1】

大阪メトロ谷町線 南森町駅  徒歩5分

【最寄り駅2】

大阪メトロ堺筋線 北浜駅  徒歩5分

【最寄り駅3】

JR東西線 大阪天満宮駅  徒歩7分

【最寄り駅4】

大阪メトロ御堂筋線 淀屋橋駅  徒歩9分

エレベーター基数 1
階数 4階
物件番号/物件ID 13754
面積(平米) 39.43㎡
坪数 11.93坪
実行面積 100.00%
空調 個別
竣工 1979年03月01日
構造 RC地上7階建地下0階
荷物用エレベーター基数
退去日 退去日の詳細につきましては、お問い合わせください。
備考

大阪司法の募集価格

総額 坪単価
賃料 90,000円 賃料 7,545円
共益費 17,272円 共益費 1,448円
月額合計 107,272円 月額合計 8,993円
保証金/敷金 180,000円 保証金/敷金 15,089円
礼金 90,000円 礼金 7,545円
賃料条件補足事項
総額
賃料 90,000円
共益費 17,272円
月額合計 107,272円
保証金/敷金 180,000円
礼金 90,000円
坪単価
賃料 7,545円
共益費 1,448円
月額合計 8,993円
保証金/敷金 15,089円
礼金 7,545円
賃料条件補足事項

大阪司法のその他空室情報

階数 広さ 賃料合計(税別) 坪単価 保証金・敷金 礼金
4F 18.50坪 163,636円 8,846円 270,910円 135,455円
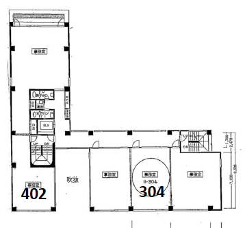
フロア詳細
フロア詳細
空室情報や物件見学などお気軽にお問い合わせください。
ESTATE AGENCY
株式会社エステートエージェンシー
定休日:日曜日・祝日 営業時間:09:00~19:00
でお問い合わせ(無料メール 簡単1 電話でお問い合わせ(無料)

大阪司法の基本情報

インフォメーション
大阪司法ビルは、北区エリア(大阪市北区西天満3丁目)にある、地上7階建の賃貸オフィスビルです。最寄駅は、大阪メトロ谷町線 南森町駅 徒歩5分のアクセス。是非一度ご内覧下さいませ!その他、事務所、オフィス移転の事なら何でもご相談下さい。
※貸主様からのご要望の為、条件を未公開としている場合がございます。詳しくお聞きになりたい場合は、弊社までご連絡ください。
※賃料、共益費、礼金、その他費用には別途消費税が掛かります。
※上記金額は募集条件です。条件交渉などについてはお気軽にお問い合わせください。

大阪司法の施設情報カテゴリ

1棟貸可能
駅直結
大型EV
大型駐車場
大通り沿い
傘いらず
貸会議室
空中店舗相談
ヴィンテージ・レトロ
シャワートイレ
セキュリティ
SOHO(住居兼事務所)
デザイナーズ・個性派
トイレ男女別
荷物EVあり
ハイグレードオフィス
ネット回線引込可
ビル内貸倉庫
免振・制振構造
有人警備
ランドマーク
リニューアル
フリースペース
レンタルオフィス
新耐震
駅近(出口
築浅
川沿い、公園沿い
自転車置場

自転車置場料金: ー 円

大阪司法のアクセスマップ

空室情報や物件見学などお気軽にお問い合わせください。
ESTATE AGENCY
株式会社エステートエージェンシー
定休日:日曜日・祝日 営業時間:09:00~19:00
でお問い合わせ(無料メール 簡単1 電話でお問い合わせ(無料)

よく似た物件

最近チェックした物件