フロア詳細情報

ダイアパレス本町(大阪府大阪市中央区内本町2丁目3番8号)のフロア情報

ダイアパレス本町のビル詳細を見る
空室状況はお電話一本でスムーズにご案内!まずはお気軽に0120-939-204へどうぞ。
でお問い合わせ(無料メール 簡単1
※上記の写真は人物等が映っている場合、修正・加工が施されています。
物件情報更新日: 2025/12/01

ダイアパレス本町の物件概要

ビル名
ダイアパレス本町
物件番号/物件ID 11342
住所 大阪府大阪市中央区内本町2丁目3番8号 面積(平米) 64.03㎡
最寄り駅
【最寄り駅1】

大阪メトロ谷町線 谷町四丁目駅  徒歩5分

【最寄り駅2】

大阪メトロ堺筋線 堺筋本町駅  徒歩6分

【最寄り駅3】

大阪メトロ谷町線 天満橋駅  徒歩10分

【最寄り駅4】

大阪メトロ中央線 谷町四丁目駅  徒歩6分

坪数 19.37坪
実行面積 100.00%
空調 個別
竣工 1984年02月01日
構造 SRC地上10階建地下1階
エレベーター基数 2 荷物用エレベーター基数
階数 地上 10階 退去日 退去日の詳細につきましては、お問い合わせください。
備考
ビル名
ダイアパレス本町
住所 11342
最寄り駅
【最寄り駅1】

大阪メトロ谷町線 谷町四丁目駅  徒歩5分

【最寄り駅2】

大阪メトロ堺筋線 堺筋本町駅  徒歩6分

【最寄り駅3】

大阪メトロ谷町線 天満橋駅  徒歩10分

【最寄り駅4】

大阪メトロ中央線 谷町四丁目駅  徒歩6分

エレベーター基数 2
階数 10階
物件番号/物件ID 11342
面積(平米) 64.03㎡
坪数 19.37坪
実行面積 100.00%
空調 個別
竣工 1984年02月01日
構造 SRC地上10階建地下1階
荷物用エレベーター基数
退去日 退去日の詳細につきましては、お問い合わせください。
備考

ダイアパレス本町の募集価格

総額 坪単価
賃料 164,645円 賃料 8,500円
共益費 0円 共益費 0円
月額合計 164,645円 月額合計 8,500円
保証金/敷金 329,290円 保証金/敷金 17,000円
礼金 329,290円 礼金 17,000円
賃料条件補足事項 保証会社加入義務有/1年未満の解約は違約金
総額
賃料 164,645円
共益費 0円
月額合計 164,645円
保証金/敷金 329,290円
礼金 329,290円
坪単価
賃料 8,500円
共益費 0円
月額合計 8,500円
保証金/敷金 17,000円
礼金 17,000円
賃料条件補足事項 保証会社加入義務有/1年未満の解約は違約金

ダイアパレス本町のその他空室情報

階数 広さ 賃料合計(税別) 坪単価 保証金・敷金 礼金
9F 20.78坪 241,720円 11,633円 0円 241,720円
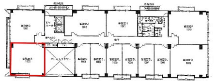
フロア詳細
フロア詳細
空室情報や物件見学などお気軽にお問い合わせください。
ESTATE AGENCY
株式会社エステートエージェンシー
定休日:日曜日・祝日 営業時間:09:00~19:00
でお問い合わせ(無料メール 簡単1 電話でお問い合わせ(無料)

ダイアパレス本町の基本情報

インフォメーション
ダイアパレス本町は、中央区エリア(大阪市中央区内本町2丁目)にある、1984年竣工、地上10階地下1階建の賃貸オフィスビルです。最寄駅は、大阪メトロ谷町線 谷町4丁目駅 徒歩4分のアクセス。是非一度ご内覧下さいませ!その他、事務所、オフィス移転の事なら何でもご相談下さい。
※貸主様からのご要望の為、条件を未公開としている場合がございます。詳しくお聞きになりたい場合は、弊社までご連絡ください。
※賃料、共益費、礼金、その他費用には別途消費税が掛かります。
※上記金額は募集条件です。条件交渉などについてはお気軽にお問い合わせください。

ダイアパレス本町の施設情報カテゴリ

1棟貸可能
駅直結
大型EV
大型駐車場
大通り沿い
傘いらず
貸会議室
空中店舗相談
ヴィンテージ・レトロ
シャワートイレ
セキュリティ
SOHO(住居兼事務所)
デザイナーズ・個性派
トイレ男女別
荷物EVあり
ハイグレードオフィス
ネット回線引込可
ビル内貸倉庫
免振・制振構造
有人警備
ランドマーク
リニューアル
フリースペース
レンタルオフィス
新耐震
駅近(出口
築浅
川沿い、公園沿い
自転車置場

自転車置場料金: ー 円

ダイアパレス本町のアクセスマップ

空室情報や物件見学などお気軽にお問い合わせください。
ESTATE AGENCY
株式会社エステートエージェンシー
定休日:日曜日・祝日 営業時間:09:00~19:00
でお問い合わせ(無料メール 簡単1 電話でお問い合わせ(無料)

よく似た物件

最近チェックした物件