フロア詳細情報

UMEDA EAST CROSS(大阪府大阪市北区堂山町丁目なし111番)のフロア情報

空室状況はお電話一本でスムーズにご案内!まずはお気軽に0120-939-204へどうぞ。
でお問い合わせ(無料メール 簡単1
※上記の写真は人物等が映っている場合、修正・加工が施されています。
物件情報更新日: 2025/09/16

UMEDA EAST CROSSの物件概要

ビル名
UMEDA EAST CROSS
物件番号/物件ID 24198
住所 大阪府大阪市北区堂山町丁目なし111番 面積(平米) 84.03㎡
最寄り駅
【最寄り駅1】

大阪メトロ谷町線 東梅田駅  徒歩4分

【最寄り駅2】

阪急神戸本線 大阪梅田駅  徒歩5分

【最寄り駅3】

大阪メトロ御堂筋線 梅田駅  徒歩6分

【最寄り駅4】

JR大阪環状線 大阪駅  徒歩8分

坪数 25.42坪
実行面積 100.00%
空調
竣工 2025年09月01日
構造 鉄骨地上14階建地下0階
エレベーター基数 荷物用エレベーター基数
階数 地上 2階 退去日 退去日の詳細につきましては、お問い合わせください。
備考
ビル名
UMEDA EAST CROSS
住所 24198
最寄り駅
【最寄り駅1】

大阪メトロ谷町線 東梅田駅  徒歩4分

【最寄り駅2】

阪急神戸本線 大阪梅田駅  徒歩5分

【最寄り駅3】

大阪メトロ御堂筋線 梅田駅  徒歩6分

【最寄り駅4】

JR大阪環状線 大阪駅  徒歩8分

エレベーター基数
階数 2階
物件番号/物件ID 24198
面積(平米) 84.03㎡
坪数 25.42坪
実行面積 100.00%
空調
竣工 2025年09月01日
構造 鉄骨地上14階建地下0階
荷物用エレベーター基数
退去日 退去日の詳細につきましては、お問い合わせください。
備考

UMEDA EAST CROSSの募集価格

総額 坪単価
賃料 非公開 賃料 非公開
共益費 非公開 共益費 非公開
月額合計 非公開 月額合計 非公開
保証金/敷金 非公開 保証金/敷金 非公開
礼金 非公開 礼金 非公開
賃料条件補足事項
総額
賃料 非公開
共益費 非公開
月額合計 非公開
保証金/敷金 非公開
礼金 非公開
坪単価
賃料 非公開
共益費 非公開
月額合計 非公開
保証金/敷金 非公開
礼金 非公開
賃料条件補足事項

UMEDA EAST CROSSのその他空室情報

階数 広さ 賃料合計(税別) 坪単価 保証金・敷金 礼金
2F 159.32坪 非公開 非公開 非公開 非公開
フロア詳細
フロア詳細
3F 159.32坪 非公開 非公開 非公開 非公開
フロア詳細
フロア詳細
4F 159.32坪 非公開 非公開 非公開 非公開
フロア詳細
フロア詳細
5F 159.32坪 非公開 非公開 非公開 非公開
フロア詳細
フロア詳細
6F 159.32坪 非公開 非公開 非公開 非公開
フロア詳細
フロア詳細
7F 159.32坪 非公開 非公開 非公開 非公開
フロア詳細
フロア詳細
8F 159.32坪 非公開 非公開 非公開 非公開
フロア詳細
フロア詳細
9F 159.32坪 非公開 非公開 非公開 非公開
フロア詳細
フロア詳細
10F 159.32坪 非公開 非公開 非公開 非公開
フロア詳細
フロア詳細
11F 159.32坪 非公開 非公開 非公開 非公開
フロア詳細
フロア詳細
12F 159.32坪 非公開 非公開 非公開 非公開
フロア詳細
フロア詳細
13F 159.32坪 非公開 非公開 非公開 非公開
フロア詳細
フロア詳細
14F 159.32坪 非公開 非公開 非公開 非公開
フロア詳細
フロア詳細
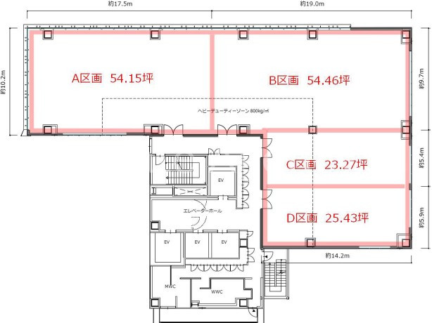
2F 54.15坪 非公開 非公開 非公開 非公開
フロア詳細
フロア詳細
2F 56.46坪 非公開 非公開 非公開 非公開
フロア詳細
フロア詳細
2F 23.26坪 非公開 非公開 非公開 非公開
フロア詳細
フロア詳細
空室情報や物件見学などお気軽にお問い合わせください。
ESTATE AGENCY
株式会社エステートエージェンシー
定休日:日曜日・祝日 営業時間:09:00~19:00
でお問い合わせ(無料メール 簡単1 電話でお問い合わせ(無料)
※貸主様からのご要望の為、条件を未公開としている場合がございます。詳しくお聞きになりたい場合は、弊社までご連絡ください。
※賃料、共益費、礼金、その他費用には別途消費税が掛かります。
※上記金額は募集条件です。条件交渉などについてはお気軽にお問い合わせください。

UMEDA EAST CROSSの施設情報カテゴリ

1棟貸可能
駅直結
大型EV
大型駐車場
大通り沿い
傘いらず
貸会議室
空中店舗相談
ヴィンテージ・レトロ
シャワートイレ
セキュリティ
SOHO(住居兼事務所)
デザイナーズ・個性派
トイレ男女別
荷物EVあり
ハイグレードオフィス
ネット回線引込可
ビル内貸倉庫
免振・制振構造
有人警備
ランドマーク
リニューアル
フリースペース
レンタルオフィス
新耐震
駅近(出口
築浅
川沿い、公園沿い
自転車置場

自転車置場料金: ー 円

UMEDA EAST CROSSのアクセスマップ

空室情報や物件見学などお気軽にお問い合わせください。
ESTATE AGENCY
株式会社エステートエージェンシー
定休日:日曜日・祝日 営業時間:09:00~19:00
でお問い合わせ(無料メール 簡単1 電話でお問い合わせ(無料)

よく似た物件

最近チェックした物件