フロア詳細情報

マルイト難波(大阪府大阪市浪速区湊町1丁目2番3号)のフロア情報

マルイト難波のビル詳細を見る
空室状況はお電話一本でスムーズにご案内!まずはお気軽に0120-939-204へどうぞ。
でお問い合わせ(無料メール 簡単1
※上記の写真は人物等が映っている場合、修正・加工が施されています。
物件情報更新日: 2025/11/04

マルイト難波の物件概要

ビル名
マルイト難波
物件番号/物件ID 15144
住所 大阪府大阪市浪速区湊町1丁目2番3号 面積(平米) 405.38㎡
最寄り駅
【最寄り駅1】

JR関西本線 JR難波駅  徒歩1分

【最寄り駅2】

大阪メトロ四つ橋線 なんば駅  徒歩2分

【最寄り駅3】

阪神なんば線 大阪難波駅  徒歩3分

【最寄り駅4】

近鉄難波・奈良線 大阪難波駅  徒歩3分

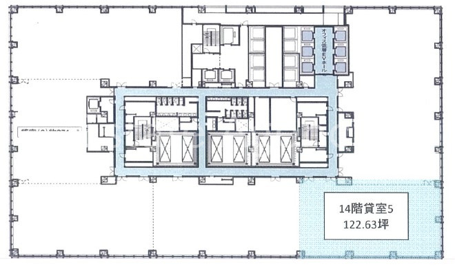
坪数 122.63坪
実行面積 100.00%
空調 個別
竣工 2009年08月01日
構造 SRC地上31階建地下2階
エレベーター基数 12 荷物用エレベーター基数 1
階数 地上 14階 退去日 退去日の詳細につきましては、お問い合わせください。
備考
ビル名
マルイト難波
住所 15144
最寄り駅
【最寄り駅1】

JR関西本線 JR難波駅  徒歩1分

【最寄り駅2】

大阪メトロ四つ橋線 なんば駅  徒歩2分

【最寄り駅3】

阪神なんば線 大阪難波駅  徒歩3分

【最寄り駅4】

近鉄難波・奈良線 大阪難波駅  徒歩3分

エレベーター基数 12
階数 14階
物件番号/物件ID 15144
面積(平米) 405.38㎡
坪数 122.63坪
実行面積 100.00%
空調 個別
竣工 2009年08月01日
構造 SRC地上31階建地下2階
荷物用エレベーター基数 1
退去日 退去日の詳細につきましては、お問い合わせください。
備考

マルイト難波の募集価格

総額 坪単価
賃料 非公開 賃料 非公開
共益費 非公開 共益費 非公開
月額合計 非公開 月額合計 非公開
保証金/敷金 非公開 保証金/敷金 非公開
礼金 非公開 礼金 非公開
賃料条件補足事項
総額
賃料 非公開
共益費 非公開
月額合計 非公開
保証金/敷金 非公開
礼金 非公開
坪単価
賃料 非公開
共益費 非公開
月額合計 非公開
保証金/敷金 非公開
礼金 非公開
賃料条件補足事項

マルイト難波のその他空室情報

階数 広さ 賃料合計(税別) 坪単価 保証金・敷金 礼金
9F 262.20坪 非公開 非公開 非公開 非公開
フロア詳細
フロア詳細
空室情報や物件見学などお気軽にお問い合わせください。
ESTATE AGENCY
株式会社エステートエージェンシー
定休日:日曜日・祝日 営業時間:09:00~19:00
でお問い合わせ(無料メール 簡単1 電話でお問い合わせ(無料)

マルイト難波の基本情報

インフォメーション
マルイト難波ビルは、浪速区エリア(大阪市浪速区湊町1丁目)にある、2009年竣工、地上31階地下2階建の賃貸オフィスビルです。最寄駅は大阪メトロ四つ橋線 なんば駅 徒歩1分のアクセス。交通ターミナルの優れたロケーションと機能的で効率の良いワークスペースを兼ね備え、難波の新たなランドマークとなる次世代オフィスビル。是非一度ご内覧下さいませ!その他、事務所、オフィス移転の事なら何でもご相談下さい。
※貸主様からのご要望の為、条件を未公開としている場合がございます。詳しくお聞きになりたい場合は、弊社までご連絡ください。
※賃料、共益費、礼金、その他費用には別途消費税が掛かります。
※上記金額は募集条件です。条件交渉などについてはお気軽にお問い合わせください。

マルイト難波の施設情報カテゴリ

1棟貸可能
駅直結
大型EV
大型駐車場
大通り沿い
傘いらず
貸会議室
空中店舗相談
ヴィンテージ・レトロ
シャワートイレ
セキュリティ
SOHO(住居兼事務所)
デザイナーズ・個性派
トイレ男女別
荷物EVあり
ハイグレードオフィス
ネット回線引込可
ビル内貸倉庫
免振・制振構造
有人警備
ランドマーク
リニューアル
フリースペース
レンタルオフィス
新耐震
駅近(出口
築浅
川沿い、公園沿い
自転車置場

自転車置場料金: ー 円

マルイト難波のアクセスマップ

空室情報や物件見学などお気軽にお問い合わせください。
ESTATE AGENCY
株式会社エステートエージェンシー
定休日:日曜日・祝日 営業時間:09:00~19:00
でお問い合わせ(無料メール 簡単1 電話でお問い合わせ(無料)