フロア詳細情報

ビガーポリス518 ユアサ天満橋(大阪府大阪市北区天満1丁目6番11号)のフロア情報

空室状況はお電話一本でスムーズにご案内!まずはお気軽に0120-939-204へどうぞ。
でお問い合わせ(無料メール 簡単1
※上記の写真は人物等が映っている場合、修正・加工が施されています。
物件情報更新日: 2025/02/04

ビガーポリス518 ユアサ天満橋の物件概要

ビル名
ビガーポリス518 ユアサ天満橋
物件番号/物件ID 13578
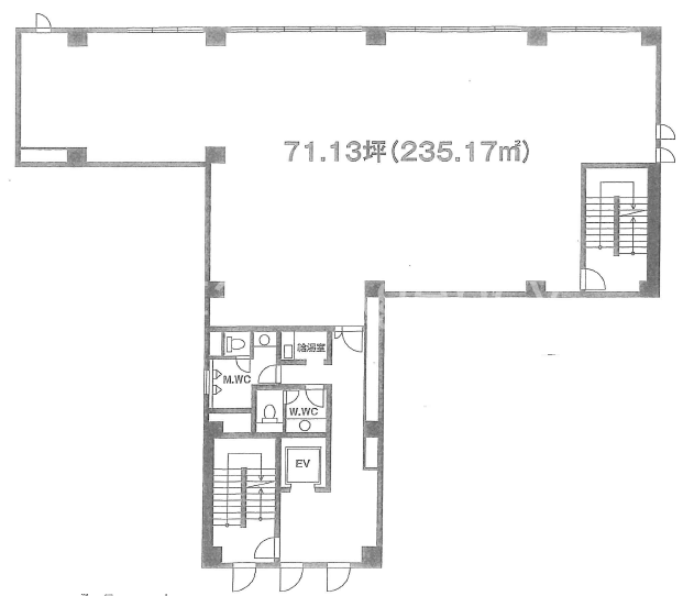
住所 大阪府大阪市北区天満1丁目6番11号 面積(平米) 235.14㎡
最寄り駅
【最寄り駅1】

大阪メトロ谷町線 天満橋駅  徒歩6分

【最寄り駅2】

JR東西線 大阪天満宮駅  徒歩8分

【最寄り駅3】

大阪メトロ堺筋線 南森町駅  徒歩10分

【最寄り駅4】

京阪本線 天満橋駅  徒歩5分

坪数 71.13坪
実行面積 100.00%
空調 個別
竣工 1985年12月01日
構造 SRC地上7階建地下1階
エレベーター基数 1 荷物用エレベーター基数
階数 地上 6階 退去日 退去日の詳細につきましては、お問い合わせください。
備考
ビル名
ビガーポリス518 ユアサ天満橋
住所 13578
最寄り駅
【最寄り駅1】

大阪メトロ谷町線 天満橋駅  徒歩6分

【最寄り駅2】

JR東西線 大阪天満宮駅  徒歩8分

【最寄り駅3】

大阪メトロ堺筋線 南森町駅  徒歩10分

【最寄り駅4】

京阪本線 天満橋駅  徒歩5分

エレベーター基数 1
階数 6階
物件番号/物件ID 13578
面積(平米) 235.14㎡
坪数 71.13坪
実行面積 100.00%
空調 個別
竣工 1985年12月01日
構造 SRC地上7階建地下1階
荷物用エレベーター基数
退去日 退去日の詳細につきましては、お問い合わせください。
備考

ビガーポリス518 ユアサ天満橋の募集価格

総額 坪単価
賃料 650,000円 賃料 9,139円
共益費 0円 共益費 0円
月額合計 650,000円 月額合計 9,139円
保証金/敷金 650,000円 保証金/敷金 9,139円
礼金 1,300,000円 礼金 18,277円
賃料条件補足事項
総額
賃料 650,000円
共益費 0円
月額合計 650,000円
保証金/敷金 650,000円
礼金 1,300,000円
坪単価
賃料 9,139円
共益費 0円
月額合計 9,139円
保証金/敷金 9,139円
礼金 18,277円
賃料条件補足事項
空室情報や物件見学などお気軽にお問い合わせください。
ESTATE AGENCY
株式会社エステートエージェンシー
定休日:日曜日・祝日 営業時間:09:00~19:00
でお問い合わせ(無料メール 簡単1 電話でお問い合わせ(無料)

ビガーポリス518 ユアサ天満橋の基本情報

インフォメーション
ユアサ天満橋ビルは、北区エリア(大阪市北区天満1丁目)にある、1985年竣工、地上7階地下1階建の賃貸オフィスビルです。最寄駅は、大阪メトロ谷町線 天満橋駅 徒歩8分のアクセス。是非一度ご内覧下さいませ!その他、事務所、オフィス移転の事なら何でもご相談下さい。
※貸主様からのご要望の為、条件を未公開としている場合がございます。詳しくお聞きになりたい場合は、弊社までご連絡ください。
※賃料、共益費、礼金、その他費用には別途消費税が掛かります。
※上記金額は募集条件です。条件交渉などについてはお気軽にお問い合わせください。
※確認時点での情報のため、リアルタイム情報はお問合せください。

ビガーポリス518 ユアサ天満橋の施設情報カテゴリ

1棟貸可能
駅直結
大型EV
大型駐車場
大通り沿い
傘いらず
貸会議室
空中店舗相談
ヴィンテージ・レトロ
シャワートイレ
セキュリティ
SOHO(住居兼事務所)
デザイナーズ・個性派
トイレ男女別
荷物EVあり
ハイグレードオフィス
ネット回線引込可
ビル内貸倉庫
免振・制振構造
有人警備
ランドマーク
リニューアル
フリースペース
レンタルオフィス
新耐震
駅近(出口
築浅
川沿い、公園沿い
自転車置場

自転車置場料金: ー 円

ビガーポリス518 ユアサ天満橋のアクセスマップ

空室情報や物件見学などお気軽にお問い合わせください。
ESTATE AGENCY
株式会社エステートエージェンシー
定休日:日曜日・祝日 営業時間:09:00~19:00
でお問い合わせ(無料メール 簡単1 電話でお問い合わせ(無料)