フロア詳細情報

GROOVE神戸三宮(兵庫県神戸市中央区磯上通7丁目1番28号)のフロア情報

空室状況はお電話一本でスムーズにご案内!まずはお気軽に0120-939-204へどうぞ。
でお問い合わせ(無料メール 簡単1
※上記の写真は人物等が映っている場合、修正・加工が施されています。
物件情報更新日: 2026/01/22

GROOVE神戸三宮の物件概要

ビル名
GROOVE神戸三宮
物件番号/物件ID 24829
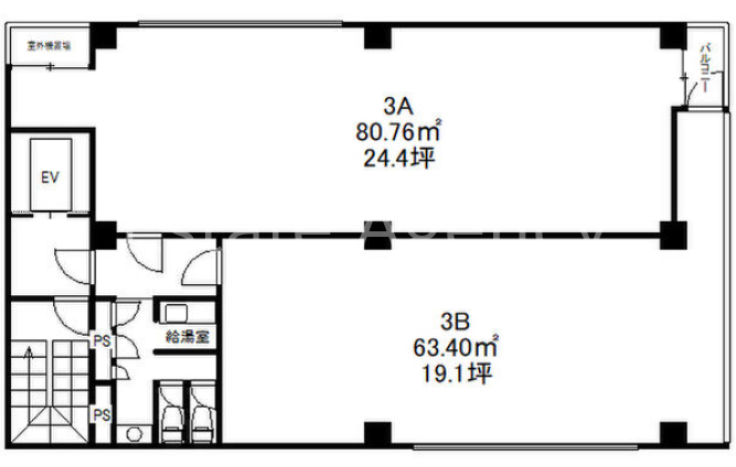
住所 兵庫県神戸市中央区磯上通7丁目1番28号 面積(平米) 80.76㎡
最寄り駅
【最寄り駅1】

夢かもめ 三宮・花時計前駅  徒歩2分

【最寄り駅2】

阪神本線 神戸三宮駅  徒歩3分

【最寄り駅3】

ポートアイランド線 貿易センター駅  徒歩4分

【最寄り駅4】

ポートアイランド線 三宮駅  徒歩4分

坪数 24.43坪
実行面積
空調 個別
竣工 2024年05月01日
構造 S造地上10階建
エレベーター基数 1 荷物用エレベーター基数
階数 地上 3階 退去日 退去日の詳細につきましては、お問い合わせください。
備考
ビル名
GROOVE神戸三宮
住所 24829
最寄り駅
【最寄り駅1】

夢かもめ 三宮・花時計前駅  徒歩2分

【最寄り駅2】

阪神本線 神戸三宮駅  徒歩3分

【最寄り駅3】

ポートアイランド線 貿易センター駅  徒歩4分

【最寄り駅4】

ポートアイランド線 三宮駅  徒歩4分

エレベーター基数 1
階数 3階
物件番号/物件ID 24829
面積(平米) 80.76㎡
坪数 24.43坪
実行面積
空調 個別
竣工 2024年05月01日
構造 S造地上10階建
荷物用エレベーター基数
退去日 退去日の詳細につきましては、お問い合わせください。
備考

GROOVE神戸三宮の募集価格

総額 坪単価
賃料 409,500円 賃料 16,763円
共益費 50,000円 共益費 2,047円
月額合計 459,500円 月額合計 18,810円
保証金/敷金 1,228,500円 保証金/敷金 50,287円
礼金 0円 礼金 0円
賃料条件補足事項 保証会社加入要
総額
賃料 409,500円
共益費 50,000円
月額合計 459,500円
保証金/敷金 1,228,500円
礼金 0円
坪単価
賃料 16,763円
共益費 2,047円
月額合計 18,810円
保証金/敷金 50,287円
礼金 0円
賃料条件補足事項 保証会社加入要

GROOVE神戸三宮のその他空室情報

階数 広さ 賃料合計(税別) 坪単価 保証金・敷金 礼金
5F 51.65坪 760,000円 14,715円 3,412,500円 0円
フロア詳細
フロア詳細
4F 51.65坪 744,000円 14,406円 3,332,500円 0円
フロア詳細
フロア詳細
6F 51.65坪 775,000円 15,006円 3,487,500円 0円
フロア詳細
フロア詳細
7F 51.65坪 798,000円 15,451円 3,602,500円 0円
フロア詳細
フロア詳細
8F 51.65坪 821,000円 15,896円 3,717,500円 0円
フロア詳細
フロア詳細
9F 51.65坪 845,500円 16,371円 3,840,000円 0円
フロア詳細
フロア詳細
2F 51.65坪 798,000円 15,451円 3,602,500円 0円
フロア詳細
フロア詳細
空室情報や物件見学などお気軽にお問い合わせください。
ESTATE AGENCY
株式会社エステートエージェンシー
定休日:日曜日・祝日 営業時間:09:00~19:00
でお問い合わせ(無料メール 簡単1 電話でお問い合わせ(無料)
※貸主様からのご要望の為、条件を未公開としている場合がございます。詳しくお聞きになりたい場合は、弊社までご連絡ください。
※賃料、共益費、礼金、その他費用には別途消費税が掛かります。
※上記金額は募集条件です。条件交渉などについてはお気軽にお問い合わせください。
※確認時点での情報のため、リアルタイム情報はお問合せください。

GROOVE神戸三宮の施設情報カテゴリ

1棟貸可能
駅直結
大型EV
大型駐車場
大通り沿い
傘いらず
貸会議室
空中店舗相談
ヴィンテージ・レトロ
シャワートイレ
セキュリティ
SOHO(住居兼事務所)
デザイナーズ・個性派
トイレ男女別
荷物EVあり
ハイグレードオフィス
ネット回線引込可
ビル内貸倉庫
免振・制振構造
有人警備
ランドマーク
リニューアル
フリースペース
レンタルオフィス
新耐震
駅近(出口
築浅
川沿い、公園沿い
自転車置場

自転車置場料金: ー 円

GROOVE神戸三宮のアクセスマップ

空室情報や物件見学などお気軽にお問い合わせください。
ESTATE AGENCY
株式会社エステートエージェンシー
定休日:日曜日・祝日 営業時間:09:00~19:00
でお問い合わせ(無料メール 簡単1 電話でお問い合わせ(無料)

申し訳ございません。
会員登録をお願い致します。

会員登録のメリット

  • 1、非公開物件情報のご紹介が可能です!
  • 2、ご希望条件をいただきましたら新着物件情報等を定期的に配信いたします!
  • 3、会員登録されたお客様にはご契約時に特別なプレゼントをご用意しております!
会員登録

※会員登録は同業者不可、メールアドレスは企業ドメインのみ
※GmailやYahooなどのフリーメールでは会員登録できないこともありますのでご了承ください。