| ビル名 | 
                                 
                                        梅田パーク
                                     
                                     | 
                            物件番号/物件ID | 13980 | 
| 住所 | 大阪府大阪市北区野崎町丁目なし7番8号 | 面積(平米) | 40.99㎡ | 
| 最寄り駅 | 
                                                                                                             【最寄り駅1】 
                                        大阪メトロ堺筋線 扇町駅 徒歩6分 【最寄り駅2】 
                                        大阪メトロ谷町線 南森町駅 徒歩7分 【最寄り駅3】 
                                        大阪メトロ谷町線 東梅田駅 徒歩8分 【最寄り駅4】 
                                        JR大阪環状線 天満駅 徒歩8分  | 
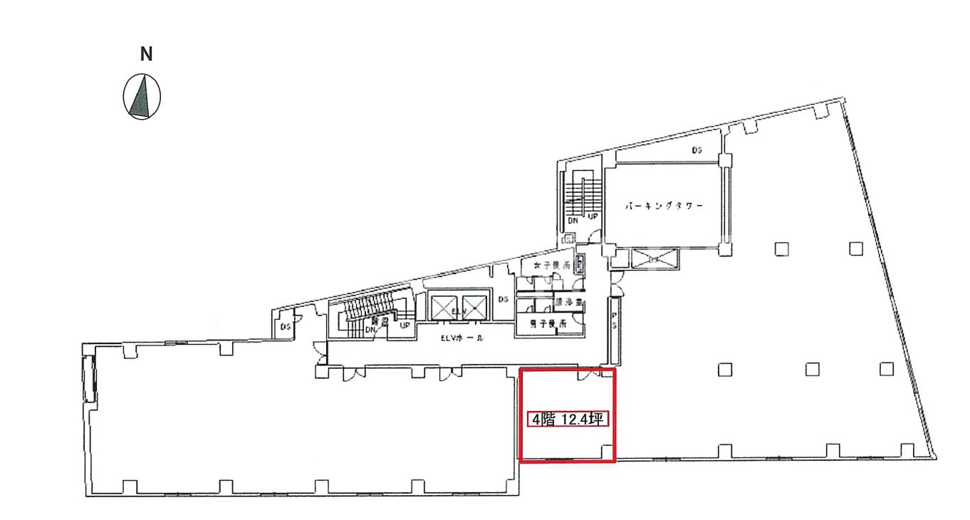
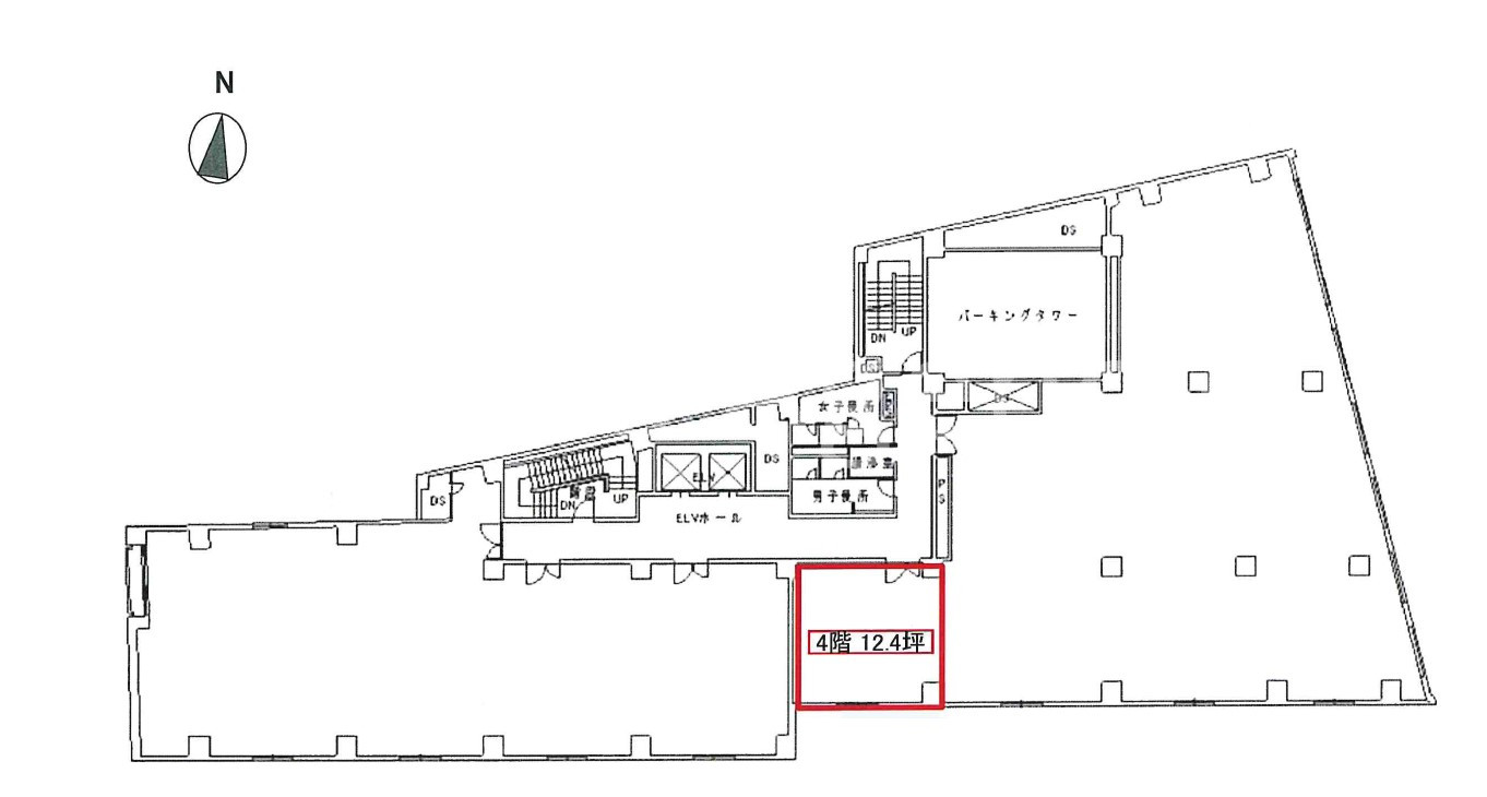
                            坪数 | 12.40坪 | 
| 実行面積 | 100.00% | ||
| 空調 | 個別 | ||
| 竣工 | 1976年05月26日 | ||
| 構造 | SRC地上9階建地下1階 | ||
| エレベーター基数 | 2 | 荷物用エレベーター基数 | ー | 
| 階数 | 地上 4階 | 退去日 | 退去日の詳細につきましては、お問い合わせください。 | 
| 備考 | ー | ||
| ビル名 | 
                                 
                                        梅田パーク
                                     
                                     | 
                        ||
| 住所 | 13980 | ||
| 最寄り駅 | 
                                                                                                             【最寄り駅1】 
                                        大阪メトロ堺筋線 扇町駅 徒歩6分 【最寄り駅2】 
                                        大阪メトロ谷町線 南森町駅 徒歩7分 【最寄り駅3】 
                                        大阪メトロ谷町線 東梅田駅 徒歩8分 【最寄り駅4】 
                                        JR大阪環状線 天満駅 徒歩8分  | 
                        ||
| エレベーター基数 | 2 | ||
| 階数 | 4階 | ||
| 物件番号/物件ID | 13980 | ||
| 面積(平米) | 40.99㎡ | ||
| 坪数 | 12.40坪 | ||
| 実行面積 | 100.00% | ||
| 空調 | 個別 | ||
| 竣工 | 1976年05月26日 | ||
| 構造 | SRC地上9階建地下1階 | ||
| 荷物用エレベーター基数 | ー | ||
| 退去日 | 退去日の詳細につきましては、お問い合わせください。 | ||
| 備考 | ー | ||
| 総額 | 坪単価 | ||
| 賃料 | 148,800円 | 賃料 | 12,000円 | 
| 共益費 | 37,200円 | 共益費 | 3,000円 | 
| 月額合計 | 186,000円 | 月額合計 | 15,000円 | 
| 保証金/敷金 | 1,860,000円 | 保証金/敷金 | 150,000円 | 
| 礼金 | 0円 | 礼金 | 0円 | 
| 賃料条件補足事項 | |||
| 総額 | |||
| 賃料 | 148,800円 | ||
| 共益費 | 37,200円 | ||
| 月額合計 | 186,000円 | ||
| 保証金/敷金 | 1,860,000円 | ||
| 礼金 | 0円 | ||
| 坪単価 | |||
| 賃料 | 12,000円 | ||
| 共益費 | 3,000円 | ||
| 月額合計 | 15,000円 | ||
| 保証金/敷金 | 150,000円 | ||
| 礼金 | 0円 | ||
| 賃料条件補足事項 | |||
| 階数 | 広さ | 賃料合計(税別) | 坪単価 | 保証金・敷金 | 礼金 | |
| 2F | 17.70坪 | 265,500円 | 15,000円 | 2,655,000円 | 0円 | |
| 5F | 18.00坪 | 270,000円 | 15,000円 | 2,700,000円 | 0円 | |
| 3F | 12.40坪 | 186,000円 | 15,000円 | 2,232,000円 | 0円 | |
                            
                            自転車置場料金: ー 円