フロア詳細情報

天神第一(大阪府大阪市淀川区西中島4丁目2番26号)のフロア情報

天神第一のビル詳細を見る
空室状況はお電話一本でスムーズにご案内!まずはお気軽に0120-939-204へどうぞ。
でお問い合わせ(無料メール 簡単1
※上記の写真は人物等が映っている場合、修正・加工が施されています。
物件情報更新日: 2025/10/07

天神第一の物件概要

ビル名
天神第一
物件番号/物件ID 14779
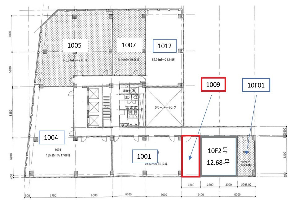
住所 大阪府大阪市淀川区西中島4丁目2番26号 面積(平米) 23.14㎡
最寄り駅
【最寄り駅1】

大阪メトロ御堂筋線 西中島南方駅  徒歩1分

【最寄り駅2】

阪急京都本線 南方駅  徒歩2分

【最寄り駅3】

大阪メトロ御堂筋線 新大阪駅  徒歩9分

【最寄り駅4】

JRおおさか東線 新大阪駅  徒歩10分

坪数 7.00坪
実行面積 100.00%
空調 個別
竣工 1974年10月01日
構造 SRC地上10階建地下0階
エレベーター基数 3 荷物用エレベーター基数
階数 地上 10階 退去日 退去日の詳細につきましては、お問い合わせください。
備考
ビル名
天神第一
住所 14779
最寄り駅
【最寄り駅1】

大阪メトロ御堂筋線 西中島南方駅  徒歩1分

【最寄り駅2】

阪急京都本線 南方駅  徒歩2分

【最寄り駅3】

大阪メトロ御堂筋線 新大阪駅  徒歩9分

【最寄り駅4】

JRおおさか東線 新大阪駅  徒歩10分

エレベーター基数 3
階数 10階
物件番号/物件ID 14779
面積(平米) 23.14㎡
坪数 7.00坪
実行面積 100.00%
空調 個別
竣工 1974年10月01日
構造 SRC地上10階建地下0階
荷物用エレベーター基数
退去日 退去日の詳細につきましては、お問い合わせください。
備考

天神第一の募集価格

総額 坪単価
賃料 84,000円 賃料 12,000円
共益費 0円 共益費 0円
月額合計 84,000円 月額合計 12,000円
保証金/敷金 0円 保証金/敷金 0円
礼金 84,000円 礼金 12,000円
賃料条件補足事項
総額
賃料 84,000円
共益費 0円
月額合計 84,000円
保証金/敷金 0円
礼金 84,000円
坪単価
賃料 12,000円
共益費 0円
月額合計 12,000円
保証金/敷金 0円
礼金 12,000円
賃料条件補足事項

天神第一のその他空室情報

階数 広さ 賃料合計(税別) 坪単価 保証金・敷金 礼金
2F 12.27坪 134,970円 11,000円 0円 134,970円
フロア詳細
フロア詳細
3F 12.27坪 134,970円 11,000円 0円 134,970円
フロア詳細
フロア詳細
7F 13.44坪 147,840円 11,000円 0円 147,840円
動画
フロア詳細
動画
フロア詳細
3F 8.19坪 106,470円 13,000円 0円 106,470円
フロア詳細
フロア詳細
9F 12.00坪 132,000円 11,000円 0円 132,000円
フロア詳細
フロア詳細
空室情報や物件見学などお気軽にお問い合わせください。
ESTATE AGENCY
株式会社エステートエージェンシー
定休日:日曜日・祝日 営業時間:09:00~19:00
でお問い合わせ(無料メール 簡単1 電話でお問い合わせ(無料)

天神第一の基本情報

インフォメーション
この天神第一ビルは住所大阪府大阪市淀川区西中島2番26号の1974年竣工、地上10階建の賃貸オフィスビルです。最寄駅は、大阪メトロ御堂筋線西中島南方駅徒歩1分のアクセス。設備情報は大通り沿い、表玄関OPEN(土曜日)、表玄関OPEN(日祝日)、シャワートイレ、セキュリティ、トイレ男女別、24時間利用可能、光回線、保証金格安、リフレッシュルーム、管理物件、部屋セキュリティ。是非一度ご内覧下さいませ! その他、事務所、オフィス移転、不動産の事なら何でもお気軽にご相談下さい。
※貸主様からのご要望の為、条件を未公開としている場合がございます。詳しくお聞きになりたい場合は、弊社までご連絡ください。
※賃料、共益費、礼金、その他費用には別途消費税が掛かります。
※上記金額は募集条件です。条件交渉などについてはお気軽にお問い合わせください。

天神第一の施設情報カテゴリ

1棟貸可能
駅直結
大型EV
大型駐車場
大通り沿い
傘いらず
貸会議室
空中店舗相談
ヴィンテージ・レトロ
シャワートイレ
セキュリティ
SOHO(住居兼事務所)
デザイナーズ・個性派
トイレ男女別
荷物EVあり
ハイグレードオフィス
ネット回線引込可
ビル内貸倉庫
免振・制振構造
有人警備
ランドマーク
リニューアル
フリースペース
レンタルオフィス
新耐震
駅近(出口
築浅
川沿い、公園沿い
自転車置場

自転車置場料金: ー 円

天神第一のアクセスマップ

空室情報や物件見学などお気軽にお問い合わせください。
ESTATE AGENCY
株式会社エステートエージェンシー
定休日:日曜日・祝日 営業時間:09:00~19:00
でお問い合わせ(無料メール 簡単1 電話でお問い合わせ(無料)

よく似た物件

天神第一 フロア動画