フロア詳細情報

明治安田生命大阪梅田(大阪府大阪市北区梅田3丁目3番20号)のフロア情報

空室状況はお電話一本でスムーズにご案内!まずはお気軽に0120-939-204へどうぞ。
でお問い合わせ(無料メール 簡単1
※上記の写真は人物等が映っている場合、修正・加工が施されています。
物件情報更新日: 2026/04/02

明治安田生命大阪梅田の物件概要

ビル名
明治安田生命大阪梅田
物件番号/物件ID 14182
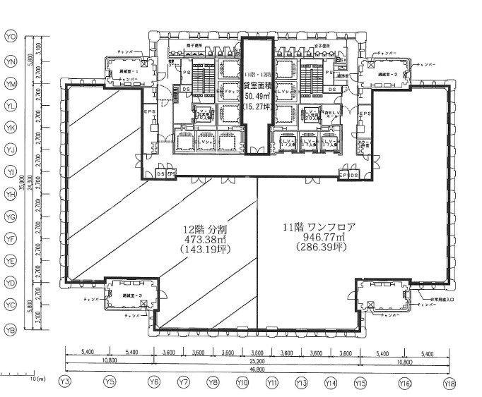
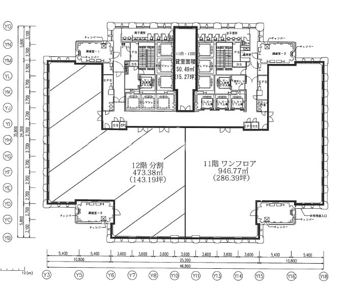
住所 大阪府大阪市北区梅田3丁目3番20号 面積(平米) 50.47㎡
最寄り駅
【最寄り駅1】

大阪メトロ四つ橋線 西梅田駅  徒歩5分

【最寄り駅2】

阪神本線 福島駅  徒歩6分

【最寄り駅3】

JR大阪環状線 福島駅  徒歩6分

【最寄り駅4】

JR東西線 北新地駅  徒歩6分

坪数 15.27坪
実行面積 100.00%
空調 集中
竣工 2000年06月01日
構造 RC地上30階建地下2階
エレベーター基数 15 荷物用エレベーター基数 1
階数 地上 11階 退去日 退去日の詳細につきましては、お問い合わせください。
備考
ビル名
明治安田生命大阪梅田
住所 14182
最寄り駅
【最寄り駅1】

大阪メトロ四つ橋線 西梅田駅  徒歩5分

【最寄り駅2】

阪神本線 福島駅  徒歩6分

【最寄り駅3】

JR大阪環状線 福島駅  徒歩6分

【最寄り駅4】

JR東西線 北新地駅  徒歩6分

エレベーター基数 15
階数 11階
物件番号/物件ID 14182
面積(平米) 50.47㎡
坪数 15.27坪
実行面積 100.00%
空調 集中
竣工 2000年06月01日
構造 RC地上30階建地下2階
荷物用エレベーター基数 1
退去日 退去日の詳細につきましては、お問い合わせください。
備考

明治安田生命大阪梅田の募集価格

総額 坪単価
賃料 非公開 賃料 非公開
共益費 非公開 共益費 非公開
月額合計 非公開 月額合計 非公開
保証金/敷金 非公開 保証金/敷金 非公開
礼金 非公開 礼金 非公開
賃料条件補足事項 定期借家契約5年(中途解約違約金発生有り)、再契約可能
総額
賃料 非公開
共益費 非公開
月額合計 非公開
保証金/敷金 非公開
礼金 非公開
坪単価
賃料 非公開
共益費 非公開
月額合計 非公開
保証金/敷金 非公開
礼金 非公開
賃料条件補足事項 定期借家契約5年(中途解約違約金発生有り)、再契約可能

明治安田生命大阪梅田のその他空室情報

階数 広さ 賃料合計(税別) 坪単価 保証金・敷金 礼金
11F 286.39坪 非公開 非公開 非公開 非公開
フロア詳細
フロア詳細
1F 63.56坪 非公開 非公開 非公開 非公開
フロア詳細
フロア詳細
12F 15.27坪 非公開 非公開 非公開 非公開
フロア詳細
フロア詳細
22F 71.13坪 非公開 非公開 非公開 非公開
フロア詳細
フロア詳細
13F 72.28坪 非公開 非公開 非公開 非公開
フロア詳細
フロア詳細
空室情報や物件見学などお気軽にお問い合わせください。
ESTATE AGENCY
株式会社エステートエージェンシー
定休日:日曜日・祝日 営業時間:09:00~19:00
でお問い合わせ(無料メール 簡単1 電話でお問い合わせ(無料)

明治安田生命大阪梅田の基本情報

インフォメーション
明治安田生命大阪梅田ビルは、北区エリア(大阪市北区梅田3丁目)にある、2000年竣工、地上30階地下2階建の賃貸オフィスビルです。最寄駅は、大阪メトロ四つ橋線 西梅田駅 徒歩5分のアクセス。ハイクオリティとフレキシビリティに溢れたオフィスビル。荘厳な外観です。是非一度ご内覧下さいませ!その他、事務所、オフィス移転の事なら何でもご相談下さい。
※貸主様からのご要望の為、条件を未公開としている場合がございます。詳しくお聞きになりたい場合は、弊社までご連絡ください。
※賃料、共益費、礼金、その他費用には別途消費税が掛かります。
※上記金額は募集条件です。条件交渉などについてはお気軽にお問い合わせください。
※確認時点での情報のため、リアルタイム情報はお問合せください。

明治安田生命大阪梅田の施設情報カテゴリ

1棟貸可能
駅直結
大型EV
大型駐車場
大通り沿い
傘いらず
貸会議室
空中店舗相談
ヴィンテージ・レトロ
シャワートイレ
セキュリティ
SOHO(住居兼事務所)
デザイナーズ・個性派
トイレ男女別
荷物EVあり
ハイグレードオフィス
ネット回線引込可
ビル内貸倉庫
免振・制振構造
有人警備
ランドマーク
リニューアル
フリースペース
レンタルオフィス
新耐震
駅近(出口
築浅
川沿い、公園沿い
自転車置場

自転車置場料金: ー 円

明治安田生命大阪梅田のアクセスマップ

空室情報や物件見学などお気軽にお問い合わせください。
ESTATE AGENCY
株式会社エステートエージェンシー
定休日:日曜日・祝日 営業時間:09:00~19:00
でお問い合わせ(無料メール 簡単1 電話でお問い合わせ(無料)

申し訳ございません。
会員登録をお願い致します。

会員登録のメリット

  • 1、非公開物件情報のご紹介が可能です!
  • 2、ご希望条件をいただきましたら新着物件情報等を定期的に配信いたします!
  • 3、会員登録されたお客様にはご契約時に特別なプレゼントをご用意しております!
会員登録

※会員登録は同業者不可、メールアドレスは企業ドメインのみ
※GmailやYahooなどのフリーメールでは会員登録できないこともありますのでご了承ください。