フロア詳細情報

協和中之島(大阪府大阪市北区西天満1丁目7番4号)のフロア情報

協和中之島のビル詳細を見る
空室状況はお電話一本でスムーズにご案内!まずはお気軽に0120-939-204へどうぞ。
でお問い合わせ(無料メール 簡単1
※上記の写真は人物等が映っている場合、修正・加工が施されています。
物件情報更新日: 2026/01/14

協和中之島の物件概要

ビル名
協和中之島
物件番号/物件ID 13676
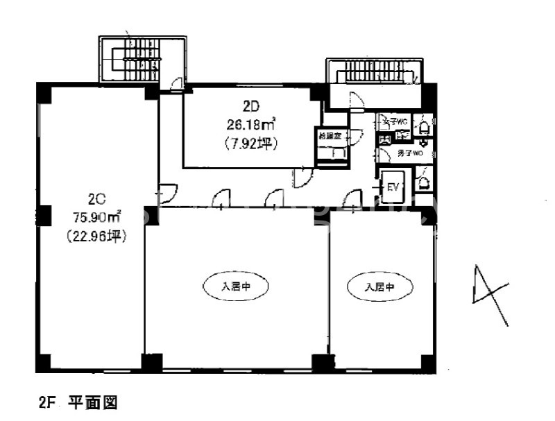
住所 大阪府大阪市北区西天満1丁目7番4号 面積(平米) 75.90㎡
最寄り駅
【最寄り駅1】

大阪メトロ堺筋線 北浜駅  徒歩3分

【最寄り駅2】

大阪メトロ谷町線 南森町駅  徒歩7分

【最寄り駅3】

大阪メトロ御堂筋線 淀屋橋駅  徒歩8分

【最寄り駅4】

京阪中之島線 なにわ橋駅  徒歩2分

坪数 22.96坪
実行面積 100.00%
空調 個別
竣工 1983年01月01日
構造 SRC地上8階建地下0階
エレベーター基数 1 荷物用エレベーター基数
階数 地上 4階 退去日 退去日の詳細につきましては、お問い合わせください。
備考
ビル名
協和中之島
住所 13676
最寄り駅
【最寄り駅1】

大阪メトロ堺筋線 北浜駅  徒歩3分

【最寄り駅2】

大阪メトロ谷町線 南森町駅  徒歩7分

【最寄り駅3】

大阪メトロ御堂筋線 淀屋橋駅  徒歩8分

【最寄り駅4】

京阪中之島線 なにわ橋駅  徒歩2分

エレベーター基数 1
階数 4階
物件番号/物件ID 13676
面積(平米) 75.90㎡
坪数 22.96坪
実行面積 100.00%
空調 個別
竣工 1983年01月01日
構造 SRC地上8階建地下0階
荷物用エレベーター基数
退去日 退去日の詳細につきましては、お問い合わせください。
備考

協和中之島の募集価格

総額 坪単価
賃料 229,600円 賃料 10,000円
共益費 45,920円 共益費 2,000円
月額合計 275,520円 月額合計 12,000円
保証金/敷金 1,836,800円 保証金/敷金 80,000円
礼金 0円 礼金 0円
賃料条件補足事項 敷引1ヶ月・1階は敷引3ヶ月 定期借家契約5年
総額
賃料 229,600円
共益費 45,920円
月額合計 275,520円
保証金/敷金 1,836,800円
礼金 0円
坪単価
賃料 10,000円
共益費 2,000円
月額合計 12,000円
保証金/敷金 80,000円
礼金 0円
賃料条件補足事項 敷引1ヶ月・1階は敷引3ヶ月 定期借家契約5年

協和中之島のその他空室情報

階数 広さ 賃料合計(税別) 坪単価 保証金・敷金 礼金
6F 7.53坪 90,360円 12,000円 602,400円 0円
フロア詳細
フロア詳細
2F 12.39坪 148,680円 12,000円 991,200円 0円
フロア詳細
フロア詳細
8F 44.48坪 533,760円 12,000円 3,558,400円 0円
フロア詳細
フロア詳細
空室情報や物件見学などお気軽にお問い合わせください。
ESTATE AGENCY
株式会社エステートエージェンシー
定休日:日曜日・祝日 営業時間:09:00~19:00
でお問い合わせ(無料メール 簡単1 電話でお問い合わせ(無料)

協和中之島の基本情報

インフォメーション
協和中之島ビルは、北区エリア(大阪市北区西天満1丁目)にある、1983年竣工、地上8階建の賃貸オフィスビルです。最寄駅は、大阪メトロ堺筋線 北浜駅 徒歩3分のアクセス。リニューアルし落ち着きと高級感をあわせ持つオフィスビルです。是非一度ご内覧下さいませ!その他、事務所、オフィス移転の事なら何でもご相談下さい。
※貸主様からのご要望の為、条件を未公開としている場合がございます。詳しくお聞きになりたい場合は、弊社までご連絡ください。
※賃料、共益費、礼金、その他費用には別途消費税が掛かります。
※上記金額は募集条件です。条件交渉などについてはお気軽にお問い合わせください。
※確認時点での情報のため、リアルタイム情報はお問合せください。

協和中之島の施設情報カテゴリ

1棟貸可能
駅直結
大型EV
大型駐車場
大通り沿い
傘いらず
貸会議室
空中店舗相談
ヴィンテージ・レトロ
シャワートイレ
セキュリティ
SOHO(住居兼事務所)
デザイナーズ・個性派
トイレ男女別
荷物EVあり
ハイグレードオフィス
ネット回線引込可
ビル内貸倉庫
免振・制振構造
有人警備
ランドマーク
リニューアル
フリースペース
レンタルオフィス
新耐震
駅近(出口
築浅
川沿い、公園沿い
自転車置場

自転車置場料金: ー 円

協和中之島のアクセスマップ

空室情報や物件見学などお気軽にお問い合わせください。
ESTATE AGENCY
株式会社エステートエージェンシー
定休日:日曜日・祝日 営業時間:09:00~19:00
でお問い合わせ(無料メール 簡単1 電話でお問い合わせ(無料)

よく似た物件