フロア詳細情報

StoRK北堀江(大阪府大阪市西区北堀江1丁目5番8号)のフロア情報

StoRK北堀江のビル詳細を見る
空室状況はお電話一本でスムーズにご案内!まずはお気軽に0120-939-204へどうぞ。
でお問い合わせ(無料メール 簡単1
※上記の写真は人物等が映っている場合、修正・加工が施されています。
物件情報更新日: 2025/12/03

StoRK北堀江の物件概要

ビル名
StoRK北堀江
物件番号/物件ID 12946
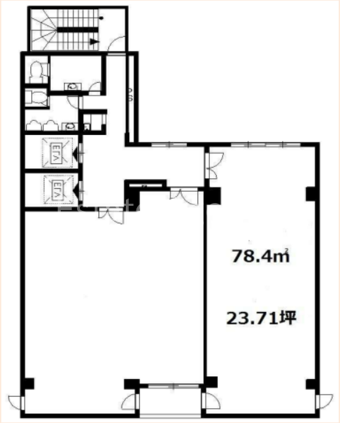
住所 大阪府大阪市西区北堀江1丁目5番8号 面積(平米) 78.41㎡
最寄り駅
【最寄り駅1】

大阪メトロ四つ橋線 四ツ橋駅  徒歩1分

【最寄り駅2】

大阪メトロ御堂筋線 心斎橋駅  徒歩5分

【最寄り駅3】

大阪メトロ長堀鶴見緑地線 西大橋駅  徒歩4分

【最寄り駅4】

大阪メトロ四つ橋線 なんば駅  徒歩10分

坪数 23.72坪
実行面積 100.00%
空調 個別
竣工 1989年04月01日
構造 RC地上7階建地下0階
エレベーター基数 2 荷物用エレベーター基数
階数 地上 3階 退去日 退去日の詳細につきましては、お問い合わせください。
備考
ビル名
StoRK北堀江
住所 12946
最寄り駅
【最寄り駅1】

大阪メトロ四つ橋線 四ツ橋駅  徒歩1分

【最寄り駅2】

大阪メトロ御堂筋線 心斎橋駅  徒歩5分

【最寄り駅3】

大阪メトロ長堀鶴見緑地線 西大橋駅  徒歩4分

【最寄り駅4】

大阪メトロ四つ橋線 なんば駅  徒歩10分

エレベーター基数 2
階数 3階
物件番号/物件ID 12946
面積(平米) 78.41㎡
坪数 23.72坪
実行面積 100.00%
空調 個別
竣工 1989年04月01日
構造 RC地上7階建地下0階
荷物用エレベーター基数
退去日 退去日の詳細につきましては、お問い合わせください。
備考

StoRK北堀江の募集価格

総額 坪単価
賃料 284,454円 賃料 11,993円
共益費 47,420円 共益費 2,000円
月額合計 331,874円 月額合計 13,993円
保証金/敷金 0円 保証金/敷金 0円
礼金 853,362円 礼金 35,977円
賃料条件補足事項 保証会社加入無の場合敷金11か月(2020/2)、水道代2000円/月 ゴミ2000円/月
総額
賃料 284,454円
共益費 47,420円
月額合計 331,874円
保証金/敷金 0円
礼金 853,362円
坪単価
賃料 11,993円
共益費 2,000円
月額合計 13,993円
保証金/敷金 0円
礼金 35,977円
賃料条件補足事項 保証会社加入無の場合敷金11か月(2020/2)、水道代2000円/月 ゴミ2000円/月

StoRK北堀江のその他空室情報

階数 広さ 賃料合計(税別) 坪単価 保証金・敷金 礼金
1F 10.48坪 385,000円 36,738円 500,000円 726,000円
フロア詳細
フロア詳細
空室情報や物件見学などお気軽にお問い合わせください。
ESTATE AGENCY
株式会社エステートエージェンシー
定休日:日曜日・祝日 営業時間:09:00~19:00
でお問い合わせ(無料メール 簡単1 電話でお問い合わせ(無料)

StoRK北堀江の基本情報

インフォメーション
StoRK北堀江ビルは、西区エリア(大阪市西区北堀江1丁目)にある、1989年竣工、地上7階建の賃貸オフィスビルです。最寄駅は、大阪メトロ四つ橋線 四ツ橋駅 徒歩1分のアクセス。是非一度ご内覧下さいませ!その他、事務所、オフィス移転の事なら何でもご相談下さい。
※貸主様からのご要望の為、条件を未公開としている場合がございます。詳しくお聞きになりたい場合は、弊社までご連絡ください。
※賃料、共益費、礼金、その他費用には別途消費税が掛かります。
※上記金額は募集条件です。条件交渉などについてはお気軽にお問い合わせください。
※確認時点での情報のため、リアルタイム情報はお問合せください。

StoRK北堀江の施設情報カテゴリ

1棟貸可能
駅直結
大型EV
大型駐車場
大通り沿い
傘いらず
貸会議室
空中店舗相談
ヴィンテージ・レトロ
シャワートイレ
セキュリティ
SOHO(住居兼事務所)
デザイナーズ・個性派
トイレ男女別
荷物EVあり
ハイグレードオフィス
ネット回線引込可
ビル内貸倉庫
免振・制振構造
有人警備
ランドマーク
リニューアル
フリースペース
レンタルオフィス
新耐震
駅近(出口
築浅
川沿い、公園沿い
自転車置場

自転車置場料金: ー 円

StoRK北堀江のアクセスマップ

空室情報や物件見学などお気軽にお問い合わせください。
ESTATE AGENCY
株式会社エステートエージェンシー
定休日:日曜日・祝日 営業時間:09:00~19:00
でお問い合わせ(無料メール 簡単1 電話でお問い合わせ(無料)

よく似た物件