フロア詳細情報

CT四ツ橋(大阪府大阪市西区新町1丁目7番20号)のフロア情報

CT四ツ橋のビル詳細を見る
空室状況はお電話一本でスムーズにご案内!まずはお気軽に0120-939-204へどうぞ。
でお問い合わせ(無料メール 簡単1
※上記の写真は人物等が映っている場合、修正・加工が施されています。
物件情報更新日: 2026/02/17

CT四ツ橋の物件概要

ビル名
CT四ツ橋
物件番号/物件ID 12859
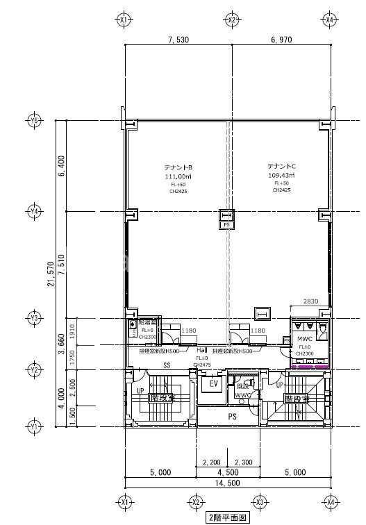
住所 大阪府大阪市西区新町1丁目7番20号 面積(平米) 220.42㎡
最寄り駅
【最寄り駅1】

大阪メトロ四つ橋線 四ツ橋駅  徒歩4分

【最寄り駅2】

大阪メトロ長堀鶴見緑地線 西大橋駅  徒歩3分

【最寄り駅3】

大阪メトロ御堂筋線 心斎橋駅  徒歩5分

【最寄り駅4】

大阪メトロ四つ橋線 本町駅  徒歩8分

坪数 66.68坪
実行面積 100.00%
空調 個別
竣工 1989年10月01日
構造 SRC地上7階建地下1階
エレベーター基数 1 荷物用エレベーター基数
階数 地上 2階 退去日 退去日の詳細につきましては、お問い合わせください。
備考
ビル名
CT四ツ橋
住所 12859
最寄り駅
【最寄り駅1】

大阪メトロ四つ橋線 四ツ橋駅  徒歩4分

【最寄り駅2】

大阪メトロ長堀鶴見緑地線 西大橋駅  徒歩3分

【最寄り駅3】

大阪メトロ御堂筋線 心斎橋駅  徒歩5分

【最寄り駅4】

大阪メトロ四つ橋線 本町駅  徒歩8分

エレベーター基数 1
階数 2階
物件番号/物件ID 12859
面積(平米) 220.42㎡
坪数 66.68坪
実行面積 100.00%
空調 個別
竣工 1989年10月01日
構造 SRC地上7階建地下1階
荷物用エレベーター基数
退去日 退去日の詳細につきましては、お問い合わせください。
備考

CT四ツ橋の募集価格

総額 坪単価
賃料 866,819円 賃料 13,000円
共益費 0円 共益費 0円
月額合計 866,819円 月額合計 13,000円
保証金/敷金 6,934,552円 保証金/敷金 103,998円
礼金 0円 礼金 0円
賃料条件補足事項
総額
賃料 866,819円
共益費 0円
月額合計 866,819円
保証金/敷金 6,934,552円
礼金 0円
坪単価
賃料 13,000円
共益費 0円
月額合計 13,000円
保証金/敷金 103,998円
礼金 0円
賃料条件補足事項

CT四ツ橋のその他空室情報

階数 広さ 賃料合計(税別) 坪単価 保証金・敷金 礼金
1F 21.71坪 282,230円 13,000円 2,257,840円 0円
フロア詳細
フロア詳細
5F 52.44坪 681,728円 13,001円 5,453,824円 0円
フロア詳細
フロア詳細
6F 37.63坪 489,182円 13,000円 3,913,456円 0円
フロア詳細
フロア詳細
7F 15.89坪 206,570円 13,000円 1,652,560円 0円
フロア詳細
フロア詳細
空室情報や物件見学などお気軽にお問い合わせください。
ESTATE AGENCY
株式会社エステートエージェンシー
定休日:日曜日・祝日 営業時間:09:00~19:00
でお問い合わせ(無料メール 簡単1 電話でお問い合わせ(無料)

CT四ツ橋の基本情報

インフォメーション
FUKU BLD.新町は、西区エリア(大阪市西区新町1丁目)にある、地上7階地下1階建の賃貸オフィスビルです。最寄駅は、大阪メトロ四つ橋線 四ツ橋駅 徒歩3分のアクセス。是非一度ご内覧下さいませ!その他、事務所、オフィス移転の事なら何でもご相談下さい。
※貸主様からのご要望の為、条件を未公開としている場合がございます。詳しくお聞きになりたい場合は、弊社までご連絡ください。
※賃料、共益費、礼金、その他費用には別途消費税が掛かります。
※上記金額は募集条件です。条件交渉などについてはお気軽にお問い合わせください。
※確認時点での情報のため、リアルタイム情報はお問合せください。

CT四ツ橋の施設情報カテゴリ

1棟貸可能
駅直結
大型EV
大型駐車場
大通り沿い
傘いらず
貸会議室
空中店舗相談
ヴィンテージ・レトロ
シャワートイレ
セキュリティ
SOHO(住居兼事務所)
デザイナーズ・個性派
トイレ男女別
荷物EVあり
ハイグレードオフィス
ネット回線引込可
ビル内貸倉庫
免振・制振構造
有人警備
ランドマーク
リニューアル
フリースペース
レンタルオフィス
新耐震
駅近(出口
築浅
川沿い、公園沿い
自転車置場

自転車置場料金: ー 円

CT四ツ橋のアクセスマップ

空室情報や物件見学などお気軽にお問い合わせください。
ESTATE AGENCY
株式会社エステートエージェンシー
定休日:日曜日・祝日 営業時間:09:00~19:00
でお問い合わせ(無料メール 簡単1 電話でお問い合わせ(無料)

最近チェックした物件