フロア詳細情報

心斎橋MS(大阪府大阪市中央区南船場4丁目6番22号)のフロア情報

心斎橋MSのビル詳細を見る
空室状況はお電話一本でスムーズにご案内!まずはお気軽に0120-939-204へどうぞ。
でお問い合わせ(無料メール 簡単1
※上記の写真は人物等が映っている場合、修正・加工が施されています。
物件情報更新日: 2026/02/19

心斎橋MSの物件概要

ビル名
心斎橋MS
物件番号/物件ID 10908
住所 大阪府大阪市中央区南船場4丁目6番22号 面積(平米) 114.08㎡
最寄り駅
【最寄り駅1】

大阪メトロ御堂筋線 心斎橋駅  徒歩2分

【最寄り駅2】

大阪メトロ四つ橋線 四ツ橋駅  徒歩4分

【最寄り駅3】

大阪メトロ御堂筋線 本町駅  徒歩7分

【最寄り駅4】

大阪メトロ四つ橋線 本町駅  徒歩7分

坪数 34.51坪
実行面積 100.00%
空調 個別
竣工 1997年09月05日
構造 鉄骨地上8階建地下0階
エレベーター基数 1 荷物用エレベーター基数
階数 地上 8階 退去日 退去日の詳細につきましては、お問い合わせください。
備考
ビル名
心斎橋MS
住所 10908
最寄り駅
【最寄り駅1】

大阪メトロ御堂筋線 心斎橋駅  徒歩2分

【最寄り駅2】

大阪メトロ四つ橋線 四ツ橋駅  徒歩4分

【最寄り駅3】

大阪メトロ御堂筋線 本町駅  徒歩7分

【最寄り駅4】

大阪メトロ四つ橋線 本町駅  徒歩7分

エレベーター基数 1
階数 8階
物件番号/物件ID 10908
面積(平米) 114.08㎡
坪数 34.51坪
実行面積 100.00%
空調 個別
竣工 1997年09月05日
構造 鉄骨地上8階建地下0階
荷物用エレベーター基数
退去日 退去日の詳細につきましては、お問い合わせください。
備考

心斎橋MSの募集価格

総額 坪単価
賃料 345,100円 賃料 10,000円
共益費 69,000円 共益費 2,000円
月額合計 414,100円 月額合計 12,000円
保証金/敷金 3,451,000円 保証金/敷金 100,000円
礼金 0円 礼金 0円
賃料条件補足事項 解約引き:スライド
総額
賃料 345,100円
共益費 69,000円
月額合計 414,100円
保証金/敷金 3,451,000円
礼金 0円
坪単価
賃料 10,000円
共益費 2,000円
月額合計 12,000円
保証金/敷金 100,000円
礼金 0円
賃料条件補足事項 解約引き:スライド

心斎橋MSのその他空室情報

階数 広さ 賃料合計(税別) 坪単価 保証金・敷金 礼金
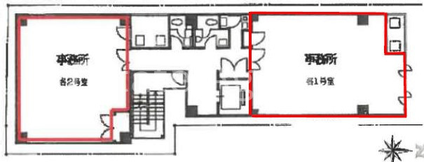
8F 17.48坪 209,719円 11,999円 1,748,190円 0円
フロア詳細
フロア詳細
8F 17.03坪 204,273円 11,996円 1,702,730円 0円
フロア詳細
フロア詳細
空室情報や物件見学などお気軽にお問い合わせください。
ESTATE AGENCY
株式会社エステートエージェンシー
定休日:日曜日・祝日 営業時間:09:00~19:00
でお問い合わせ(無料メール 簡単1 電話でお問い合わせ(無料)

心斎橋MSの基本情報

インフォメーション
心斎橋MSビルは、中央区エリア(大阪市中央区南船場4丁目)にある、1997年竣工、地上8階建の賃貸オフィスビルです。最寄駅は、大阪メトロ御堂筋線 心斎橋駅 徒歩2分のアクセス。是非一度ご内覧下さいませ!その他、事務所、オフィス移転の事なら何でもご相談下さい。
※貸主様からのご要望の為、条件を未公開としている場合がございます。詳しくお聞きになりたい場合は、弊社までご連絡ください。
※賃料、共益費、礼金、その他費用には別途消費税が掛かります。
※上記金額は募集条件です。条件交渉などについてはお気軽にお問い合わせください。
※確認時点での情報のため、リアルタイム情報はお問合せください。

心斎橋MSの施設情報カテゴリ

1棟貸可能
駅直結
大型EV
大型駐車場
大通り沿い
傘いらず
貸会議室
空中店舗相談
ヴィンテージ・レトロ
シャワートイレ
セキュリティ
SOHO(住居兼事務所)
デザイナーズ・個性派
トイレ男女別
荷物EVあり
ハイグレードオフィス
ネット回線引込可
ビル内貸倉庫
免振・制振構造
有人警備
ランドマーク
リニューアル
フリースペース
レンタルオフィス
新耐震
駅近(出口
築浅
川沿い、公園沿い
自転車置場

自転車置場料金: ー 円

心斎橋MSのアクセスマップ

空室情報や物件見学などお気軽にお問い合わせください。
ESTATE AGENCY
株式会社エステートエージェンシー
定休日:日曜日・祝日 営業時間:09:00~19:00
でお問い合わせ(無料メール 簡単1 電話でお問い合わせ(無料)

よく似た物件

最近チェックした物件