フロア詳細情報

大阪堂島浜タワー(大阪府大阪市北区堂島浜1丁目1番5号)のフロア情報

大阪堂島浜タワーのビル詳細を見る
空室状況はお電話一本でスムーズにご案内!まずはお気軽に0120-939-204へどうぞ。
でお問い合わせ(無料メール 簡単1
※上記の写真は人物等が映っている場合、修正・加工が施されています。
物件情報更新日: 2026/01/20

大阪堂島浜タワーの物件概要

ビル名
大阪堂島浜タワー
物件番号/物件ID 14281
住所 大阪府大阪市北区堂島浜1丁目1番5号 面積(平米) 160.85㎡
最寄り駅
【最寄り駅1】

京阪中之島線 大江橋駅  徒歩2分

【最寄り駅2】

京阪本線 淀屋橋駅  徒歩4分

【最寄り駅3】

大阪メトロ御堂筋線 淀屋橋駅  徒歩4分

【最寄り駅4】

JR東西線 北新地駅  徒歩6分

坪数 48.66坪
実行面積 100.00%
空調 個別
竣工 2024年03月01日
構造 地上32階建地下2階
エレベーター基数 9 荷物用エレベーター基数 1
階数 地上 2階 退去日 退去日の詳細につきましては、お問い合わせください。
備考
ビル名
大阪堂島浜タワー
住所 14281
最寄り駅
【最寄り駅1】

京阪中之島線 大江橋駅  徒歩2分

【最寄り駅2】

京阪本線 淀屋橋駅  徒歩4分

【最寄り駅3】

大阪メトロ御堂筋線 淀屋橋駅  徒歩4分

【最寄り駅4】

JR東西線 北新地駅  徒歩6分

エレベーター基数 9
階数 2階
物件番号/物件ID 14281
面積(平米) 160.85㎡
坪数 48.66坪
実行面積 100.00%
空調 個別
竣工 2024年03月01日
構造 地上32階建地下2階
荷物用エレベーター基数 1
退去日 退去日の詳細につきましては、お問い合わせください。
備考

大阪堂島浜タワーの募集価格

総額 坪単価
賃料 非公開 賃料 非公開
共益費 非公開 共益費 非公開
月額合計 非公開 月額合計 非公開
保証金/敷金 非公開 保証金/敷金 非公開
礼金 非公開 礼金 非公開
賃料条件補足事項
総額
賃料 非公開
共益費 非公開
月額合計 非公開
保証金/敷金 非公開
礼金 非公開
坪単価
賃料 非公開
共益費 非公開
月額合計 非公開
保証金/敷金 非公開
礼金 非公開
賃料条件補足事項

大阪堂島浜タワーのその他空室情報

階数 広さ 賃料合計(税別) 坪単価 保証金・敷金 礼金
4F 61.66坪 非公開 非公開 非公開 非公開
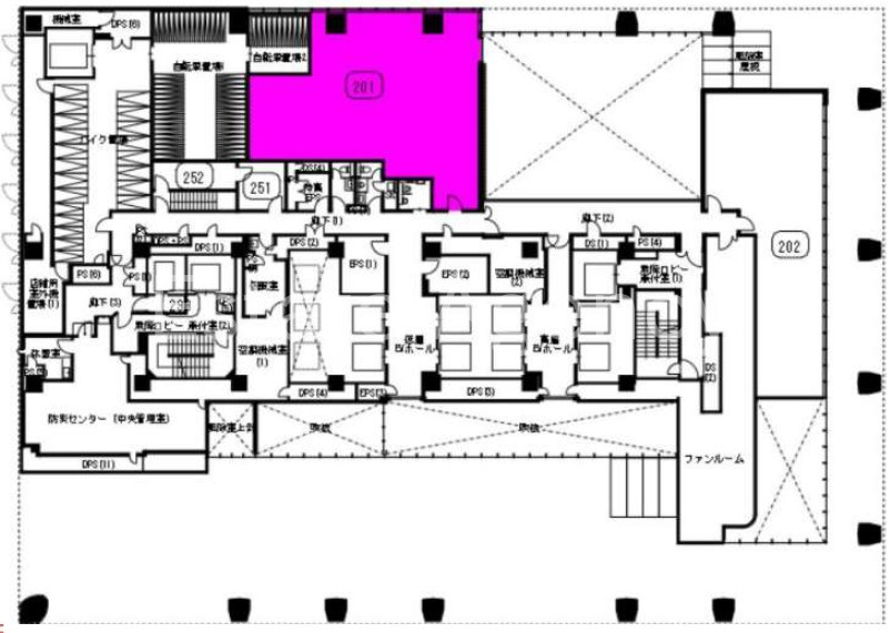
フロア詳細
フロア詳細
空室情報や物件見学などお気軽にお問い合わせください。
ESTATE AGENCY
株式会社エステートエージェンシー
定休日:日曜日・祝日 営業時間:09:00~19:00
でお問い合わせ(無料メール 簡単1 電話でお問い合わせ(無料)

大阪堂島浜タワーの基本情報

インフォメーション
この大阪堂島浜タワービルは住所大阪府大阪市北区堂島浜1番5号の2024年竣工、地上32階建の賃貸オフィスビルです。最寄駅は、京阪中之島線大江橋駅徒歩2分のアクセス。★★是非一度ご内覧下さいませ! その他、事務所、オフィス移転、不動産の事なら何でもお気軽にご相談下さい。
※貸主様からのご要望の為、条件を未公開としている場合がございます。詳しくお聞きになりたい場合は、弊社までご連絡ください。
※賃料、共益費、礼金、その他費用には別途消費税が掛かります。
※上記金額は募集条件です。条件交渉などについてはお気軽にお問い合わせください。
※確認時点での情報のため、リアルタイム情報はお問合せください。

大阪堂島浜タワーの施設情報カテゴリ

1棟貸可能
駅直結
大型EV
大型駐車場
大通り沿い
傘いらず
貸会議室
空中店舗相談
ヴィンテージ・レトロ
シャワートイレ
セキュリティ
SOHO(住居兼事務所)
デザイナーズ・個性派
トイレ男女別
荷物EVあり
ハイグレードオフィス
ネット回線引込可
ビル内貸倉庫
免振・制振構造
有人警備
ランドマーク
リニューアル
フリースペース
レンタルオフィス
新耐震
駅近(出口
築浅
川沿い、公園沿い
自転車置場

自転車置場料金: ー 円

大阪堂島浜タワーのアクセスマップ

空室情報や物件見学などお気軽にお問い合わせください。
ESTATE AGENCY
株式会社エステートエージェンシー
定休日:日曜日・祝日 営業時間:09:00~19:00
でお問い合わせ(無料メール 簡単1 電話でお問い合わせ(無料)

最近チェックした物件