フロア詳細情報

マルサン(大阪府大阪市北区天神橋2丁目北2番26号)のフロア情報

マルサンのビル詳細を見る
空室状況はお電話一本でスムーズにご案内!まずはお気軽に0120-939-204へどうぞ。
でお問い合わせ(無料メール 簡単1
※上記の写真は人物等が映っている場合、修正・加工が施されています。
物件情報更新日: 2026/02/06

マルサンの物件概要

ビル名
マルサン
物件番号/物件ID 13351
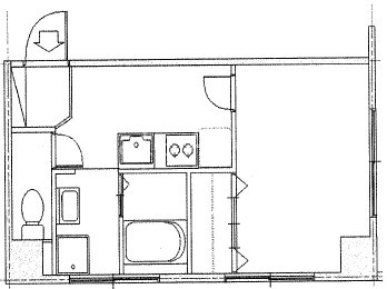
住所 大阪府大阪市北区天神橋2丁目北2番26号 面積(平米) 25.05㎡
最寄り駅
【最寄り駅1】

大阪メトロ谷町線 南森町駅  徒歩1分

【最寄り駅2】

大阪メトロ堺筋線 南森町駅  徒歩1分

【最寄り駅3】

JR東西線 大阪天満宮駅  徒歩2分

坪数 7.58坪
実行面積 100.00%
空調 個別
竣工 1987年01月01日
構造 鉄骨地上9階建地下1階
エレベーター基数 1 荷物用エレベーター基数
階数 地上 4階 退去日 退去日の詳細につきましては、お問い合わせください。
備考
ビル名
マルサン
住所 13351
最寄り駅
【最寄り駅1】

大阪メトロ谷町線 南森町駅  徒歩1分

【最寄り駅2】

大阪メトロ堺筋線 南森町駅  徒歩1分

【最寄り駅3】

JR東西線 大阪天満宮駅  徒歩2分

エレベーター基数 1
階数 4階
物件番号/物件ID 13351
面積(平米) 25.05㎡
坪数 7.58坪
実行面積 100.00%
空調 個別
竣工 1987年01月01日
構造 鉄骨地上9階建地下1階
荷物用エレベーター基数
退去日 退去日の詳細につきましては、お問い合わせください。
備考

マルサンの募集価格

総額 坪単価
賃料 80,000円 賃料 10,555円
共益費 0円 共益費 0円
月額合計 80,000円 月額合計 10,555円
保証金/敷金 0円 保証金/敷金 0円
礼金 80,000円 礼金 10,555円
賃料条件補足事項 保証会社加入で保証金0
総額
賃料 80,000円
共益費 0円
月額合計 80,000円
保証金/敷金 0円
礼金 80,000円
坪単価
賃料 10,555円
共益費 0円
月額合計 10,555円
保証金/敷金 0円
礼金 10,555円
賃料条件補足事項 保証会社加入で保証金0
空室情報や物件見学などお気軽にお問い合わせください。
ESTATE AGENCY
株式会社エステートエージェンシー
定休日:日曜日・祝日 営業時間:09:00~19:00
でお問い合わせ(無料メール 簡単1 電話でお問い合わせ(無料)

マルサンの基本情報

インフォメーション
マルサンビルは、北区エリア(大阪市北区天神橋2丁目)にある、1987年竣工、地上9階建の賃貸オフィスビルです。最寄駅は、大阪メトロ谷町線南森町駅徒歩1分のアクセス。是非一度ご内覧下さいませ!その他、事務所、オフィス移転の事なら何でもご相談下さい。
※貸主様からのご要望の為、条件を未公開としている場合がございます。詳しくお聞きになりたい場合は、弊社までご連絡ください。
※賃料、共益費、礼金、その他費用には別途消費税が掛かります。
※上記金額は募集条件です。条件交渉などについてはお気軽にお問い合わせください。
※確認時点での情報のため、リアルタイム情報はお問合せください。

マルサンの施設情報カテゴリ

1棟貸可能
駅直結
大型EV
大型駐車場
大通り沿い
傘いらず
貸会議室
空中店舗相談
ヴィンテージ・レトロ
シャワートイレ
セキュリティ
SOHO(住居兼事務所)
デザイナーズ・個性派
トイレ男女別
荷物EVあり
ハイグレードオフィス
ネット回線引込可
ビル内貸倉庫
免振・制振構造
有人警備
ランドマーク
リニューアル
フリースペース
レンタルオフィス
新耐震
駅近(出口
築浅
川沿い、公園沿い
自転車置場

自転車置場料金: ー 円

マルサンのアクセスマップ

空室情報や物件見学などお気軽にお問い合わせください。
ESTATE AGENCY
株式会社エステートエージェンシー
定休日:日曜日・祝日 営業時間:09:00~19:00
でお問い合わせ(無料メール 簡単1 電話でお問い合わせ(無料)

よく似た物件