フロア詳細情報

NLC新大阪2号館(大阪府大阪市淀川区西中島4丁目2番6号)のフロア情報

空室状況はお電話一本でスムーズにご案内!まずはお気軽に0120-939-204へどうぞ。
でお問い合わせ(無料メール 簡単1
※上記の写真は人物等が映っている場合、修正・加工が施されています。
物件情報更新日: 2026/04/14

NLC新大阪2号館の物件概要

ビル名
NLC新大阪2号館
物件番号/物件ID 14819
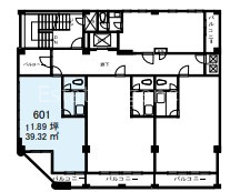
住所 大阪府大阪市淀川区西中島4丁目2番6号 面積(平米) 39.30㎡
最寄り駅
【最寄り駅1】

大阪メトロ御堂筋線 西中島南方駅  徒歩1分

【最寄り駅2】

阪急京都本線 南方駅  徒歩3分

【最寄り駅3】

大阪メトロ御堂筋線 新大阪駅  徒歩9分

【最寄り駅4】

JRおおさか東線 新大阪駅  徒歩10分

坪数 11.89坪
実行面積 75.00%
空調 個別
竣工 1983年01月01日
構造 地上8階建地下0階
エレベーター基数 1 荷物用エレベーター基数
階数 地上 6階 退去日 退去日の詳細につきましては、お問い合わせください。
備考
ビル名
NLC新大阪2号館
住所 14819
最寄り駅
【最寄り駅1】

大阪メトロ御堂筋線 西中島南方駅  徒歩1分

【最寄り駅2】

阪急京都本線 南方駅  徒歩3分

【最寄り駅3】

大阪メトロ御堂筋線 新大阪駅  徒歩9分

【最寄り駅4】

JRおおさか東線 新大阪駅  徒歩10分

エレベーター基数 1
階数 6階
物件番号/物件ID 14819
面積(平米) 39.30㎡
坪数 11.89坪
実行面積 75.00%
空調 個別
竣工 1983年01月01日
構造 地上8階建地下0階
荷物用エレベーター基数
退去日 退去日の詳細につきましては、お問い合わせください。
備考

NLC新大阪2号館の募集価格

総額 坪単価
賃料 118,900円 賃料 10,000円
共益費 35,670円 共益費 3,000円
月額合計 154,570円 月額合計 13,000円
保証金/敷金 463,710円 保証金/敷金 39,000円
礼金 0円 礼金 0円
賃料条件補足事項
総額
賃料 118,900円
共益費 35,670円
月額合計 154,570円
保証金/敷金 463,710円
礼金 0円
坪単価
賃料 10,000円
共益費 3,000円
月額合計 13,000円
保証金/敷金 39,000円
礼金 0円
賃料条件補足事項
空室情報や物件見学などお気軽にお問い合わせください。
ESTATE AGENCY
株式会社エステートエージェンシー
定休日:日曜日・祝日 営業時間:09:00~19:00
でお問い合わせ(無料メール 簡単1 電話でお問い合わせ(無料)

NLC新大阪2号館の基本情報

インフォメーション
NLC新大阪2号館は、淀川区エリア(大阪市淀川区西中島4丁目)にある、1983年竣工、地上8階建の賃貸オフィスビルです。最寄駅は大阪メトロ御堂筋線 西中島南方駅 徒歩2分のアクセス。是非一度ご内覧下さいませ!その他、事務所、オフィス移転の事なら何でもご相談下さい。
※貸主様からのご要望の為、条件を未公開としている場合がございます。詳しくお聞きになりたい場合は、弊社までご連絡ください。
※賃料、共益費、礼金、その他費用には別途消費税が掛かります。
※上記金額は募集条件です。条件交渉などについてはお気軽にお問い合わせください。
※確認時点での情報のため、リアルタイム情報はお問合せください。

NLC新大阪2号館の施設情報カテゴリ

1棟貸可能
駅直結
大型EV
大型駐車場
大通り沿い
傘いらず
貸会議室
空中店舗相談
ヴィンテージ・レトロ
シャワートイレ
セキュリティ
SOHO(住居兼事務所)
デザイナーズ・個性派
トイレ男女別
荷物EVあり
ハイグレードオフィス
ネット回線引込可
ビル内貸倉庫
免振・制振構造
有人警備
ランドマーク
リニューアル
フリースペース
レンタルオフィス
新耐震
駅近(出口
築浅
川沿い、公園沿い
自転車置場

自転車置場料金: ー 円

NLC新大阪2号館のアクセスマップ

空室情報や物件見学などお気軽にお問い合わせください。
ESTATE AGENCY
株式会社エステートエージェンシー
定休日:日曜日・祝日 営業時間:09:00~19:00
でお問い合わせ(無料メール 簡単1 電話でお問い合わせ(無料)

よく似た物件