フロア詳細情報

大阪三井物産(大阪府大阪市北区中之島2丁目3番33号)のフロア情報

大阪三井物産のビル詳細を見る
空室状況はお電話一本でスムーズにご案内!まずはお気軽に0120-939-204へどうぞ。
でお問い合わせ(無料メール 簡単1
※上記の写真は人物等が映っている場合、修正・加工が施されています。
物件情報更新日: 2026/03/01

大阪三井物産の物件概要

ビル名
大阪三井物産
物件番号/物件ID 14308
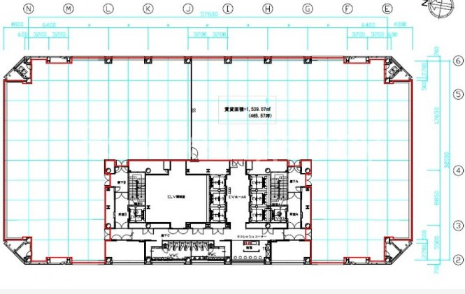
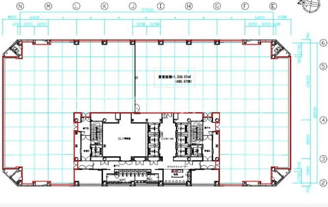
住所 大阪府大阪市北区中之島2丁目3番33号 面積(平米) 1574.31㎡
最寄り駅
【最寄り駅1】

京阪中之島線 渡辺橋駅  徒歩3分

【最寄り駅2】

京阪中之島線 大江橋駅  徒歩3分

【最寄り駅3】

大阪メトロ四つ橋線 肥後橋駅  徒歩4分

【最寄り駅4】

大阪メトロ御堂筋線 淀屋橋駅  徒歩5分

坪数 476.23坪
実行面積 100.00%
空調 集中
竣工 2001年01月01日
構造 SRC地上23階建地下4階
エレベーター基数 14 荷物用エレベーター基数 1
階数 地上 10階 退去日 退去日の詳細につきましては、お問い合わせください。
備考
ビル名
大阪三井物産
住所 14308
最寄り駅
【最寄り駅1】

京阪中之島線 渡辺橋駅  徒歩3分

【最寄り駅2】

京阪中之島線 大江橋駅  徒歩3分

【最寄り駅3】

大阪メトロ四つ橋線 肥後橋駅  徒歩4分

【最寄り駅4】

大阪メトロ御堂筋線 淀屋橋駅  徒歩5分

エレベーター基数 14
階数 10階
物件番号/物件ID 14308
面積(平米) 1574.31㎡
坪数 476.23坪
実行面積 100.00%
空調 集中
竣工 2001年01月01日
構造 SRC地上23階建地下4階
荷物用エレベーター基数 1
退去日 退去日の詳細につきましては、お問い合わせください。
備考

大阪三井物産の募集価格

総額 坪単価
賃料 非公開 賃料 非公開
共益費 非公開 共益費 非公開
月額合計 非公開 月額合計 非公開
保証金/敷金 非公開 保証金/敷金 非公開
礼金 非公開 礼金 非公開
賃料条件補足事項 3階41.30+40.35=81.65は統合可能
総額
賃料 非公開
共益費 非公開
月額合計 非公開
保証金/敷金 非公開
礼金 非公開
坪単価
賃料 非公開
共益費 非公開
月額合計 非公開
保証金/敷金 非公開
礼金 非公開
賃料条件補足事項 3階41.30+40.35=81.65は統合可能

大阪三井物産のその他空室情報

階数 広さ 賃料合計(税別) 坪単価 保証金・敷金 礼金
11F 233.18坪 非公開 非公開 非公開 非公開
フロア詳細
フロア詳細
9F 476.23坪 非公開 非公開 非公開 非公開
フロア詳細
フロア詳細
空室情報や物件見学などお気軽にお問い合わせください。
ESTATE AGENCY
株式会社エステートエージェンシー
定休日:日曜日・祝日 営業時間:09:00~19:00
でお問い合わせ(無料メール 簡単1 電話でお問い合わせ(無料)

大阪三井物産の基本情報

インフォメーション
この大阪三井物産ビルは住所大阪府大阪市北区中之島2丁目3番33号の2001年竣工、地上23階建の賃貸オフィスビルです。最寄駅は、京阪中之島線渡辺橋駅徒歩3分のアクセス。設備情報はアスベスト対策済、大型ビル、大通り沿い、貸会議室、喫煙室、キャンペーン物件、自転車置場、シャワートイレ、セキュリティ、トイレ男女別、24時間利用可能、光回線、有人警備、リフレッシュルーム。是非一度ご内覧下さいませ! その他、事務所、オフィス移転、不動産の事なら何でもお気軽にご相談下さい。
※貸主様からのご要望の為、条件を未公開としている場合がございます。詳しくお聞きになりたい場合は、弊社までご連絡ください。
※賃料、共益費、礼金、その他費用には別途消費税が掛かります。
※上記金額は募集条件です。条件交渉などについてはお気軽にお問い合わせください。
※確認時点での情報のため、リアルタイム情報はお問合せください。

大阪三井物産の施設情報カテゴリ

1棟貸可能
駅直結
大型EV
大型駐車場
大通り沿い
傘いらず
貸会議室
空中店舗相談
ヴィンテージ・レトロ
シャワートイレ
セキュリティ
SOHO(住居兼事務所)
デザイナーズ・個性派
トイレ男女別
荷物EVあり
ハイグレードオフィス
ネット回線引込可
ビル内貸倉庫
免振・制振構造
有人警備
ランドマーク
リニューアル
フリースペース
レンタルオフィス
新耐震
駅近(出口
築浅
川沿い、公園沿い
自転車置場

自転車置場料金: ー 円

大阪三井物産のアクセスマップ

空室情報や物件見学などお気軽にお問い合わせください。
ESTATE AGENCY
株式会社エステートエージェンシー
定休日:日曜日・祝日 営業時間:09:00~19:00
でお問い合わせ(無料メール 簡単1 電話でお問い合わせ(無料)

最近チェックした物件