フロア詳細情報

アルティジア城東中央(大阪府大阪市城東区中央1丁目8番29号)のフロア情報

空室状況はお電話一本でスムーズにご案内!まずはお気軽に0120-939-204へどうぞ。
でお問い合わせ(無料メール 簡単1
※上記の写真は人物等が映っている場合、修正・加工が施されています。
物件情報更新日: 2026/02/05

アルティジア城東中央の物件概要

ビル名
アルティジア城東中央
物件番号/物件ID 31410
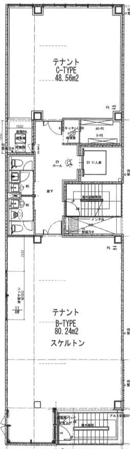
住所 大阪府大阪市城東区中央1丁目8番29号 面積(平米) 80.23㎡
最寄り駅
【最寄り駅1】

大阪メトロ今里筋線 蒲生四丁目駅  徒歩6分

【最寄り駅2】

大阪メトロ長堀鶴見緑地線 蒲生四丁目駅  徒歩6分

【最寄り駅3】

JRおおさか東線 JR野江駅  徒歩9分

【最寄り駅4】

京阪本線 野江駅  徒歩9分

坪数 24.27坪
実行面積
空調 個別
竣工 2026年02月01日
構造 鉄骨地上7階建
エレベーター基数 1 荷物用エレベーター基数
階数 地上 3階 退去日 退去日の詳細につきましては、お問い合わせください。
備考
ビル名
アルティジア城東中央
住所 31410
最寄り駅
【最寄り駅1】

大阪メトロ今里筋線 蒲生四丁目駅  徒歩6分

【最寄り駅2】

大阪メトロ長堀鶴見緑地線 蒲生四丁目駅  徒歩6分

【最寄り駅3】

JRおおさか東線 JR野江駅  徒歩9分

【最寄り駅4】

京阪本線 野江駅  徒歩9分

エレベーター基数 1
階数 3階
物件番号/物件ID 31410
面積(平米) 80.23㎡
坪数 24.27坪
実行面積
空調 個別
竣工 2026年02月01日
構造 鉄骨地上7階建
荷物用エレベーター基数
退去日 退去日の詳細につきましては、お問い合わせください。
備考

アルティジア城東中央の募集価格

総額 坪単価
賃料 425,000円 賃料 17,512円
共益費 7,000円 共益費 289円
月額合計 432,000円 月額合計 17,801円
保証金/敷金 79,600円 保証金/敷金 3,280円
礼金 119,400円 礼金 4,920円
賃料条件補足事項
総額
賃料 425,000円
共益費 7,000円
月額合計 432,000円
保証金/敷金 79,600円
礼金 119,400円
坪単価
賃料 17,512円
共益費 289円
月額合計 17,801円
保証金/敷金 3,280円
礼金 4,920円
賃料条件補足事項

アルティジア城東中央のその他空室情報

階数 広さ 賃料合計(税別) 坪単価 保証金・敷金 礼金
1F 17.30坪 408,000円 23,585円 796,000円 1,194,000円
フロア詳細
フロア詳細
2F 24.27坪 432,000円 17,801円 79,600円 119,400円
フロア詳細
フロア詳細
2F 14.60坪 233,000円 15,960円 452,000円 678,000円
フロア詳細
フロア詳細
3F 14.60坪 233,000円 15,960円 452,000円 678,000円
フロア詳細
フロア詳細
4F 24.27坪 400,000円 16,482円 786,000円 1,179,000円
フロア詳細
フロア詳細
4F 14.60坪 233,000円 15,960円 452,000円 678,000円
フロア詳細
フロア詳細
5F 24.27坪 400,000円 16,482円 786,000円 1,179,000円
フロア詳細
フロア詳細
5F 14.60坪 233,000円 15,960円 452,000円 678,000円
フロア詳細
フロア詳細
6F 36.42坪 647,000円 17,766円 1,274,000円 1,911,000円
フロア詳細
フロア詳細
6F 14.60坪 233,000円 15,960円 452,000円 678,000円
フロア詳細
フロア詳細
空室情報や物件見学などお気軽にお問い合わせください。
ESTATE AGENCY
株式会社エステートエージェンシー
定休日:日曜日・祝日 営業時間:09:00~19:00
でお問い合わせ(無料メール 簡単1 電話でお問い合わせ(無料)
※貸主様からのご要望の為、条件を未公開としている場合がございます。詳しくお聞きになりたい場合は、弊社までご連絡ください。
※賃料、共益費、礼金、その他費用には別途消費税が掛かります。
※上記金額は募集条件です。条件交渉などについてはお気軽にお問い合わせください。
※確認時点での情報のため、リアルタイム情報はお問合せください。

アルティジア城東中央の施設情報カテゴリ

1棟貸可能
駅直結
大型EV
大型駐車場
大通り沿い
傘いらず
貸会議室
空中店舗相談
ヴィンテージ・レトロ
シャワートイレ
セキュリティ
SOHO(住居兼事務所)
デザイナーズ・個性派
トイレ男女別
荷物EVあり
ハイグレードオフィス
ネット回線引込可
ビル内貸倉庫
免振・制振構造
有人警備
ランドマーク
リニューアル
フリースペース
レンタルオフィス
新耐震
駅近(出口
築浅
川沿い、公園沿い
自転車置場

自転車置場料金: ー 円

アルティジア城東中央のアクセスマップ

空室情報や物件見学などお気軽にお問い合わせください。
ESTATE AGENCY
株式会社エステートエージェンシー
定休日:日曜日・祝日 営業時間:09:00~19:00
でお問い合わせ(無料メール 簡単1 電話でお問い合わせ(無料)