フロア詳細情報

新大阪第27松屋(大阪府大阪市淀川区宮原5丁目1番18号)のフロア情報

新大阪第27松屋のビル詳細を見る
空室状況はお電話一本でスムーズにご案内!まずはお気軽に0120-939-204へどうぞ。
でお問い合わせ(無料メール 簡単1
※上記の写真は人物等が映っている場合、修正・加工が施されています。
物件情報更新日: 2026/03/31

新大阪第27松屋の物件概要

ビル名
新大阪第27松屋
物件番号/物件ID 15026
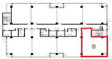
住所 大阪府大阪市淀川区宮原5丁目1番18号 面積(平米) 73.28㎡
最寄り駅
【最寄り駅1】

大阪メトロ御堂筋線 東三国駅  徒歩4分

【最寄り駅2】

大阪メトロ御堂筋線 新大阪駅  徒歩8分

【最寄り駅3】

大阪メトロ御堂筋線 西中島南方駅  徒歩17分

【最寄り駅4】

JR東海道本線 新大阪駅  徒歩8分

坪数 22.17坪
実行面積 100.00%
空調 個別
竣工 1991年08月27日
構造 SRC造地上16階建地下1階
エレベーター基数 3 荷物用エレベーター基数 1
階数 地上 13階 退去日 退去日の詳細につきましては、お問い合わせください。
備考
ビル名
新大阪第27松屋
住所 15026
最寄り駅
【最寄り駅1】

大阪メトロ御堂筋線 東三国駅  徒歩4分

【最寄り駅2】

大阪メトロ御堂筋線 新大阪駅  徒歩8分

【最寄り駅3】

大阪メトロ御堂筋線 西中島南方駅  徒歩17分

【最寄り駅4】

JR東海道本線 新大阪駅  徒歩8分

エレベーター基数 3
階数 13階
物件番号/物件ID 15026
面積(平米) 73.28㎡
坪数 22.17坪
実行面積 100.00%
空調 個別
竣工 1991年08月27日
構造 SRC造地上16階建地下1階
荷物用エレベーター基数 1
退去日 退去日の詳細につきましては、お問い合わせください。
備考

新大阪第27松屋の募集価格

総額 坪単価
賃料 非公開 賃料 非公開
共益費 非公開 共益費 非公開
月額合計 非公開 月額合計 非公開
保証金/敷金 非公開 保証金/敷金 非公開
礼金 非公開 礼金 非公開
賃料条件補足事項 水道料有/警備料有/電気料プラン毎に基本料変動、名札製作費有
総額
賃料 非公開
共益費 非公開
月額合計 非公開
保証金/敷金 非公開
礼金 非公開
坪単価
賃料 非公開
共益費 非公開
月額合計 非公開
保証金/敷金 非公開
礼金 非公開
賃料条件補足事項 水道料有/警備料有/電気料プラン毎に基本料変動、名札製作費有
空室情報や物件見学などお気軽にお問い合わせください。
ESTATE AGENCY
株式会社エステートエージェンシー
定休日:日曜日・祝日 営業時間:09:00~19:00
でお問い合わせ(無料メール 簡単1 電話でお問い合わせ(無料)

新大阪第27松屋の基本情報

インフォメーション
新大阪第27松屋ビルは、淀川区エリア(宮原5丁目)にある、JR新大阪駅徒歩8分の大型賃貸オフィスビルです。東三国駅でしたら徒歩2分と駅近で、アクセスの良い物件となっております。テレビなどでも取り上げられたポテラボ(リフレッシュルーム)が一番の特徴かと思われます。レクレーションルームとして、社内交流の一環としても使用できるので自由な発想が必要とされるIT企業様などにオススメではないでしょうか。他にも、一階受付には無料貸出サービスなども有り、テナントサービスをとことん追及したオフィスビルです。是非一度ご内覧下さいませ。
※貸主様からのご要望の為、条件を未公開としている場合がございます。詳しくお聞きになりたい場合は、弊社までご連絡ください。
※賃料、共益費、礼金、その他費用には別途消費税が掛かります。
※上記金額は募集条件です。条件交渉などについてはお気軽にお問い合わせください。
※確認時点での情報のため、リアルタイム情報はお問合せください。

新大阪第27松屋の施設情報カテゴリ

1棟貸可能
駅直結
大型EV
大型駐車場
大通り沿い
傘いらず
貸会議室
空中店舗相談
ヴィンテージ・レトロ
シャワートイレ
セキュリティ
SOHO(住居兼事務所)
デザイナーズ・個性派
トイレ男女別
荷物EVあり
ハイグレードオフィス
ネット回線引込可
ビル内貸倉庫
免振・制振構造
有人警備
ランドマーク
リニューアル
フリースペース
レンタルオフィス
新耐震
駅近(出口
築浅
川沿い、公園沿い
自転車置場

自転車置場料金: ー 円

新大阪第27松屋のアクセスマップ

空室情報や物件見学などお気軽にお問い合わせください。
ESTATE AGENCY
株式会社エステートエージェンシー
定休日:日曜日・祝日 営業時間:09:00~19:00
でお問い合わせ(無料メール 簡単1 電話でお問い合わせ(無料)

申し訳ございません。
会員登録をお願い致します。

会員登録のメリット

  • 1、非公開物件情報のご紹介が可能です!
  • 2、ご希望条件をいただきましたら新着物件情報等を定期的に配信いたします!
  • 3、会員登録されたお客様にはご契約時に特別なプレゼントをご用意しております!
会員登録

※会員登録は同業者不可、メールアドレスは企業ドメインのみ
※GmailやYahooなどのフリーメールでは会員登録できないこともありますのでご了承ください。