フロア詳細情報

弘栄(大阪府大阪市中央区淡路町2丁目1番13番)のフロア情報

弘栄のビル詳細を見る
空室状況はお電話一本でスムーズにご案内!まずはお気軽に0120-939-204へどうぞ。
でお問い合わせ(無料メール 簡単1
※上記の写真は人物等が映っている場合、修正・加工が施されています。
物件情報更新日: 2026/03/01

弘栄の物件概要

ビル名
弘栄
物件番号/物件ID 9955
住所 大阪府大阪市中央区淡路町2丁目1番13番 面積(平米) 113.52㎡
最寄り駅
【最寄り駅1】

大阪メトロ堺筋線 堺筋本町駅  徒歩6分

【最寄り駅2】

大阪メトロ御堂筋線 本町駅  徒歩8分

【最寄り駅3】

大阪メトロ中央線 堺筋本町駅  徒歩7分

坪数 34.34坪
実行面積 100.00%
空調 個別
竣工 1977年09月01日
構造 RC地上9階建地下0階
エレベーター基数 2 荷物用エレベーター基数
階数 地上 6階 退去日 退去日の詳細につきましては、お問い合わせください。
備考
ビル名
弘栄
住所 9955
最寄り駅
【最寄り駅1】

大阪メトロ堺筋線 堺筋本町駅  徒歩6分

【最寄り駅2】

大阪メトロ御堂筋線 本町駅  徒歩8分

【最寄り駅3】

大阪メトロ中央線 堺筋本町駅  徒歩7分

エレベーター基数 2
階数 6階
物件番号/物件ID 9955
面積(平米) 113.52㎡
坪数 34.34坪
実行面積 100.00%
空調 個別
竣工 1977年09月01日
構造 RC地上9階建地下0階
荷物用エレベーター基数
退去日 退去日の詳細につきましては、お問い合わせください。
備考

弘栄の募集価格

総額 坪単価
賃料 345,014円 賃料 10,047円
共益費 0円 共益費 0円
月額合計 345,014円 月額合計 10,047円
保証金/敷金 1,035,042円 保証金/敷金 30,141円
礼金 345,014円 礼金 10,047円
賃料条件補足事項 保証会社加入要
総額
賃料 345,014円
共益費 0円
月額合計 345,014円
保証金/敷金 1,035,042円
礼金 345,014円
坪単価
賃料 10,047円
共益費 0円
月額合計 10,047円
保証金/敷金 30,141円
礼金 10,047円
賃料条件補足事項 保証会社加入要

弘栄のその他空室情報

階数 広さ 賃料合計(税別) 坪単価 保証金・敷金 礼金
2F 20.00坪 560,000円 28,000円 1,680,000円 600,000円
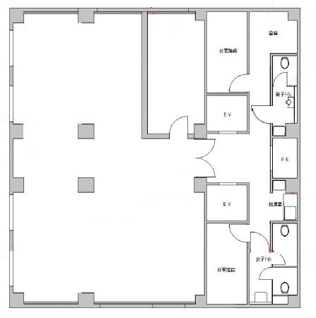
フロア詳細
フロア詳細
空室情報や物件見学などお気軽にお問い合わせください。
ESTATE AGENCY
株式会社エステートエージェンシー
定休日:日曜日・祝日 営業時間:09:00~19:00
でお問い合わせ(無料メール 簡単1 電話でお問い合わせ(無料)

弘栄の基本情報

インフォメーション
弘栄ビルは、中央区エリア(大阪市中央区淡路町2丁目)にある、地上9階建の賃貸オフィスビルです。最寄駅は、大阪メトロ堺筋線 堺筋本町駅 徒歩6分のアクセス。御堂筋線も徒歩圏内。コンパクト&ローコスト(10坪代に分割対応可能)是非一度ご内覧下さいませ!その他、事務所、オフィス移転の事なら何でもご相談下さい。
※貸主様からのご要望の為、条件を未公開としている場合がございます。詳しくお聞きになりたい場合は、弊社までご連絡ください。
※賃料、共益費、礼金、その他費用には別途消費税が掛かります。
※上記金額は募集条件です。条件交渉などについてはお気軽にお問い合わせください。
※確認時点での情報のため、リアルタイム情報はお問合せください。

弘栄の施設情報カテゴリ

1棟貸可能
駅直結
大型EV
大型駐車場
大通り沿い
傘いらず
貸会議室
空中店舗相談
ヴィンテージ・レトロ
シャワートイレ
セキュリティ
SOHO(住居兼事務所)
デザイナーズ・個性派
トイレ男女別
荷物EVあり
ハイグレードオフィス
ネット回線引込可
ビル内貸倉庫
免振・制振構造
有人警備
ランドマーク
リニューアル
フリースペース
レンタルオフィス
新耐震
駅近(出口
築浅
川沿い、公園沿い
自転車置場

自転車置場料金: ー 円

弘栄のアクセスマップ

空室情報や物件見学などお気軽にお問い合わせください。
ESTATE AGENCY
株式会社エステートエージェンシー
定休日:日曜日・祝日 営業時間:09:00~19:00
でお問い合わせ(無料メール 簡単1 電話でお問い合わせ(無料)

よく似た物件