フロア詳細情報

アーバナイト農人橋(大阪府大阪市中央区農人橋2丁目4番1号)のフロア情報

空室状況はお電話一本でスムーズにご案内!まずはお気軽に0120-939-204へどうぞ。
でお問い合わせ(無料メール 簡単1
※上記の写真は人物等が映っている場合、修正・加工が施されています。
物件情報更新日: 2026/02/10

アーバナイト農人橋の物件概要

ビル名
アーバナイト農人橋
物件番号/物件ID 11520
住所 大阪府大阪市中央区農人橋2丁目4番1号 面積(平米) 56.82㎡
最寄り駅
【最寄り駅1】

大阪メトロ谷町線 谷町四丁目駅  徒歩5分

【最寄り駅2】

大阪メトロ堺筋線 堺筋本町駅  徒歩7分

【最寄り駅3】

大阪メトロ谷町線 谷町六丁目駅  徒歩10分

【最寄り駅4】

大阪メトロ中央線 谷町四丁目駅  徒歩5分

坪数 17.19坪
実行面積 100.00%
空調 個別
竣工 1999年01月31日
構造 RC地上11階建地下1階
エレベーター基数 1 荷物用エレベーター基数
階数 地上 7階 退去日 退去日の詳細につきましては、お問い合わせください。
備考
ビル名
アーバナイト農人橋
住所 11520
最寄り駅
【最寄り駅1】

大阪メトロ谷町線 谷町四丁目駅  徒歩5分

【最寄り駅2】

大阪メトロ堺筋線 堺筋本町駅  徒歩7分

【最寄り駅3】

大阪メトロ谷町線 谷町六丁目駅  徒歩10分

【最寄り駅4】

大阪メトロ中央線 谷町四丁目駅  徒歩5分

エレベーター基数 1
階数 7階
物件番号/物件ID 11520
面積(平米) 56.82㎡
坪数 17.19坪
実行面積 100.00%
空調 個別
竣工 1999年01月31日
構造 RC地上11階建地下1階
荷物用エレベーター基数
退去日 退去日の詳細につきましては、お問い合わせください。
備考

アーバナイト農人橋の募集価格

総額 坪単価
賃料 112,215円 賃料 6,528円
共益費 25,785円 共益費 1,500円
月額合計 138,000円 月額合計 8,028円
保証金/敷金 420,000円 保証金/敷金 24,433円
礼金 0円 礼金 0円
賃料条件補足事項 SOHO
総額
賃料 112,215円
共益費 25,785円
月額合計 138,000円
保証金/敷金 420,000円
礼金 0円
坪単価
賃料 6,528円
共益費 1,500円
月額合計 8,028円
保証金/敷金 24,433円
礼金 0円
賃料条件補足事項 SOHO

アーバナイト農人橋のその他空室情報

階数 広さ 賃料合計(税別) 坪単価 保証金・敷金 礼金
3F 17.19坪 138,000円 8,028円 420,000円 0円
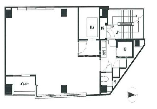
フロア詳細
フロア詳細
空室情報や物件見学などお気軽にお問い合わせください。
ESTATE AGENCY
株式会社エステートエージェンシー
定休日:日曜日・祝日 営業時間:09:00~19:00
でお問い合わせ(無料メール 簡単1 電話でお問い合わせ(無料)

アーバナイト農人橋の基本情報

インフォメーション
アーバナイト農人橋ビルは、中央区エリア(大阪市中央区農人橋2丁目)にある、1999年竣工、地上11階地下1階建の賃貸オフィスビルです。最寄駅は、大阪メトロ谷町線 谷町四丁目駅 徒歩5分のアクセス。中央大通り沿いのSOHOタイプのオフィスです。是非一度ご内覧下さいませ!その他、事務所、オフィス移転の事なら何でもご相談下さい。
※貸主様からのご要望の為、条件を未公開としている場合がございます。詳しくお聞きになりたい場合は、弊社までご連絡ください。
※賃料、共益費、礼金、その他費用には別途消費税が掛かります。
※上記金額は募集条件です。条件交渉などについてはお気軽にお問い合わせください。

アーバナイト農人橋の施設情報カテゴリ

1棟貸可能
駅直結
大型EV
大型駐車場
大通り沿い
傘いらず
貸会議室
空中店舗相談
ヴィンテージ・レトロ
シャワートイレ
セキュリティ
SOHO(住居兼事務所)
デザイナーズ・個性派
トイレ男女別
荷物EVあり
ハイグレードオフィス
ネット回線引込可
ビル内貸倉庫
免振・制振構造
有人警備
ランドマーク
リニューアル
フリースペース
レンタルオフィス
新耐震
駅近(出口
築浅
川沿い、公園沿い
自転車置場

自転車置場料金: ー 円

アーバナイト農人橋のアクセスマップ

空室情報や物件見学などお気軽にお問い合わせください。
ESTATE AGENCY
株式会社エステートエージェンシー
定休日:日曜日・祝日 営業時間:09:00~19:00
でお問い合わせ(無料メール 簡単1 電話でお問い合わせ(無料)

よく似た物件