フロア詳細情報

行成(大阪府大阪市西区新町1丁目8番1号)のフロア情報

行成のビル詳細を見る
空室状況はお電話一本でスムーズにご案内!まずはお気軽に0120-939-204へどうぞ。
でお問い合わせ(無料メール 簡単1
※上記の写真は人物等が映っている場合、修正・加工が施されています。
物件情報更新日: 2026/04/01

行成の物件概要

ビル名
行成
物件番号/物件ID 12797
住所 大阪府大阪市西区新町1丁目8番1号 面積(平米) 18.57㎡
最寄り駅
【最寄り駅1】

大阪メトロ四つ橋線 四ツ橋駅  徒歩3分

【最寄り駅2】

大阪メトロ御堂筋線 心斎橋駅  徒歩6分

【最寄り駅3】

大阪メトロ長堀鶴見緑地線 西大橋駅  徒歩6分

【最寄り駅4】

大阪メトロ四つ橋線 本町駅  徒歩7分

坪数 5.62坪
実行面積 100.00%
空調 個別
竣工 1974年01月31日
構造 SRC地上11階建地下0階
エレベーター基数 2 荷物用エレベーター基数
階数 地上 4階 退去日 退去日の詳細につきましては、お問い合わせください。
備考 2011年大規模改修、2016年エントランス、EV改修済み
ビル名
行成
住所 12797
最寄り駅
【最寄り駅1】

大阪メトロ四つ橋線 四ツ橋駅  徒歩3分

【最寄り駅2】

大阪メトロ御堂筋線 心斎橋駅  徒歩6分

【最寄り駅3】

大阪メトロ長堀鶴見緑地線 西大橋駅  徒歩6分

【最寄り駅4】

大阪メトロ四つ橋線 本町駅  徒歩7分

エレベーター基数 2
階数 4階
物件番号/物件ID 12797
面積(平米) 18.57㎡
坪数 5.62坪
実行面積 100.00%
空調 個別
竣工 1974年01月31日
構造 SRC地上11階建地下0階
荷物用エレベーター基数
退去日 退去日の詳細につきましては、お問い合わせください。
備考 2011年大規模改修、2016年エントランス、EV改修済み

行成の募集価格

総額 坪単価
賃料 62,000円 賃料 11,033円
共益費 8,500円 共益費 1,513円
月額合計 70,500円 月額合計 12,546円
保証金/敷金 279,000円 保証金/敷金 49,649円
礼金 0円 礼金 0円
賃料条件補足事項 警備費6,000円/月・水道代2,000円/月
総額
賃料 62,000円
共益費 8,500円
月額合計 70,500円
保証金/敷金 279,000円
礼金 0円
坪単価
賃料 11,033円
共益費 1,513円
月額合計 12,546円
保証金/敷金 49,649円
礼金 0円
賃料条件補足事項 警備費6,000円/月・水道代2,000円/月

行成のその他空室情報

階数 広さ 賃料合計(税別) 坪単価 保証金・敷金 礼金
2F 16.70坪 175,000円 10,481円 675,000円 0円
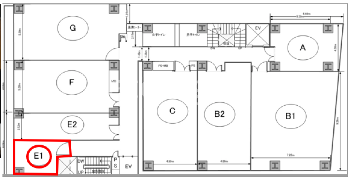
フロア詳細
フロア詳細
空室情報や物件見学などお気軽にお問い合わせください。
ESTATE AGENCY
株式会社エステートエージェンシー
定休日:日曜日・祝日 営業時間:09:00~19:00
でお問い合わせ(無料メール 簡単1 電話でお問い合わせ(無料)

行成の基本情報

インフォメーション
行成ビルは、西区エリア(大阪市西区新町1丁目)にある、1974年竣工、地上10階建の大通り沿い・駅近、賃貸オフィスビルです。最寄駅は、大阪メトロ四つ橋線 四ツ橋駅 徒歩3分のアクセス。2011年3月にビル全面改修工事済みで、エントランス共用部、非常に綺麗です。また、ビル内に貸会議室なども有り、テナントサービスが充実しております。ビルオーナー様は通信関係のお仕事もされているので、OA機器・PC・ネット関係のフォローもして頂けます。是非一度ご内覧下さいませ!その他、事務所、オフィス移転の事なら何でもご相談下さい。
※貸主様からのご要望の為、条件を未公開としている場合がございます。詳しくお聞きになりたい場合は、弊社までご連絡ください。
※賃料、共益費、礼金、その他費用には別途消費税が掛かります。
※上記金額は募集条件です。条件交渉などについてはお気軽にお問い合わせください。
※確認時点での情報のため、リアルタイム情報はお問合せください。

行成の施設情報カテゴリ

1棟貸可能
駅直結
大型EV
大型駐車場
大通り沿い
傘いらず
貸会議室
空中店舗相談
ヴィンテージ・レトロ
シャワートイレ
セキュリティ
SOHO(住居兼事務所)
デザイナーズ・個性派
トイレ男女別
荷物EVあり
ハイグレードオフィス
ネット回線引込可
ビル内貸倉庫
免振・制振構造
有人警備
ランドマーク
リニューアル
フリースペース
レンタルオフィス
新耐震
駅近(出口
築浅
川沿い、公園沿い
自転車置場

自転車置場料金: ー 円

行成のアクセスマップ

空室情報や物件見学などお気軽にお問い合わせください。
ESTATE AGENCY
株式会社エステートエージェンシー
定休日:日曜日・祝日 営業時間:09:00~19:00
でお問い合わせ(無料メール 簡単1 電話でお問い合わせ(無料)

よく似た物件

最近チェックした物件