フロア詳細情報

ノース四ツ橋(大阪府大阪市西区新町1丁目24番8号)のフロア情報

ノース四ツ橋のビル詳細を見る
空室状況はお電話一本でスムーズにご案内!まずはお気軽に0120-939-204へどうぞ。
でお問い合わせ(無料メール 簡単1
※上記の写真は人物等が映っている場合、修正・加工が施されています。
物件情報更新日: 2026/02/10

ノース四ツ橋の物件概要

ビル名
ノース四ツ橋
物件番号/物件ID 12838
住所 大阪府大阪市西区新町1丁目24番8号 面積(平米) 33.12㎡
最寄り駅
【最寄り駅1】

大阪メトロ四つ橋線 四ツ橋駅  徒歩2分

【最寄り駅2】

大阪メトロ長堀鶴見緑地線 西大橋駅  徒歩2分

【最寄り駅3】

大阪メトロ御堂筋線 心斎橋駅  徒歩5分

【最寄り駅4】

大阪メトロ四つ橋線 本町駅  徒歩9分

坪数 10.02坪
実行面積 80.00%
空調 個別
竣工 1989年10月31日
構造 鉄骨地上11階建地下1階
エレベーター基数 1 荷物用エレベーター基数
階数 地上 11階 退去日 退去日の詳細につきましては、お問い合わせください。
備考
ビル名
ノース四ツ橋
住所 12838
最寄り駅
【最寄り駅1】

大阪メトロ四つ橋線 四ツ橋駅  徒歩2分

【最寄り駅2】

大阪メトロ長堀鶴見緑地線 西大橋駅  徒歩2分

【最寄り駅3】

大阪メトロ御堂筋線 心斎橋駅  徒歩5分

【最寄り駅4】

大阪メトロ四つ橋線 本町駅  徒歩9分

エレベーター基数 1
階数 11階
物件番号/物件ID 12838
面積(平米) 33.12㎡
坪数 10.02坪
実行面積 80.00%
空調 個別
竣工 1989年10月31日
構造 鉄骨地上11階建地下1階
荷物用エレベーター基数
退去日 退去日の詳細につきましては、お問い合わせください。
備考

ノース四ツ橋の募集価格

総額 坪単価
賃料 130,260円 賃料 13,000円
共益費 非公開 共益費 非公開
月額合計 130,260円 月額合計 13,000円
保証金/敷金 260,520円 保証金/敷金 26,000円
礼金 0円 礼金 0円
賃料条件補足事項 保証会社加入義務あり/短期解約違約金2年以内の場合賃料6ヶ月分
総額
賃料 130,260円
共益費 非公開
月額合計 130,260円
保証金/敷金 260,520円
礼金 0円
坪単価
賃料 13,000円
共益費 非公開
月額合計 13,000円
保証金/敷金 26,000円
礼金 0円
賃料条件補足事項 保証会社加入義務あり/短期解約違約金2年以内の場合賃料6ヶ月分

ノース四ツ橋のその他空室情報

階数 広さ 賃料合計(税別) 坪単価 保証金・敷金 礼金
3F 18.90坪 245,700円 13,001円 491,400円 0円
フロア詳細
フロア詳細
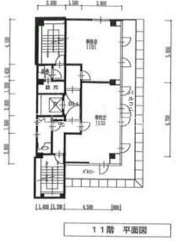
11F 9.89坪 128,570円 13,000円 257,140円 0円
フロア詳細
フロア詳細
空室情報や物件見学などお気軽にお問い合わせください。
ESTATE AGENCY
株式会社エステートエージェンシー
定休日:日曜日・祝日 営業時間:09:00~19:00
でお問い合わせ(無料メール 簡単1 電話でお問い合わせ(無料)

ノース四ツ橋の基本情報

インフォメーション
ノース四ツ橋ビルは、西区エリア(大阪市西区新町1丁目)にある、1989年竣工、地上11階地下1階建の賃貸オフィスビルです。最寄駅は、大阪メトロ四つ橋線 四ツ橋駅 徒歩2分のアクセス。是非一度ご内覧下さいませ!その他、事務所、オフィス移転の事なら何でもご相談下さい。
※貸主様からのご要望の為、条件を未公開としている場合がございます。詳しくお聞きになりたい場合は、弊社までご連絡ください。
※賃料、共益費、礼金、その他費用には別途消費税が掛かります。
※上記金額は募集条件です。条件交渉などについてはお気軽にお問い合わせください。
※確認時点での情報のため、リアルタイム情報はお問合せください。

ノース四ツ橋の施設情報カテゴリ

1棟貸可能
駅直結
大型EV
大型駐車場
大通り沿い
傘いらず
貸会議室
空中店舗相談
ヴィンテージ・レトロ
シャワートイレ
セキュリティ
SOHO(住居兼事務所)
デザイナーズ・個性派
トイレ男女別
荷物EVあり
ハイグレードオフィス
ネット回線引込可
ビル内貸倉庫
免振・制振構造
有人警備
ランドマーク
リニューアル
フリースペース
レンタルオフィス
新耐震
駅近(出口
築浅
川沿い、公園沿い
自転車置場

自転車置場料金: ー 円

ノース四ツ橋のアクセスマップ

空室情報や物件見学などお気軽にお問い合わせください。
ESTATE AGENCY
株式会社エステートエージェンシー
定休日:日曜日・祝日 営業時間:09:00~19:00
でお問い合わせ(無料メール 簡単1 電話でお問い合わせ(無料)

よく似た物件