フロア詳細情報

アステリオ北堀江(大阪府大阪市西区北堀江1丁目2番19号)のフロア情報

アステリオ北堀江のビル詳細を見る
空室状況はお電話一本でスムーズにご案内!まずはお気軽に0120-939-204へどうぞ。
でお問い合わせ(無料メール 簡単1
※上記の写真は人物等が映っている場合、修正・加工が施されています。
物件情報更新日: 2026/02/10

アステリオ北堀江の物件概要

ビル名
アステリオ北堀江
物件番号/物件ID 12983
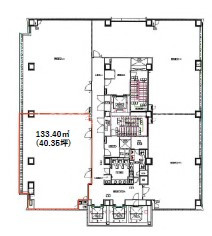
住所 大阪府大阪市西区北堀江1丁目2番19号 面積(平米) 133.38㎡
最寄り駅
【最寄り駅1】

大阪メトロ四つ橋線 四ツ橋駅  徒歩1分

【最寄り駅2】

大阪メトロ御堂筋線 心斎橋駅  徒歩4分

【最寄り駅3】

大阪メトロ長堀鶴見緑地線 西大橋駅  徒歩6分

【最寄り駅4】

大阪メトロ四つ橋線 なんば駅  徒歩9分

坪数 40.35坪
実行面積 100.00%
空調 個別
竣工 2009年02月01日
構造 鉄骨地上22階建地下1階
エレベーター基数 3 荷物用エレベーター基数 1
階数 地上 3階 退去日 退去日の詳細につきましては、お問い合わせください。
備考
ビル名
アステリオ北堀江
住所 12983
最寄り駅
【最寄り駅1】

大阪メトロ四つ橋線 四ツ橋駅  徒歩1分

【最寄り駅2】

大阪メトロ御堂筋線 心斎橋駅  徒歩4分

【最寄り駅3】

大阪メトロ長堀鶴見緑地線 西大橋駅  徒歩6分

【最寄り駅4】

大阪メトロ四つ橋線 なんば駅  徒歩9分

エレベーター基数 3
階数 3階
物件番号/物件ID 12983
面積(平米) 133.38㎡
坪数 40.35坪
実行面積 100.00%
空調 個別
竣工 2009年02月01日
構造 鉄骨地上22階建地下1階
荷物用エレベーター基数 1
退去日 退去日の詳細につきましては、お問い合わせください。
備考

アステリオ北堀江の募集価格

総額 坪単価
賃料 非公開 賃料 非公開
共益費 非公開 共益費 非公開
月額合計 非公開 月額合計 非公開
保証金/敷金 非公開 保証金/敷金 非公開
礼金 非公開 礼金 非公開
賃料条件補足事項 ゴミ捨て清掃会社原則強制・分割相談不可、1F2F店舗、3F~12F事務所 12Fマンションエントランス(入口別)
総額
賃料 非公開
共益費 非公開
月額合計 非公開
保証金/敷金 非公開
礼金 非公開
坪単価
賃料 非公開
共益費 非公開
月額合計 非公開
保証金/敷金 非公開
礼金 非公開
賃料条件補足事項 ゴミ捨て清掃会社原則強制・分割相談不可、1F2F店舗、3F~12F事務所 12Fマンションエントランス(入口別)

アステリオ北堀江のその他空室情報

階数 広さ 賃料合計(税別) 坪単価 保証金・敷金 礼金
4F 31.32坪 非公開 非公開 非公開 非公開
フロア詳細
フロア詳細
空室情報や物件見学などお気軽にお問い合わせください。
ESTATE AGENCY
株式会社エステートエージェンシー
定休日:日曜日・祝日 営業時間:09:00~19:00
でお問い合わせ(無料メール 簡単1 電話でお問い合わせ(無料)

アステリオ北堀江の基本情報

インフォメーション
アステリオ北堀江は、西区エリア(大阪市西区北堀江1丁目)にある、2009年竣工、地上22階地下1階建の賃貸オフィスビルです。最寄駅は、大阪メトロ四つ橋線 四ツ橋駅 徒歩1分のアクセス。四ツ橋筋沿いに面した四ツ橋駅直結の築浅物件です。バイク置き場完備、一階のエントランスは吹き抜けが有り開放感と洗礼されたデザイン。周辺お洒落なお店が立ち並ぶエリアでランチ時の楽しみも増えます。是非一度ご内覧下さいませ!その他、事務所、オフィス移転の事なら何でもご相談下さい。
※貸主様からのご要望の為、条件を未公開としている場合がございます。詳しくお聞きになりたい場合は、弊社までご連絡ください。
※賃料、共益費、礼金、その他費用には別途消費税が掛かります。
※上記金額は募集条件です。条件交渉などについてはお気軽にお問い合わせください。
※確認時点での情報のため、リアルタイム情報はお問合せください。

アステリオ北堀江の施設情報カテゴリ

1棟貸可能
駅直結
大型EV
大型駐車場
大通り沿い
傘いらず
貸会議室
空中店舗相談
ヴィンテージ・レトロ
シャワートイレ
セキュリティ
SOHO(住居兼事務所)
デザイナーズ・個性派
トイレ男女別
荷物EVあり
ハイグレードオフィス
ネット回線引込可
ビル内貸倉庫
免振・制振構造
有人警備
ランドマーク
リニューアル
フリースペース
レンタルオフィス
新耐震
駅近(出口
築浅
川沿い、公園沿い
自転車置場

自転車置場料金: ー 円

アステリオ北堀江のアクセスマップ

空室情報や物件見学などお気軽にお問い合わせください。
ESTATE AGENCY
株式会社エステートエージェンシー
定休日:日曜日・祝日 営業時間:09:00~19:00
でお問い合わせ(無料メール 簡単1 電話でお問い合わせ(無料)

よく似た物件

最近チェックした物件