フロア詳細情報

若杉センタービル別館(大阪府大阪市北区東天満2丁目8番1号)のフロア情報

空室状況はお電話一本でスムーズにご案内!まずはお気軽に0120-939-204へどうぞ。
でお問い合わせ(無料メール 簡単1
※上記の写真は人物等が映っている場合、修正・加工が施されています。
物件情報更新日: 2026/02/05

若杉センタービル別館の物件概要

ビル名
若杉センタービル別館
物件番号/物件ID 13540
住所 大阪府大阪市北区東天満2丁目8番1号 面積(平米) 83.30㎡
最寄り駅
【最寄り駅1】

大阪メトロ谷町線 南森町駅  徒歩4分

【最寄り駅2】

大阪メトロ堺筋線 扇町駅  徒歩9分

【最寄り駅3】

JR東西線 大阪天満宮駅  徒歩2分

【最寄り駅4】

JR大阪環状線 天満駅  徒歩10分

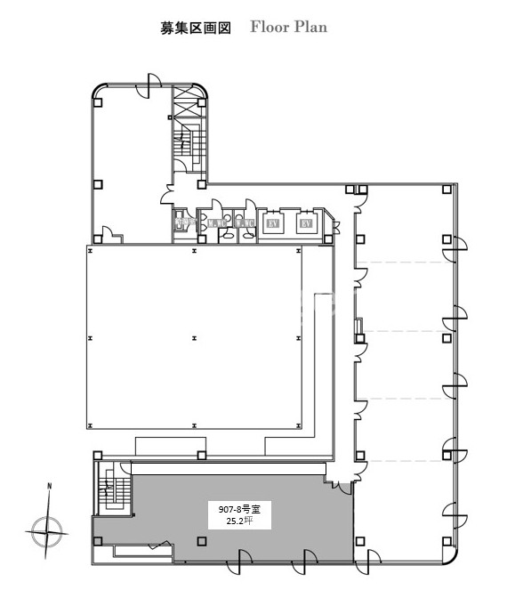
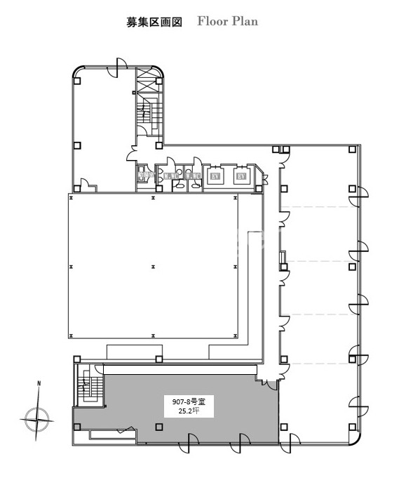
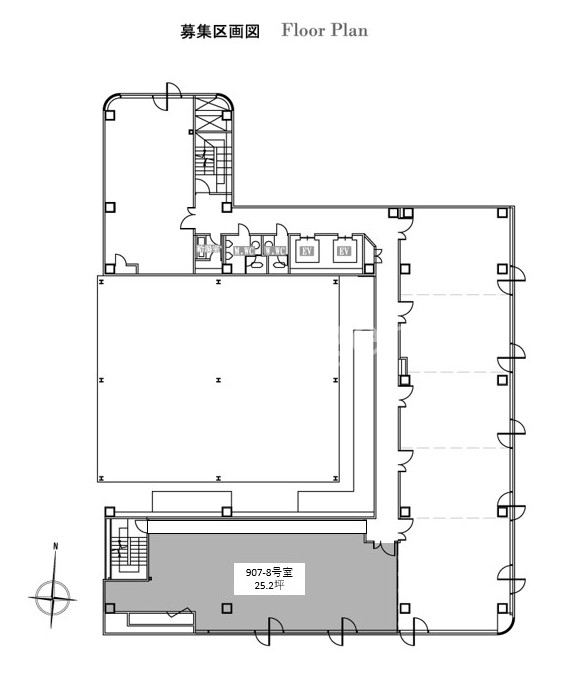
坪数 25.20坪
実行面積 100.00%
空調 個別
竣工 1991年07月01日
構造 鉄骨地上10階建地下0階
エレベーター基数 2 荷物用エレベーター基数
階数 地上 9階 退去日 退去日の詳細につきましては、お問い合わせください。
備考
ビル名
若杉センタービル別館
住所 13540
最寄り駅
【最寄り駅1】

大阪メトロ谷町線 南森町駅  徒歩4分

【最寄り駅2】

大阪メトロ堺筋線 扇町駅  徒歩9分

【最寄り駅3】

JR東西線 大阪天満宮駅  徒歩2分

【最寄り駅4】

JR大阪環状線 天満駅  徒歩10分

エレベーター基数 2
階数 9階
物件番号/物件ID 13540
面積(平米) 83.30㎡
坪数 25.20坪
実行面積 100.00%
空調 個別
竣工 1991年07月01日
構造 鉄骨地上10階建地下0階
荷物用エレベーター基数
退去日 退去日の詳細につきましては、お問い合わせください。
備考

若杉センタービル別館の募集価格

総額 坪単価
賃料 340,200円 賃料 13,500円
共益費 0円 共益費 0円
月額合計 340,200円 月額合計 13,500円
保証金/敷金 3,402,000円 保証金/敷金 135,000円
礼金 0円 礼金 0円
賃料条件補足事項 定期借家契約
総額
賃料 340,200円
共益費 0円
月額合計 340,200円
保証金/敷金 3,402,000円
礼金 0円
坪単価
賃料 13,500円
共益費 0円
月額合計 13,500円
保証金/敷金 135,000円
礼金 0円
賃料条件補足事項 定期借家契約
空室情報や物件見学などお気軽にお問い合わせください。
ESTATE AGENCY
株式会社エステートエージェンシー
定休日:日曜日・祝日 営業時間:09:00~19:00
でお問い合わせ(無料メール 簡単1 電話でお問い合わせ(無料)

若杉センタービル別館の基本情報

インフォメーション
若杉センタービル別館は、北区エリア(大阪市北区東天満2丁目)にある、1991年竣工、地上10階建の賃貸オフィスビルです。最寄駅は、JR東西線 大阪天満宮駅 徒歩1分のアクセス。是非一度ご内覧下さいませ!その他、事務所、オフィス移転の事なら何でもご相談下さい。
※貸主様からのご要望の為、条件を未公開としている場合がございます。詳しくお聞きになりたい場合は、弊社までご連絡ください。
※賃料、共益費、礼金、その他費用には別途消費税が掛かります。
※上記金額は募集条件です。条件交渉などについてはお気軽にお問い合わせください。
※確認時点での情報のため、リアルタイム情報はお問合せください。

若杉センタービル別館の施設情報カテゴリ

1棟貸可能
駅直結
大型EV
大型駐車場
大通り沿い
傘いらず
貸会議室
空中店舗相談
ヴィンテージ・レトロ
シャワートイレ
セキュリティ
SOHO(住居兼事務所)
デザイナーズ・個性派
トイレ男女別
荷物EVあり
ハイグレードオフィス
ネット回線引込可
ビル内貸倉庫
免振・制振構造
有人警備
ランドマーク
リニューアル
フリースペース
レンタルオフィス
新耐震
駅近(出口
築浅
川沿い、公園沿い
自転車置場

自転車置場料金: ー 円

若杉センタービル別館のアクセスマップ

空室情報や物件見学などお気軽にお問い合わせください。
ESTATE AGENCY
株式会社エステートエージェンシー
定休日:日曜日・祝日 営業時間:09:00~19:00
でお問い合わせ(無料メール 簡単1 電話でお問い合わせ(無料)

よく似た物件

最近チェックした物件