フロア詳細情報

堂島セントラル(大阪府大阪市北区堂島浜1丁目3番18号)のフロア情報

堂島セントラルのビル詳細を見る
空室状況はお電話一本でスムーズにご案内!まずはお気軽に0120-939-204へどうぞ。
でお問い合わせ(無料メール 簡単1
※上記の写真は人物等が映っている場合、修正・加工が施されています。
物件情報更新日: 2026/04/27

堂島セントラルの物件概要

ビル名
堂島セントラル
物件番号/物件ID 14285
住所 大阪府大阪市北区堂島浜1丁目3番18号 面積(平米) 46.28㎡
最寄り駅
【最寄り駅1】

大阪メトロ四つ橋線 西梅田駅  徒歩5分

【最寄り駅2】

JR東西線 北新地駅  徒歩5分

【最寄り駅3】

大阪メトロ御堂筋線 梅田駅  徒歩9分

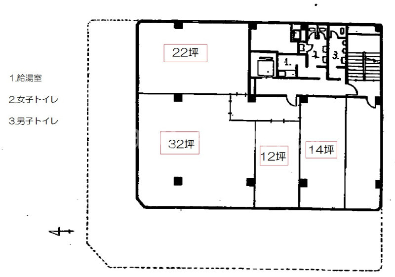
坪数 14.00坪
実行面積 100.00%
空調 個別・集中
竣工 1965年08月01日
構造 S造地上5階建地下2階
エレベーター基数 1 荷物用エレベーター基数
階数 地上 5階 退去日 退去日の詳細につきましては、お問い合わせください。
備考
ビル名
堂島セントラル
住所 14285
最寄り駅
【最寄り駅1】

大阪メトロ四つ橋線 西梅田駅  徒歩5分

【最寄り駅2】

JR東西線 北新地駅  徒歩5分

【最寄り駅3】

大阪メトロ御堂筋線 梅田駅  徒歩9分

エレベーター基数 1
階数 5階
物件番号/物件ID 14285
面積(平米) 46.28㎡
坪数 14.00坪
実行面積 100.00%
空調 個別・集中
竣工 1965年08月01日
構造 S造地上5階建地下2階
荷物用エレベーター基数
退去日 退去日の詳細につきましては、お問い合わせください。
備考

堂島セントラルの募集価格

総額 坪単価
賃料 168,000円 賃料 12,000円
共益費 0円 共益費 0円
月額合計 168,000円 月額合計 12,000円
保証金/敷金 1,680,000円 保証金/敷金 120,000円
礼金 0円 礼金 0円
賃料条件補足事項 敷引:40%
総額
賃料 168,000円
共益費 0円
月額合計 168,000円
保証金/敷金 1,680,000円
礼金 0円
坪単価
賃料 12,000円
共益費 0円
月額合計 12,000円
保証金/敷金 120,000円
礼金 0円
賃料条件補足事項 敷引:40%

堂島セントラルのその他空室情報

階数 広さ 賃料合計(税別) 坪単価 保証金・敷金 礼金
4F 62.50坪 750,000円 12,000円 7,500,000円 0円
フロア詳細
フロア詳細
2F 58.00坪 696,000円 12,000円 6,960,000円 0円
フロア詳細
フロア詳細
空室情報や物件見学などお気軽にお問い合わせください。
ESTATE AGENCY
株式会社エステートエージェンシー
定休日:日曜日・祝日 営業時間:09:00~19:00
でお問い合わせ(無料メール 簡単1 電話でお問い合わせ(無料)

堂島セントラルの基本情報

インフォメーション
堂島セントラルビルは、北区エリア(大阪市北区堂島浜1丁目)にある、1965年竣工、地上5階建の賃貸オフィスビルです。最寄駅は、大阪メトロ四ツ橋線西梅田駅徒歩8分のアクセス。是非一度ご内覧下さいませ!その他、事務所、オフィス移転の事なら何でもご相談下さい。
※貸主様からのご要望の為、条件を未公開としている場合がございます。詳しくお聞きになりたい場合は、弊社までご連絡ください。
※賃料、共益費、礼金、その他費用には別途消費税が掛かります。
※上記金額は募集条件です。条件交渉などについてはお気軽にお問い合わせください。
※確認時点での情報のため、リアルタイム情報はお問合せください。

堂島セントラルの施設情報カテゴリ

1棟貸可能
駅直結
大型EV
大型駐車場
大通り沿い
傘いらず
貸会議室
空中店舗相談
ヴィンテージ・レトロ
シャワートイレ
セキュリティ
SOHO(住居兼事務所)
デザイナーズ・個性派
トイレ男女別
荷物EVあり
ハイグレードオフィス
ネット回線引込可
ビル内貸倉庫
免振・制振構造
有人警備
ランドマーク
リニューアル
フリースペース
レンタルオフィス
新耐震
駅近(出口
築浅
川沿い、公園沿い
自転車置場

自転車置場料金: ー 円

堂島セントラルのアクセスマップ

空室情報や物件見学などお気軽にお問い合わせください。
ESTATE AGENCY
株式会社エステートエージェンシー
定休日:日曜日・祝日 営業時間:09:00~19:00
でお問い合わせ(無料メール 簡単1 電話でお問い合わせ(無料)

よく似た物件

申し訳ございません。
会員登録をお願い致します。

会員登録のメリット

  • 1、非公開物件情報のご紹介が可能です!
  • 2、ご希望条件をいただきましたら新着物件情報等を定期的に配信いたします!
  • 3、会員登録されたお客様にはご契約時に特別なプレゼントをご用意しております!
会員登録

※会員登録は同業者不可、メールアドレスは企業ドメインのみ
※GmailやYahooなどのフリーメールでは会員登録できないこともありますのでご了承ください。