フロア詳細情報

大阪国際学院扇町(大阪府大阪市北区天神橋4丁目7番16号)のフロア情報

大阪国際学院扇町のビル詳細を見る
空室状況はお電話一本でスムーズにご案内!まずはお気軽に0120-939-204へどうぞ。
でお問い合わせ(無料メール 簡単1
※上記の写真は人物等が映っている場合、修正・加工が施されています。
物件情報更新日: 2026/05/27

大阪国際学院扇町の物件概要

ビル名
大阪国際学院扇町
物件番号/物件ID 14336
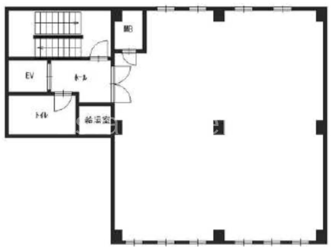
住所 大阪府大阪市北区天神橋4丁目7番16号 面積(平米) 198.41㎡
最寄り駅
【最寄り駅1】

大阪メトロ堺筋線 扇町駅  徒歩1分

【最寄り駅2】

JR大阪環状線 天満駅  徒歩2分

坪数 60.02坪
実行面積 100.00%
空調 個別
竣工 1974年11月01日
構造 地上9階建地下0階
エレベーター基数 1 荷物用エレベーター基数
階数 地上 6階 退去日 退去日の詳細につきましては、お問い合わせください。
備考
ビル名
大阪国際学院扇町
住所 14336
最寄り駅
【最寄り駅1】

大阪メトロ堺筋線 扇町駅  徒歩1分

【最寄り駅2】

JR大阪環状線 天満駅  徒歩2分

エレベーター基数 1
階数 6階
物件番号/物件ID 14336
面積(平米) 198.41㎡
坪数 60.02坪
実行面積 100.00%
空調 個別
竣工 1974年11月01日
構造 地上9階建地下0階
荷物用エレベーター基数
退去日 退去日の詳細につきましては、お問い合わせください。
備考

大阪国際学院扇町の募集価格

総額 坪単価
賃料 580,000円 賃料 9,663円
共益費 121,000円 共益費 2,016円
月額合計 701,000円 月額合計 11,679円
保証金/敷金 6,960,000円 保証金/敷金 115,961円
礼金 0円 礼金 0円
賃料条件補足事項
総額
賃料 580,000円
共益費 121,000円
月額合計 701,000円
保証金/敷金 6,960,000円
礼金 0円
坪単価
賃料 9,663円
共益費 2,016円
月額合計 11,679円
保証金/敷金 115,961円
礼金 0円
賃料条件補足事項
空室情報や物件見学などお気軽にお問い合わせください。
ESTATE AGENCY
株式会社エステートエージェンシー
定休日:日曜日・祝日 営業時間:09:00~19:00
でお問い合わせ(無料メール 簡単1 電話でお問い合わせ(無料)

大阪国際学院扇町の基本情報

インフォメーション
扇町ビルは、北区エリア(大阪市北区天神橋4丁目)にある、1974年竣工、地上9階建の賃貸オフィスビルです。最寄駅は、大阪メトロ堺筋線 扇町駅 徒歩1分のアクセス。是非一度ご内覧下さいませ!その他、事務所、オフィス移転の事なら何でもご相談下さい。
※貸主様からのご要望の為、条件を未公開としている場合がございます。詳しくお聞きになりたい場合は、弊社までご連絡ください。
※賃料、共益費、礼金、その他費用には別途消費税が掛かります。
※上記金額は募集条件です。条件交渉などについてはお気軽にお問い合わせください。
※確認時点での情報のため、リアルタイム情報はお問合せください。

大阪国際学院扇町の施設情報カテゴリ

1棟貸可能
駅直結
大型EV
大型駐車場
大通り沿い
傘いらず
貸会議室
空中店舗相談
ヴィンテージ・レトロ
シャワートイレ
セキュリティ
SOHO(住居兼事務所)
デザイナーズ・個性派
トイレ男女別
荷物EVあり
ハイグレードオフィス
ネット回線引込可
ビル内貸倉庫
免振・制振構造
有人警備
ランドマーク
リニューアル
フリースペース
レンタルオフィス
新耐震
駅近(出口
築浅
川沿い、公園沿い
自転車置場

自転車置場料金: ー 円

大阪国際学院扇町のアクセスマップ

空室情報や物件見学などお気軽にお問い合わせください。
ESTATE AGENCY
株式会社エステートエージェンシー
定休日:日曜日・祝日 営業時間:09:00~19:00
でお問い合わせ(無料メール 簡単1 電話でお問い合わせ(無料)

申し訳ございません。
会員登録をお願い致します。

会員登録のメリット

  • 1、非公開物件情報のご紹介が可能です!
  • 2、ご希望条件をいただきましたら新着物件情報等を定期的に配信いたします!
  • 3、会員登録されたお客様にはご契約時に特別なプレゼントをご用意しております!
会員登録

※会員登録は同業者不可、メールアドレスは企業ドメインのみ
※GmailやYahooなどのフリーメールでは会員登録できないこともありますのでご了承ください。