フロア詳細情報

エイト(大阪府大阪市北区豊崎3丁目6番11号)のフロア情報

エイトのビル詳細を見る
空室状況はお電話一本でスムーズにご案内!まずはお気軽に0120-939-204へどうぞ。
でお問い合わせ(無料メール 簡単1
※上記の写真は人物等が映っている場合、修正・加工が施されています。
物件情報更新日: 2026/04/17

エイトの物件概要

ビル名
エイト
物件番号/物件ID 14486
住所 大阪府大阪市北区豊崎3丁目6番11号 面積(平米) 26.77㎡
最寄り駅
【最寄り駅1】

大阪メトロ御堂筋線 中津駅  徒歩2分

【最寄り駅2】

阪急宝塚本線 中津駅  徒歩7分

【最寄り駅3】

阪急神戸本線 中津駅  徒歩7分

【最寄り駅4】

阪急宝塚本線 大阪梅田駅  徒歩8分

坪数 8.10坪
実行面積 100.00%
空調 個別
竣工 1986年04月01日
構造 SRC地上7階建地下0階
エレベーター基数 1 荷物用エレベーター基数
階数 地上 6階 退去日 退去日の詳細につきましては、お問い合わせください。
備考
ビル名
エイト
住所 14486
最寄り駅
【最寄り駅1】

大阪メトロ御堂筋線 中津駅  徒歩2分

【最寄り駅2】

阪急宝塚本線 中津駅  徒歩7分

【最寄り駅3】

阪急神戸本線 中津駅  徒歩7分

【最寄り駅4】

阪急宝塚本線 大阪梅田駅  徒歩8分

エレベーター基数 1
階数 6階
物件番号/物件ID 14486
面積(平米) 26.77㎡
坪数 8.10坪
実行面積 100.00%
空調 個別
竣工 1986年04月01日
構造 SRC地上7階建地下0階
荷物用エレベーター基数
退去日 退去日の詳細につきましては、お問い合わせください。
備考

エイトの募集価格

総額 坪単価
賃料 56,700円 賃料 7,000円
共益費 36,450円 共益費 4,500円
月額合計 93,150円 月額合計 11,500円
保証金/敷金 340,200円 保証金/敷金 42,000円
礼金 0円 礼金 0円
賃料条件補足事項 保証会社加入要、定期建物賃貸借契約事務所3年、店舗5年
総額
賃料 56,700円
共益費 36,450円
月額合計 93,150円
保証金/敷金 340,200円
礼金 0円
坪単価
賃料 7,000円
共益費 4,500円
月額合計 11,500円
保証金/敷金 42,000円
礼金 0円
賃料条件補足事項 保証会社加入要、定期建物賃貸借契約事務所3年、店舗5年

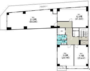
エイトのその他空室情報

階数 広さ 賃料合計(税別) 坪単価 保証金・敷金 礼金
7F 8.10坪 93,150円 11,500円 340,200円 0円
フロア詳細
フロア詳細
3F 49.70坪 571,550円 11,500円 2,091,873円 0円
フロア詳細
フロア詳細
2F 16.70坪 192,050円 11,500円 701,400円 0円
フロア詳細
フロア詳細
3F 16.70坪 192,050円 11,500円 701,400円 0円
フロア詳細
フロア詳細
空室情報や物件見学などお気軽にお問い合わせください。
ESTATE AGENCY
株式会社エステートエージェンシー
定休日:日曜日・祝日 営業時間:09:00~19:00
でお問い合わせ(無料メール 簡単1 電話でお問い合わせ(無料)

エイトの基本情報

インフォメーション
エイトビルは、北区エリア(大阪市北区豊崎3丁目)にある、1986年竣工、地上7階建の賃貸オフィスビルです。最寄駅は、大阪メトロ御堂筋線 中津駅 徒歩3分のアクセス。是非一度ご内覧下さいませ!その他、事務所、オフィス移転の事なら何でもご相談下さい。
※貸主様からのご要望の為、条件を未公開としている場合がございます。詳しくお聞きになりたい場合は、弊社までご連絡ください。
※賃料、共益費、礼金、その他費用には別途消費税が掛かります。
※上記金額は募集条件です。条件交渉などについてはお気軽にお問い合わせください。
※確認時点での情報のため、リアルタイム情報はお問合せください。

エイトの施設情報カテゴリ

1棟貸可能
駅直結
大型EV
大型駐車場
大通り沿い
傘いらず
貸会議室
空中店舗相談
ヴィンテージ・レトロ
シャワートイレ
セキュリティ
SOHO(住居兼事務所)
デザイナーズ・個性派
トイレ男女別
荷物EVあり
ハイグレードオフィス
ネット回線引込可
ビル内貸倉庫
免振・制振構造
有人警備
ランドマーク
リニューアル
フリースペース
レンタルオフィス
新耐震
駅近(出口
築浅
川沿い、公園沿い
自転車置場

自転車置場料金: ー 円

エイトのアクセスマップ

空室情報や物件見学などお気軽にお問い合わせください。
ESTATE AGENCY
株式会社エステートエージェンシー
定休日:日曜日・祝日 営業時間:09:00~19:00
でお問い合わせ(無料メール 簡単1 電話でお問い合わせ(無料)

よく似た物件