フロア詳細情報

商業第二(大阪府大阪市北区豊崎5丁目4番9号)のフロア情報

商業第二のビル詳細を見る
空室状況はお電話一本でスムーズにご案内!まずはお気軽に0120-939-204へどうぞ。
でお問い合わせ(無料メール 簡単1
※上記の写真は人物等が映っている場合、修正・加工が施されています。
物件情報更新日: 2026/03/10

商業第二の物件概要

ビル名
商業第二
物件番号/物件ID 14520
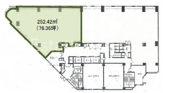
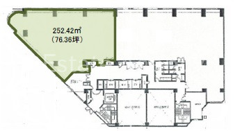
住所 大阪府大阪市北区豊崎5丁目4番9号 面積(平米) 252.42㎡
最寄り駅
【最寄り駅1】

大阪メトロ御堂筋線 中津駅  徒歩3分

【最寄り駅2】

阪急神戸本線 中津駅  徒歩8分

【最寄り駅3】

阪急宝塚本線 中津駅  徒歩8分

【最寄り駅4】

阪急神戸本線 大阪梅田駅  徒歩10分

坪数 76.36坪
実行面積 100.00%
空調 個別
竣工 1993年05月01日
構造 SRC地上12階建地下1階
エレベーター基数 4 荷物用エレベーター基数 1
階数 地上 5階 退去日 退去日の詳細につきましては、お問い合わせください。
備考
ビル名
商業第二
住所 14520
最寄り駅
【最寄り駅1】

大阪メトロ御堂筋線 中津駅  徒歩3分

【最寄り駅2】

阪急神戸本線 中津駅  徒歩8分

【最寄り駅3】

阪急宝塚本線 中津駅  徒歩8分

【最寄り駅4】

阪急神戸本線 大阪梅田駅  徒歩10分

エレベーター基数 4
階数 5階
物件番号/物件ID 14520
面積(平米) 252.42㎡
坪数 76.36坪
実行面積 100.00%
空調 個別
竣工 1993年05月01日
構造 SRC地上12階建地下1階
荷物用エレベーター基数 1
退去日 退去日の詳細につきましては、お問い合わせください。
備考

商業第二の募集価格

総額 坪単価
賃料 非公開 賃料 非公開
共益費 非公開 共益費 非公開
月額合計 非公開 月額合計 非公開
保証金/敷金 非公開 保証金/敷金 非公開
礼金 非公開 礼金 非公開
賃料条件補足事項
総額
賃料 非公開
共益費 非公開
月額合計 非公開
保証金/敷金 非公開
礼金 非公開
坪単価
賃料 非公開
共益費 非公開
月額合計 非公開
保証金/敷金 非公開
礼金 非公開
賃料条件補足事項

商業第二のその他空室情報

階数 広さ 賃料合計(税別) 坪単価 保証金・敷金 礼金
12F 39.14坪 非公開 非公開 非公開 非公開
フロア詳細
フロア詳細
12F 76.36坪 非公開 非公開 非公開 非公開
フロア詳細
フロア詳細
空室情報や物件見学などお気軽にお問い合わせください。
ESTATE AGENCY
株式会社エステートエージェンシー
定休日:日曜日・祝日 営業時間:09:00~19:00
でお問い合わせ(無料メール 簡単1 電話でお問い合わせ(無料)

商業第二の基本情報

インフォメーション
商業第二ビルは、北区エリア(大阪市北区豊崎5丁目)にある、1993年竣工、地上12階地下1階建の視認性の高い賃貸オフィスビルです。最寄駅は、大阪メトロ御堂筋線 中津駅 徒歩3分のアクセス。台形の形をしており、部分的にミラーガラスが用いられているため、太陽光が反射して目立ちます。エントランスからエレベーターホールまではゆったりとした造りで、来客時の印象が良いでしょう。エレベーターは3基設置されています。最寄の中津駅からはほぼ直線ルートでアクセスでき、はじめてでもご案内しやすい立地です。大通りに面すハイスペックビル。是非一度ご内覧下さいませ!その他、事務所、オフィス移転の事なら何でもご相談下さい。
※貸主様からのご要望の為、条件を未公開としている場合がございます。詳しくお聞きになりたい場合は、弊社までご連絡ください。
※賃料、共益費、礼金、その他費用には別途消費税が掛かります。
※上記金額は募集条件です。条件交渉などについてはお気軽にお問い合わせください。
※確認時点での情報のため、リアルタイム情報はお問合せください。

商業第二の施設情報カテゴリ

1棟貸可能
駅直結
大型EV
大型駐車場
大通り沿い
傘いらず
貸会議室
空中店舗相談
ヴィンテージ・レトロ
シャワートイレ
セキュリティ
SOHO(住居兼事務所)
デザイナーズ・個性派
トイレ男女別
荷物EVあり
ハイグレードオフィス
ネット回線引込可
ビル内貸倉庫
免振・制振構造
有人警備
ランドマーク
リニューアル
フリースペース
レンタルオフィス
新耐震
駅近(出口
築浅
川沿い、公園沿い
自転車置場

自転車置場料金: ー 円

商業第二のアクセスマップ

空室情報や物件見学などお気軽にお問い合わせください。
ESTATE AGENCY
株式会社エステートエージェンシー
定休日:日曜日・祝日 営業時間:09:00~19:00
でお問い合わせ(無料メール 簡単1 電話でお問い合わせ(無料)

最近チェックした物件