フロア詳細情報

新大阪第一生命(大阪府大阪市淀川区宮原3丁目5号24番)のフロア情報

新大阪第一生命のビル詳細を見る
空室状況はお電話一本でスムーズにご案内!まずはお気軽に0120-939-204へどうぞ。
でお問い合わせ(無料メール 簡単1
※上記の写真は人物等が映っている場合、修正・加工が施されています。
物件情報更新日: 2026/04/21

新大阪第一生命の物件概要

ビル名
新大阪第一生命
物件番号/物件ID 15009
住所 大阪府大阪市淀川区宮原3丁目5号24番 面積(平米) 95.70㎡
最寄り駅
【最寄り駅1】

大阪メトロ御堂筋線 新大阪駅  徒歩5分

【最寄り駅2】

JRおおさか東線 新大阪駅  徒歩6分

【最寄り駅3】

JR東海道本線 新大阪駅  徒歩8分

【最寄り駅4】

大阪メトロ御堂筋線 東三国駅  徒歩11分

坪数 28.95坪
実行面積 100.00%
空調 個別・集中
竣工 1986年11月01日
構造 SRC地上14階建地下2階
エレベーター基数 8 荷物用エレベーター基数 1
階数 地上 8階 退去日 退去日の詳細につきましては、お問い合わせください。
備考
ビル名
新大阪第一生命
住所 15009
最寄り駅
【最寄り駅1】

大阪メトロ御堂筋線 新大阪駅  徒歩5分

【最寄り駅2】

JRおおさか東線 新大阪駅  徒歩6分

【最寄り駅3】

JR東海道本線 新大阪駅  徒歩8分

【最寄り駅4】

大阪メトロ御堂筋線 東三国駅  徒歩11分

エレベーター基数 8
階数 8階
物件番号/物件ID 15009
面積(平米) 95.70㎡
坪数 28.95坪
実行面積 100.00%
空調 個別・集中
竣工 1986年11月01日
構造 SRC地上14階建地下2階
荷物用エレベーター基数 1
退去日 退去日の詳細につきましては、お問い合わせください。
備考

新大阪第一生命の募集価格

総額 坪単価
賃料 非公開 賃料 非公開
共益費 非公開 共益費 非公開
月額合計 非公開 月額合計 非公開
保証金/敷金 非公開 保証金/敷金 非公開
礼金 非公開 礼金 非公開
賃料条件補足事項 2階貸会議室あり
総額
賃料 非公開
共益費 非公開
月額合計 非公開
保証金/敷金 非公開
礼金 非公開
坪単価
賃料 非公開
共益費 非公開
月額合計 非公開
保証金/敷金 非公開
礼金 非公開
賃料条件補足事項 2階貸会議室あり

新大阪第一生命のその他空室情報

階数 広さ 賃料合計(税別) 坪単価 保証金・敷金 礼金
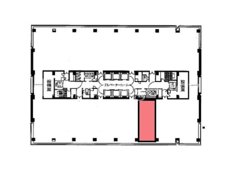
2F 28.95坪 非公開 非公開 非公開 非公開
フロア詳細
フロア詳細
9F 60.30坪 非公開 非公開 非公開 非公開
フロア詳細
フロア詳細
9F 28.95坪 非公開 非公開 非公開 非公開
フロア詳細
フロア詳細
空室情報や物件見学などお気軽にお問い合わせください。
ESTATE AGENCY
株式会社エステートエージェンシー
定休日:日曜日・祝日 営業時間:09:00~19:00
でお問い合わせ(無料メール 簡単1 電話でお問い合わせ(無料)

新大阪第一生命の基本情報

インフォメーション
この新大阪第一生命ビルは住所大阪府大阪市淀川区宮原3丁目5号24番の1986年竣工、地上14階建の賃貸オフィスビルです。最寄駅は、大阪メトロ御堂筋線新大阪駅徒歩5分のアクセス。設備情報は大型ビル、大通り沿い、貸会議室、喫煙室、自転車置場、シャワートイレ、セキュリティ、24時間利用可能、光回線、ランドマーク、リフレッシュルーム。是非一度ご内覧下さいませ! その他、事務所、オフィス移転、不動産の事なら何でもお気軽にご相談下さい。
※貸主様からのご要望の為、条件を未公開としている場合がございます。詳しくお聞きになりたい場合は、弊社までご連絡ください。
※賃料、共益費、礼金、その他費用には別途消費税が掛かります。
※上記金額は募集条件です。条件交渉などについてはお気軽にお問い合わせください。
※確認時点での情報のため、リアルタイム情報はお問合せください。

新大阪第一生命の施設情報カテゴリ

1棟貸可能
駅直結
大型EV
大型駐車場
大通り沿い
傘いらず
貸会議室
空中店舗相談
ヴィンテージ・レトロ
シャワートイレ
セキュリティ
SOHO(住居兼事務所)
デザイナーズ・個性派
トイレ男女別
荷物EVあり
ハイグレードオフィス
ネット回線引込可
ビル内貸倉庫
免振・制振構造
有人警備
ランドマーク
リニューアル
フリースペース
レンタルオフィス
新耐震
駅近(出口
築浅
川沿い、公園沿い
自転車置場

自転車置場料金: ー 円

新大阪第一生命のアクセスマップ

空室情報や物件見学などお気軽にお問い合わせください。
ESTATE AGENCY
株式会社エステートエージェンシー
定休日:日曜日・祝日 営業時間:09:00~19:00
でお問い合わせ(無料メール 簡単1 電話でお問い合わせ(無料)