フロア詳細情報

MF西梅田(大阪府大阪市福島区福島5丁目1番26号)のフロア情報

MF西梅田のビル詳細を見る
空室状況はお電話一本でスムーズにご案内!まずはお気軽に0120-939-204へどうぞ。
でお問い合わせ(無料メール 簡単1
※上記の写真は人物等が映っている場合、修正・加工が施されています。
物件情報更新日: 2026/02/20

MF西梅田の物件概要

ビル名
MF西梅田
物件番号/物件ID 15515
住所 大阪府大阪市福島区福島5丁目1番26号 面積(平米) 93.75㎡
最寄り駅
【最寄り駅1】

阪神本線 福島駅  徒歩3分

【最寄り駅2】

JR大阪環状線 福島駅  徒歩3分

【最寄り駅3】

JR東西線 新福島駅  徒歩5分

【最寄り駅4】

京阪中之島線 渡辺橋駅  徒歩7分

坪数 28.36坪
実行面積 100.00%
空調 個別
竣工 2010年02月01日
構造 S造地上9階建地下0階
エレベーター基数 1 荷物用エレベーター基数
階数 地上 6階 退去日 退去日の詳細につきましては、お問い合わせください。
備考
ビル名
MF西梅田
住所 15515
最寄り駅
【最寄り駅1】

阪神本線 福島駅  徒歩3分

【最寄り駅2】

JR大阪環状線 福島駅  徒歩3分

【最寄り駅3】

JR東西線 新福島駅  徒歩5分

【最寄り駅4】

京阪中之島線 渡辺橋駅  徒歩7分

エレベーター基数 1
階数 6階
物件番号/物件ID 15515
面積(平米) 93.75㎡
坪数 28.36坪
実行面積 100.00%
空調 個別
竣工 2010年02月01日
構造 S造地上9階建地下0階
荷物用エレベーター基数
退去日 退去日の詳細につきましては、お問い合わせください。
備考

MF西梅田の募集価格

総額 坪単価
賃料 非公開 賃料 非公開
共益費 非公開 共益費 非公開
月額合計 非公開 月額合計 非公開
保証金/敷金 非公開 保証金/敷金 非公開
礼金 非公開 礼金 非公開
賃料条件補足事項 定借期間要確認
総額
賃料 非公開
共益費 非公開
月額合計 非公開
保証金/敷金 非公開
礼金 非公開
坪単価
賃料 非公開
共益費 非公開
月額合計 非公開
保証金/敷金 非公開
礼金 非公開
賃料条件補足事項 定借期間要確認

MF西梅田のその他空室情報

階数 広さ 賃料合計(税別) 坪単価 保証金・敷金 礼金
5F 18.29坪 非公開 非公開 非公開 非公開
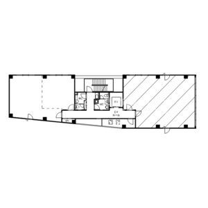
フロア詳細
フロア詳細
空室情報や物件見学などお気軽にお問い合わせください。
ESTATE AGENCY
株式会社エステートエージェンシー
定休日:日曜日・祝日 営業時間:09:00~19:00
でお問い合わせ(無料メール 簡単1 電話でお問い合わせ(無料)

MF西梅田の基本情報

インフォメーション
MF西梅田ビルは、福島区エリア(大阪市福島区福島5丁目)にある、2010年竣工、地上9階建の賃貸オフィスビルです。最寄駅は、JR東西線 新福島駅 徒歩2分のアクセス。是非一度ご内覧下さいませ!その他、事務所、オフィス移転の事なら何でもご相談下さい。
※貸主様からのご要望の為、条件を未公開としている場合がございます。詳しくお聞きになりたい場合は、弊社までご連絡ください。
※賃料、共益費、礼金、その他費用には別途消費税が掛かります。
※上記金額は募集条件です。条件交渉などについてはお気軽にお問い合わせください。
※確認時点での情報のため、リアルタイム情報はお問合せください。

MF西梅田の施設情報カテゴリ

1棟貸可能
駅直結
大型EV
大型駐車場
大通り沿い
傘いらず
貸会議室
空中店舗相談
ヴィンテージ・レトロ
シャワートイレ
セキュリティ
SOHO(住居兼事務所)
デザイナーズ・個性派
トイレ男女別
荷物EVあり
ハイグレードオフィス
ネット回線引込可
ビル内貸倉庫
免振・制振構造
有人警備
ランドマーク
リニューアル
フリースペース
レンタルオフィス
新耐震
駅近(出口
築浅
川沿い、公園沿い
自転車置場

自転車置場料金: ー 円

MF西梅田のアクセスマップ

空室情報や物件見学などお気軽にお問い合わせください。
ESTATE AGENCY
株式会社エステートエージェンシー
定休日:日曜日・祝日 営業時間:09:00~19:00
でお問い合わせ(無料メール 簡単1 電話でお問い合わせ(無料)

申し訳ございません。
会員登録をお願い致します。

会員登録のメリット

  • 1、非公開物件情報のご紹介が可能です!
  • 2、ご希望条件をいただきましたら新着物件情報等を定期的に配信いたします!
  • 3、会員登録されたお客様にはご契約時に特別なプレゼントをご用意しております!
会員登録

※会員登録は同業者不可、メールアドレスは企業ドメインのみ
※GmailやYahooなどのフリーメールでは会員登録できないこともありますのでご了承ください。