フロア詳細情報

大昇(大阪府吹田市江坂町1丁目12番28号)のフロア情報

大昇のビル詳細を見る
空室状況はお電話一本でスムーズにご案内!まずはお気軽に0120-939-204へどうぞ。
でお問い合わせ(無料メール 簡単1
※上記の写真は人物等が映っている場合、修正・加工が施されています。
物件情報更新日: 2026/04/20

大昇の物件概要

ビル名
大昇
物件番号/物件ID 15598
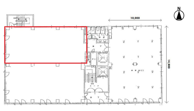
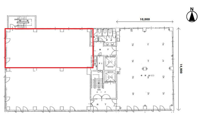
住所 大阪府吹田市江坂町1丁目12番28号 面積(平米) 102.08㎡
最寄り駅
【最寄り駅1】

北大阪急行電鉄 江坂駅  徒歩3分

【最寄り駅2】

大阪メトロ御堂筋線 江坂駅  徒歩3分

坪数 30.88坪
実行面積 100.00%
空調 個別
竣工 1981年03月01日
構造 S造地上8階建
エレベーター基数 2 荷物用エレベーター基数
階数 地上 5階 退去日 退去日の詳細につきましては、お問い合わせください。
備考
ビル名
大昇
住所 15598
最寄り駅
【最寄り駅1】

北大阪急行電鉄 江坂駅  徒歩3分

【最寄り駅2】

大阪メトロ御堂筋線 江坂駅  徒歩3分

エレベーター基数 2
階数 5階
物件番号/物件ID 15598
面積(平米) 102.08㎡
坪数 30.88坪
実行面積 100.00%
空調 個別
竣工 1981年03月01日
構造 S造地上8階建
荷物用エレベーター基数
退去日 退去日の詳細につきましては、お問い合わせください。
備考

大昇の募集価格

総額 坪単価
賃料 185,280円 賃料 6,000円
共益費 61,760円 共益費 2,000円
月額合計 247,040円 月額合計 8,000円
保証金/敷金 1,111,680円 保証金/敷金 36,000円
礼金 0円 礼金 0円
賃料条件補足事項 引3ヶ月
総額
賃料 185,280円
共益費 61,760円
月額合計 247,040円
保証金/敷金 1,111,680円
礼金 0円
坪単価
賃料 6,000円
共益費 2,000円
月額合計 8,000円
保証金/敷金 36,000円
礼金 0円
賃料条件補足事項 引3ヶ月

大昇のその他空室情報

階数 広さ 賃料合計(税別) 坪単価 保証金・敷金 礼金
6F 29.34坪 234,720円 8,000円 1,056,240円 0円
フロア詳細
フロア詳細
空室情報や物件見学などお気軽にお問い合わせください。
ESTATE AGENCY
株式会社エステートエージェンシー
定休日:日曜日・祝日 営業時間:09:00~19:00
でお問い合わせ(無料メール 簡単1 電話でお問い合わせ(無料)

大昇の基本情報

インフォメーション
大昇ビルは、吹田市エリア(吹田市江坂町1丁目)にある、1981年竣工、地上8階建の賃貸オフィスビルです。最寄駅は北大阪急行電鉄 江坂駅 徒歩3分のアクセス。是非一度ご内覧下さいませ!その他、事務所、オフィス移転の事なら何でもご相談下さい。
※貸主様からのご要望の為、条件を未公開としている場合がございます。詳しくお聞きになりたい場合は、弊社までご連絡ください。
※賃料、共益費、礼金、その他費用には別途消費税が掛かります。
※上記金額は募集条件です。条件交渉などについてはお気軽にお問い合わせください。
※確認時点での情報のため、リアルタイム情報はお問合せください。

大昇の施設情報カテゴリ

1棟貸可能
駅直結
大型EV
大型駐車場
大通り沿い
傘いらず
貸会議室
空中店舗相談
ヴィンテージ・レトロ
シャワートイレ
セキュリティ
SOHO(住居兼事務所)
デザイナーズ・個性派
トイレ男女別
荷物EVあり
ハイグレードオフィス
ネット回線引込可
ビル内貸倉庫
免振・制振構造
有人警備
ランドマーク
リニューアル
フリースペース
レンタルオフィス
新耐震
駅近(出口
築浅
川沿い、公園沿い
自転車置場

自転車置場料金: ー 円

大昇のアクセスマップ

空室情報や物件見学などお気軽にお問い合わせください。
ESTATE AGENCY
株式会社エステートエージェンシー
定休日:日曜日・祝日 営業時間:09:00~19:00
でお問い合わせ(無料メール 簡単1 電話でお問い合わせ(無料)

よく似た物件

申し訳ございません。
会員登録をお願い致します。

会員登録のメリット

  • 1、非公開物件情報のご紹介が可能です!
  • 2、ご希望条件をいただきましたら新着物件情報等を定期的に配信いたします!
  • 3、会員登録されたお客様にはご契約時に特別なプレゼントをご用意しております!
会員登録

※会員登録は同業者不可、メールアドレスは企業ドメインのみ
※GmailやYahooなどのフリーメールでは会員登録できないこともありますのでご了承ください。