フロア詳細情報

天野(大阪府大阪市北区豊崎7丁目2番35号)のフロア情報

天野のビル詳細を見る
空室状況はお電話一本でスムーズにご案内!まずはお気軽に0120-939-204へどうぞ。
でお問い合わせ(無料メール 簡単1
※上記の写真は人物等が映っている場合、修正・加工が施されています。
物件情報更新日: 2026/03/13

天野の物件概要

ビル名
天野
物件番号/物件ID 15862
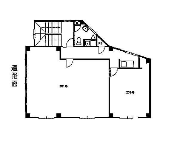
住所 大阪府大阪市北区豊崎7丁目2番35号 面積(平米) 55.57㎡
最寄り駅
【最寄り駅1】

大阪メトロ御堂筋線 中津駅  徒歩3分

【最寄り駅2】

阪急神戸本線 中津駅  徒歩9分

坪数 16.81坪
実行面積
空調 個別
竣工 1982年09月01日
構造 鉄骨地上4階建地下0階
エレベーター基数 荷物用エレベーター基数
階数 地上 2階 退去日 退去日の詳細につきましては、お問い合わせください。
備考
ビル名
天野
住所 15862
最寄り駅
【最寄り駅1】

大阪メトロ御堂筋線 中津駅  徒歩3分

【最寄り駅2】

阪急神戸本線 中津駅  徒歩9分

エレベーター基数
階数 2階
物件番号/物件ID 15862
面積(平米) 55.57㎡
坪数 16.81坪
実行面積
空調 個別
竣工 1982年09月01日
構造 鉄骨地上4階建地下0階
荷物用エレベーター基数
退去日 退去日の詳細につきましては、お問い合わせください。
備考

天野の募集価格

総額 坪単価
賃料 136,272円 賃料 8,107円
共益費 15,000円 共益費 893円
月額合計 151,272円 月額合計 9,000円
保証金/敷金 136,272円 保証金/敷金 8,107円
礼金 408,816円 礼金 24,320円
賃料条件補足事項 業種相談応(飲食店不可)、保証会社加入要
総額
賃料 136,272円
共益費 15,000円
月額合計 151,272円
保証金/敷金 136,272円
礼金 408,816円
坪単価
賃料 8,107円
共益費 893円
月額合計 9,000円
保証金/敷金 8,107円
礼金 24,320円
賃料条件補足事項 業種相談応(飲食店不可)、保証会社加入要
空室情報や物件見学などお気軽にお問い合わせください。
ESTATE AGENCY
株式会社エステートエージェンシー
定休日:日曜日・祝日 営業時間:09:00~19:00
でお問い合わせ(無料メール 簡単1 電話でお問い合わせ(無料)

天野の基本情報

インフォメーション
天野ビルは、北区エリア(大阪市北区豊崎7丁目)にある、1982年竣工、地上4階建の賃貸オフィスビルです。最寄駅は、大阪メトロ御堂筋線中津駅徒歩3分のアクセス。是非一度ご内覧下さいませ!その他、事務所、オフィス移転の事なら何でもご相談下さい。
※貸主様からのご要望の為、条件を未公開としている場合がございます。詳しくお聞きになりたい場合は、弊社までご連絡ください。
※賃料、共益費、礼金、その他費用には別途消費税が掛かります。
※上記金額は募集条件です。条件交渉などについてはお気軽にお問い合わせください。
※確認時点での情報のため、リアルタイム情報はお問合せください。

天野の施設情報カテゴリ

1棟貸可能
駅直結
大型EV
大型駐車場
大通り沿い
傘いらず
貸会議室
空中店舗相談
ヴィンテージ・レトロ
シャワートイレ
セキュリティ
SOHO(住居兼事務所)
デザイナーズ・個性派
トイレ男女別
荷物EVあり
ハイグレードオフィス
ネット回線引込可
ビル内貸倉庫
免振・制振構造
有人警備
ランドマーク
リニューアル
フリースペース
レンタルオフィス
新耐震
駅近(出口
築浅
川沿い、公園沿い
自転車置場

自転車置場料金: ー 円

天野のアクセスマップ

空室情報や物件見学などお気軽にお問い合わせください。
ESTATE AGENCY
株式会社エステートエージェンシー
定休日:日曜日・祝日 営業時間:09:00~19:00
でお問い合わせ(無料メール 簡単1 電話でお問い合わせ(無料)

よく似た物件