フロア詳細情報

南森町パーク(大阪府大阪市北区西天満5丁目1番3号)のフロア情報

南森町パークのビル詳細を見る
空室状況はお電話一本でスムーズにご案内!まずはお気軽に0120-939-204へどうぞ。
でお問い合わせ(無料メール 簡単1
※上記の写真は人物等が映っている場合、修正・加工が施されています。
物件情報更新日: 2025/11/05

南森町パークの物件概要

ビル名
南森町パーク
物件番号/物件ID 13869
住所 大阪府大阪市北区西天満5丁目1番3号 面積(平米) 29.75㎡
最寄り駅
【最寄り駅1】

大阪メトロ谷町線 南森町駅  徒歩2分

【最寄り駅2】

大阪メトロ堺筋線 扇町駅  徒歩8分

【最寄り駅3】

大阪メトロ堺筋線 北浜駅  徒歩9分

【最寄り駅4】

JR東西線 大阪天満宮駅  徒歩5分

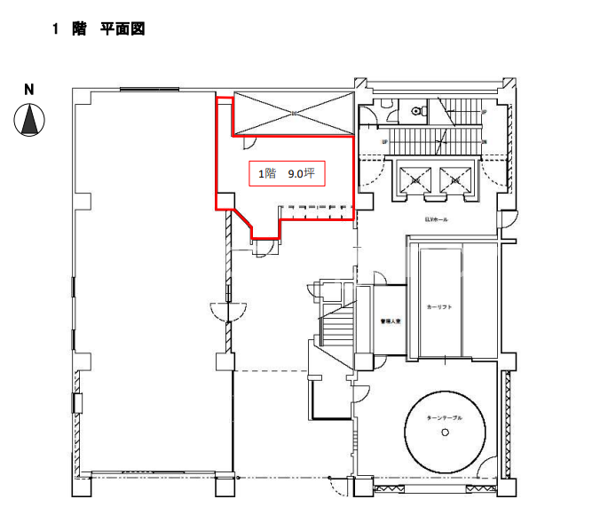
坪数 9.00坪
実行面積 100.00%
空調 個別
竣工 1978年10月01日
構造 SRC地上9階建地下0階
エレベーター基数 2 荷物用エレベーター基数
階数 地上 1階 退去日 退去日の詳細につきましては、お問い合わせください。
備考
ビル名
南森町パーク
住所 13869
最寄り駅
【最寄り駅1】

大阪メトロ谷町線 南森町駅  徒歩2分

【最寄り駅2】

大阪メトロ堺筋線 扇町駅  徒歩8分

【最寄り駅3】

大阪メトロ堺筋線 北浜駅  徒歩9分

【最寄り駅4】

JR東西線 大阪天満宮駅  徒歩5分

エレベーター基数 2
階数 1階
物件番号/物件ID 13869
面積(平米) 29.75㎡
坪数 9.00坪
実行面積 100.00%
空調 個別
竣工 1978年10月01日
構造 SRC地上9階建地下0階
荷物用エレベーター基数
退去日 退去日の詳細につきましては、お問い合わせください。
備考

南森町パークの募集価格

総額 坪単価
賃料 153,000円 賃料 17,000円
共益費 27,000円 共益費 3,000円
月額合計 180,000円 月額合計 20,000円
保証金/敷金 1,800,000円 保証金/敷金 200,000円
礼金 0円 礼金 0円
賃料条件補足事項
総額
賃料 153,000円
共益費 27,000円
月額合計 180,000円
保証金/敷金 1,800,000円
礼金 0円
坪単価
賃料 17,000円
共益費 3,000円
月額合計 20,000円
保証金/敷金 200,000円
礼金 0円
賃料条件補足事項

南森町パークのその他空室情報

階数 広さ 賃料合計(税別) 坪単価 保証金・敷金 礼金
2F 44.70坪 894,000円 20,000円 8,940,000円 0円
フロア詳細
フロア詳細
7F 12.00坪 240,000円 20,000円 2,400,000円 0円
フロア詳細
フロア詳細
空室情報や物件見学などお気軽にお問い合わせください。
ESTATE AGENCY
株式会社エステートエージェンシー
定休日:日曜日・祝日 営業時間:09:00~19:00
でお問い合わせ(無料メール 簡単1 電話でお問い合わせ(無料)

南森町パークの基本情報

インフォメーション
南森町パークビルは、北区エリア(大阪市北区西天満5丁目)にある、1978年竣工、地上9階地下1階建の賃貸オフィスビルです。最寄駅は、大阪メトロ谷町線 南森町駅 徒歩2分のアクセス。大通り沿い。耐震工事済みです。是非一度ご内覧下さいませ!その他、事務所、オフィス移転の事なら何でもご相談下さい。
※貸主様からのご要望の為、条件を未公開としている場合がございます。詳しくお聞きになりたい場合は、弊社までご連絡ください。
※賃料、共益費、礼金、その他費用には別途消費税が掛かります。
※上記金額は募集条件です。条件交渉などについてはお気軽にお問い合わせください。

南森町パークの施設情報カテゴリ

1棟貸可能
駅直結
大型EV
大型駐車場
大通り沿い
傘いらず
貸会議室
空中店舗相談
ヴィンテージ・レトロ
シャワートイレ
セキュリティ
SOHO(住居兼事務所)
デザイナーズ・個性派
トイレ男女別
荷物EVあり
ハイグレードオフィス
ネット回線引込可
ビル内貸倉庫
免振・制振構造
有人警備
ランドマーク
リニューアル
フリースペース
レンタルオフィス
新耐震
駅近(出口
築浅
川沿い、公園沿い
自転車置場

自転車置場料金: ー 円

南森町パークのアクセスマップ

空室情報や物件見学などお気軽にお問い合わせください。
ESTATE AGENCY
株式会社エステートエージェンシー
定休日:日曜日・祝日 営業時間:09:00~19:00
でお問い合わせ(無料メール 簡単1 電話でお問い合わせ(無料)

よく似た物件

最近チェックした物件