フロア詳細情報

明海三宮(兵庫県神戸市中央区京町丁目なし76番1号)のフロア情報

明海三宮のビル詳細を見る
空室状況はお電話一本でスムーズにご案内!まずはお気軽に0120-939-204へどうぞ。
でお問い合わせ(無料メール 簡単1
※上記の写真は人物等が映っている場合、修正・加工が施されています。
物件情報更新日: 2026/02/16

明海三宮の物件概要

ビル名
明海三宮
物件番号/物件ID 18282
住所 兵庫県神戸市中央区京町丁目なし76番1号 面積(平米) 54.01㎡
最寄り駅
【最寄り駅1】

夢かもめ 三宮・花時計前駅  徒歩4分

【最寄り駅2】

夢かもめ 旧居留地・大丸前駅  徒歩4分

【最寄り駅3】

阪急神戸本線 神戸三宮駅  徒歩5分

【最寄り駅4】

神戸高速東西線 神戸三宮駅  徒歩5分

坪数 16.34坪
実行面積
空調 個別
竣工 1965年09月01日
構造 SRC造地上8階建地下1階
エレベーター基数 2 荷物用エレベーター基数
階数 地上 5階 退去日 退去日の詳細につきましては、お問い合わせください。
備考
ビル名
明海三宮
住所 18282
最寄り駅
【最寄り駅1】

夢かもめ 三宮・花時計前駅  徒歩4分

【最寄り駅2】

夢かもめ 旧居留地・大丸前駅  徒歩4分

【最寄り駅3】

阪急神戸本線 神戸三宮駅  徒歩5分

【最寄り駅4】

神戸高速東西線 神戸三宮駅  徒歩5分

エレベーター基数 2
階数 5階
物件番号/物件ID 18282
面積(平米) 54.01㎡
坪数 16.34坪
実行面積
空調 個別
竣工 1965年09月01日
構造 SRC造地上8階建地下1階
荷物用エレベーター基数
退去日 退去日の詳細につきましては、お問い合わせください。
備考

明海三宮の募集価格

総額 坪単価
賃料 130,720円 賃料 8,000円
共益費 49,020円 共益費 3,000円
月額合計 179,740円 月額合計 11,000円
保証金/敷金 1,307,200円 保証金/敷金 80,000円
礼金 0円 礼金 0円
賃料条件補足事項
総額
賃料 130,720円
共益費 49,020円
月額合計 179,740円
保証金/敷金 1,307,200円
礼金 0円
坪単価
賃料 8,000円
共益費 3,000円
月額合計 11,000円
保証金/敷金 80,000円
礼金 0円
賃料条件補足事項

明海三宮のその他空室情報

階数 広さ 賃料合計(税別) 坪単価 保証金・敷金 礼金
1F 78.85坪 1,971,250円 25,000円 29,568,750円 0円
フロア詳細
フロア詳細
3F 15.73坪 173,030円 11,000円 1,258,400円 0円
フロア詳細
フロア詳細
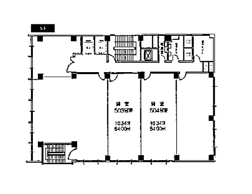
5F 16.66坪 183,260円 11,000円 1,332,800円 0円
フロア詳細
フロア詳細
空室情報や物件見学などお気軽にお問い合わせください。
ESTATE AGENCY
株式会社エステートエージェンシー
定休日:日曜日・祝日 営業時間:09:00~19:00
でお問い合わせ(無料メール 簡単1 電話でお問い合わせ(無料)

明海三宮の基本情報

インフォメーション
この明海三宮ビルは住所兵庫県神戸市中央区京町76番1号の1965年竣工、地上8階建の賃貸オフィスビルです。最寄駅は、夢かもめ三宮・花時計前駅徒歩4分のアクセス。設備情報はセキュリティ、トイレ男女別、24時間利用可能、光回線。是非一度ご内覧下さいませ! その他、事務所、オフィス移転、不動産の事なら何でもお気軽にご相談下さい。
※貸主様からのご要望の為、条件を未公開としている場合がございます。詳しくお聞きになりたい場合は、弊社までご連絡ください。
※賃料、共益費、礼金、その他費用には別途消費税が掛かります。
※上記金額は募集条件です。条件交渉などについてはお気軽にお問い合わせください。
※確認時点での情報のため、リアルタイム情報はお問合せください。

明海三宮の施設情報カテゴリ

1棟貸可能
駅直結
大型EV
大型駐車場
大通り沿い
傘いらず
貸会議室
空中店舗相談
ヴィンテージ・レトロ
シャワートイレ
セキュリティ
SOHO(住居兼事務所)
デザイナーズ・個性派
トイレ男女別
荷物EVあり
ハイグレードオフィス
ネット回線引込可
ビル内貸倉庫
免振・制振構造
有人警備
ランドマーク
リニューアル
フリースペース
レンタルオフィス
新耐震
駅近(出口
築浅
川沿い、公園沿い
自転車置場

自転車置場料金: ー 円

明海三宮のアクセスマップ

空室情報や物件見学などお気軽にお問い合わせください。
ESTATE AGENCY
株式会社エステートエージェンシー
定休日:日曜日・祝日 営業時間:09:00~19:00
でお問い合わせ(無料メール 簡単1 電話でお問い合わせ(無料)

よく似た物件

最近チェックした物件

申し訳ございません。
会員登録をお願い致します。

会員登録のメリット

  • 1、非公開物件情報のご紹介が可能です!
  • 2、ご希望条件をいただきましたら新着物件情報等を定期的に配信いたします!
  • 3、会員登録されたお客様にはご契約時に特別なプレゼントをご用意しております!
会員登録

※会員登録は同業者不可、メールアドレスは企業ドメインのみ
※GmailやYahooなどのフリーメールでは会員登録できないこともありますのでご了承ください。