フロア詳細情報

神戸マンション(兵庫県神戸市中央区山本通2丁目14番18号)のフロア情報

神戸マンションのビル詳細を見る
空室状況はお電話一本でスムーズにご案内!まずはお気軽に0120-939-204へどうぞ。
でお問い合わせ(無料メール 簡単1
※上記の写真は人物等が映っている場合、修正・加工が施されています。
物件情報更新日: 2026/04/20

神戸マンションの物件概要

ビル名
神戸マンション
物件番号/物件ID 18729
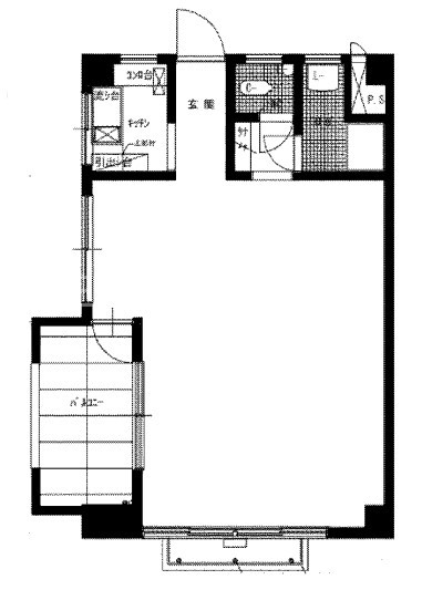
住所 兵庫県神戸市中央区山本通2丁目14番18号 面積(平米) 40.49㎡
最寄り駅
【最寄り駅1】

神戸市営地下鉄西神・山手線 三宮駅  徒歩8分

【最寄り駅2】

JR東海道本線 三ノ宮駅  徒歩8分

【最寄り駅3】

ポートアイランド線 三宮駅  徒歩8分

【最寄り駅4】

神戸高速東西線 神戸三宮駅  徒歩9分

坪数 12.25坪
実行面積 100.00%
空調 個別
竣工 1962年05月01日
構造 RC地上4階建
エレベーター基数 荷物用エレベーター基数
階数 地上 2階 退去日 退去日の詳細につきましては、お問い合わせください。
備考 外壁改修工事完了済み
ビル名
神戸マンション
住所 18729
最寄り駅
【最寄り駅1】

神戸市営地下鉄西神・山手線 三宮駅  徒歩8分

【最寄り駅2】

JR東海道本線 三ノ宮駅  徒歩8分

【最寄り駅3】

ポートアイランド線 三宮駅  徒歩8分

【最寄り駅4】

神戸高速東西線 神戸三宮駅  徒歩9分

エレベーター基数
階数 2階
物件番号/物件ID 18729
面積(平米) 40.49㎡
坪数 12.25坪
実行面積 100.00%
空調 個別
竣工 1962年05月01日
構造 RC地上4階建
荷物用エレベーター基数
退去日 退去日の詳細につきましては、お問い合わせください。
備考 外壁改修工事完了済み

神戸マンションの募集価格

総額 坪単価
賃料 93,750円 賃料 7,653円
共益費 12,250円 共益費 1,000円
月額合計 106,000円 月額合計 8,653円
保証金/敷金 0円 保証金/敷金 0円
礼金 0円 礼金 0円
賃料条件補足事項 敷引無
総額
賃料 93,750円
共益費 12,250円
月額合計 106,000円
保証金/敷金 0円
礼金 0円
坪単価
賃料 7,653円
共益費 1,000円
月額合計 8,653円
保証金/敷金 0円
礼金 0円
賃料条件補足事項 敷引無
空室情報や物件見学などお気軽にお問い合わせください。
ESTATE AGENCY
株式会社エステートエージェンシー
定休日:日曜日・祝日 営業時間:09:00~19:00
でお問い合わせ(無料メール 簡単1 電話でお問い合わせ(無料)

神戸マンションの基本情報

インフォメーション
この神戸マンションビルは住所兵庫県神戸市中央区山本通14番18号、賃貸オフィスビルです。最寄駅は、神戸市営地下鉄西神・山手線三宮駅徒歩8分のアクセス。是非一度ご内覧下さいませ! その他、事務所、オフィス移転、不動産の事なら何でもお気軽にご相談下さい。
※貸主様からのご要望の為、条件を未公開としている場合がございます。詳しくお聞きになりたい場合は、弊社までご連絡ください。
※賃料、共益費、礼金、その他費用には別途消費税が掛かります。
※上記金額は募集条件です。条件交渉などについてはお気軽にお問い合わせください。
※確認時点での情報のため、リアルタイム情報はお問合せください。

神戸マンションの施設情報カテゴリ

1棟貸可能
駅直結
大型EV
大型駐車場
大通り沿い
傘いらず
貸会議室
空中店舗相談
ヴィンテージ・レトロ
シャワートイレ
セキュリティ
SOHO(住居兼事務所)
デザイナーズ・個性派
トイレ男女別
荷物EVあり
ハイグレードオフィス
ネット回線引込可
ビル内貸倉庫
免振・制振構造
有人警備
ランドマーク
リニューアル
フリースペース
レンタルオフィス
新耐震
駅近(出口
築浅
川沿い、公園沿い
自転車置場

自転車置場料金: ー 円

神戸マンションのアクセスマップ

空室情報や物件見学などお気軽にお問い合わせください。
ESTATE AGENCY
株式会社エステートエージェンシー
定休日:日曜日・祝日 営業時間:09:00~19:00
でお問い合わせ(無料メール 簡単1 電話でお問い合わせ(無料)

最近チェックした物件